Retour
Disponibilité Immédiate
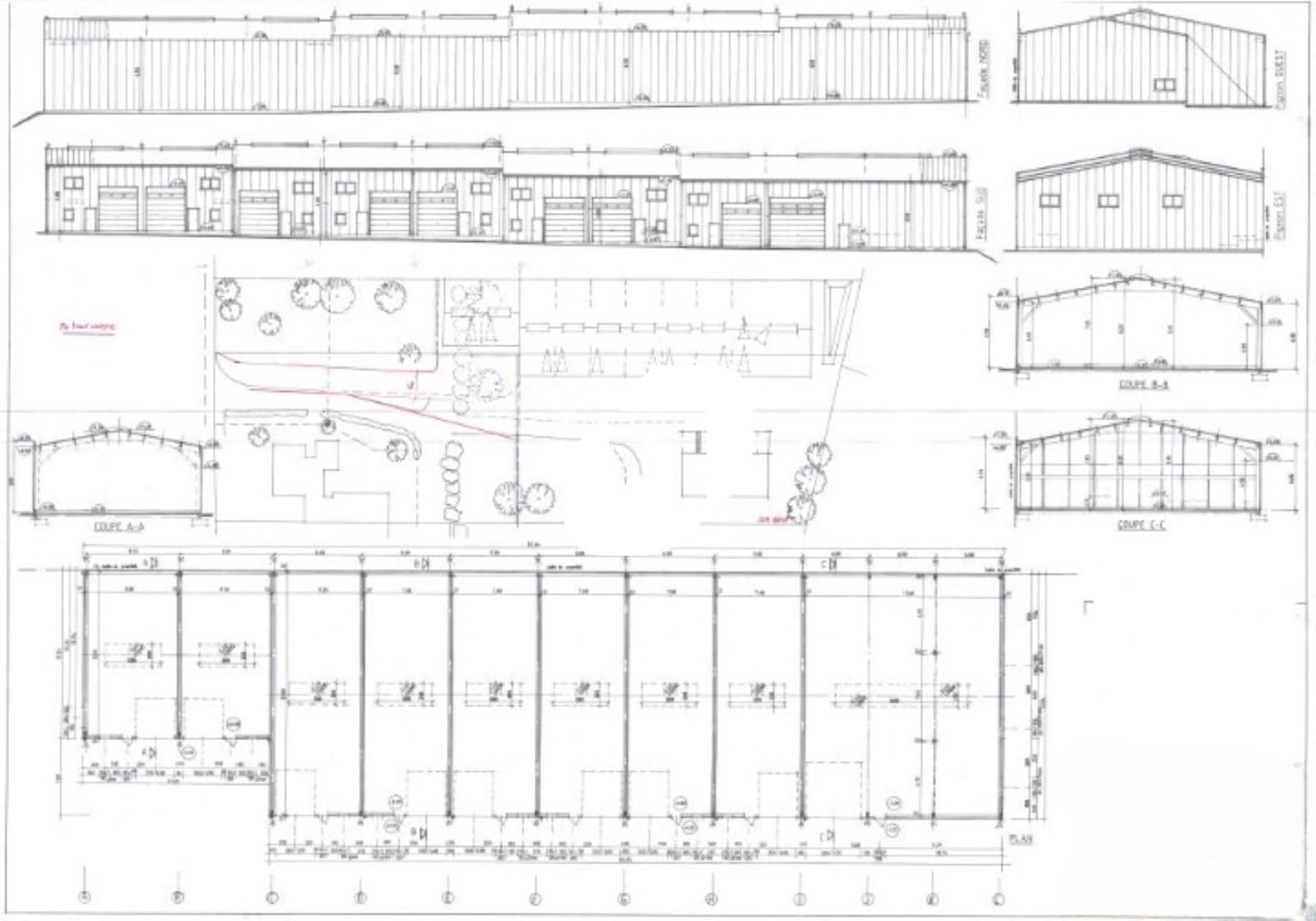
À Louer Locaux d'Activités 684 m² divisibles à partir de 169 m² THOUARE SUR LOIRE (44470)
Ajouter au comparateur
Vous souhaitez faciliter votre recherche ?
Créez un compte
Présentation du bien
IMMPROVE vous propose des locaux d’activités neufs à la location, dans une petite copropriété sécurisée sur site clos.
Situés proches du rond point de la Belle Etoile, ils offrent un accès rapide aux grands axes routiers. Parfait pour toutes activités sauf automobiles.
Livrés bruts avec seulement un coin sanitaire.
Surface totale
Nature
Divisibilité
Etat des locaux
684 m²
Locaux d'Activités
Oui à partir de 169 m²
Neuf
Prix & Conditions
Loyer :
108 € /m²/an (HT/HC)
1 506 € /mois (HT/HC)
18 083 € /an (HT/HC)
Divisibles à partir de 169 m²
Dépôt de garantie :
2 mois de loyer HT/HC
Prestations & équipements du bien
Le bâtiment
Immeuble récent
Façade en bardage
Les espaces de travail
Fibre optique
Clôture grillage les locaux, neuf, sont aménagés en :
Les accès
Accès véhicules légers
Accès poids lourds
Aire de manœuvre
Portail d'accès
Porte sectionnelle de plain-pied électrique
Dimensions porte : 4 (H) x3.5 (L) m
Portail électrique
Sécurité du site
Télésurveillance
Site clos
Prestations spécifiques
Hauteur libre : entre 8.66m et 5.70m
Autres
Fosse septique
Sanitaires
Vidéosurveillance
Murs coupe feu
Double peau
Répartition & surfaces des espaces
Tableau des divisibilités
| Type | Étage | Surface | Loyer (€/m²/an HT HC) |
Charges (€/m²/an HT HC) |
|---|---|---|---|---|
| Activités | 176 m² | 107.73 | Prix sur demande | |
| Activités | 170 m² | 107.96 | Prix sur demande | |
| Activités | 169 m² | 107.93 | Prix sur demande | |
| Activités | 170 m² | 107.96 | Prix sur demande |
Performance énergétique du bien (DPE)


Informations non contractuelles
Localisation & accès
Transports en commun à proximité
Gare de Nantes à 25min en voiture
77
Accès routier
Route de Paris - Rond point Belle Etoile
Boulevard périphérique : D37
Adresses
approximatives
Adresses
précises
Nos nouveaux biens qui pourraient vous intéresser
Locaux d'Activités - 360m²
THOUARE SUR LOIRE (44470)
THOUARE SUR LOIRE (44470)
3 000.00€/mois HT HC
Disponibilité : Immédiate
Surface : 360 m²
Locaux d'Activités - 1 062m²
THOUARE SUR LOIRE (44470)
THOUARE SUR LOIRE (44470)
5 780.82€/mois HT HC
Disponibilité : 01/03/2026
Surface : 1 062 m²
Locaux d'Activités - 230m² Divisibles à partir de 115 m²
THOUARE SUR LOIRE (44470)
THOUARE SUR LOIRE (44470)
977.50€/mois HT HC
Disponibilité : Immédiate
Surface : divisibles à partir de 115 m²
Locaux d'Activités - 360m²
THOUARE SUR LOIRE (44470)
THOUARE SUR LOIRE (44470)
2 160.00€/mois HT HC
Disponibilité : Immédiate
Surface : 360 m²
Les entrepreneurs ayant consulté cette offre ont aussi consulté celles ci
Locaux d'Activités - 507.70m²
SCHWEIGHOUSE SUR MODER (67590)
SCHWEIGHOUSE SUR MODER (67590)
Prix sur demande
Disponibilité : Immédiate
Surface : 507.70 m²
Locaux d'Activités - 215m²
SCHILTIGHEIM (67300)
SCHILTIGHEIM (67300)
1 433.33€/mois HT HC
Disponibilité : Immédiate
Surface : 215 m²
Locaux d'Activités - 253.85m²
SCHWEIGHOUSE SUR MODER (67590)
SCHWEIGHOUSE SUR MODER (67590)
Prix sur demande
Disponibilité : Immédiate
Surface : 253.85 m²
Locaux d'Activités - 290m²
SAINT HERBLAIN (44800)
SAINT HERBLAIN (44800)
2 333.29€/mois HT HC
Disponibilité : Immédiate
Surface : 290 m²