Retour
Disponibilité Immédiate
À Louer Locaux d'Activités 946 m² divisibles à partir de 200 m² RUE JAN PALACH SAINT HERBLAIN (44800)
Ajouter au comparateur
Vous souhaitez faciliter votre recherche ?
Créez un compte
Présentation du bien
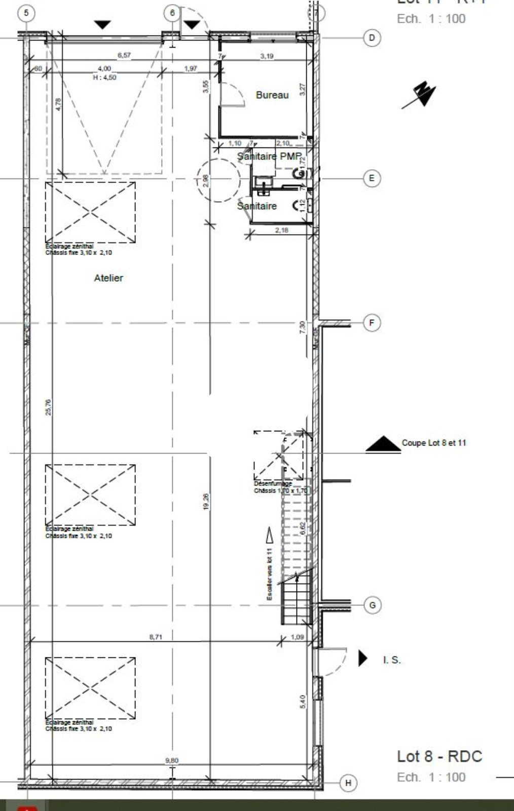
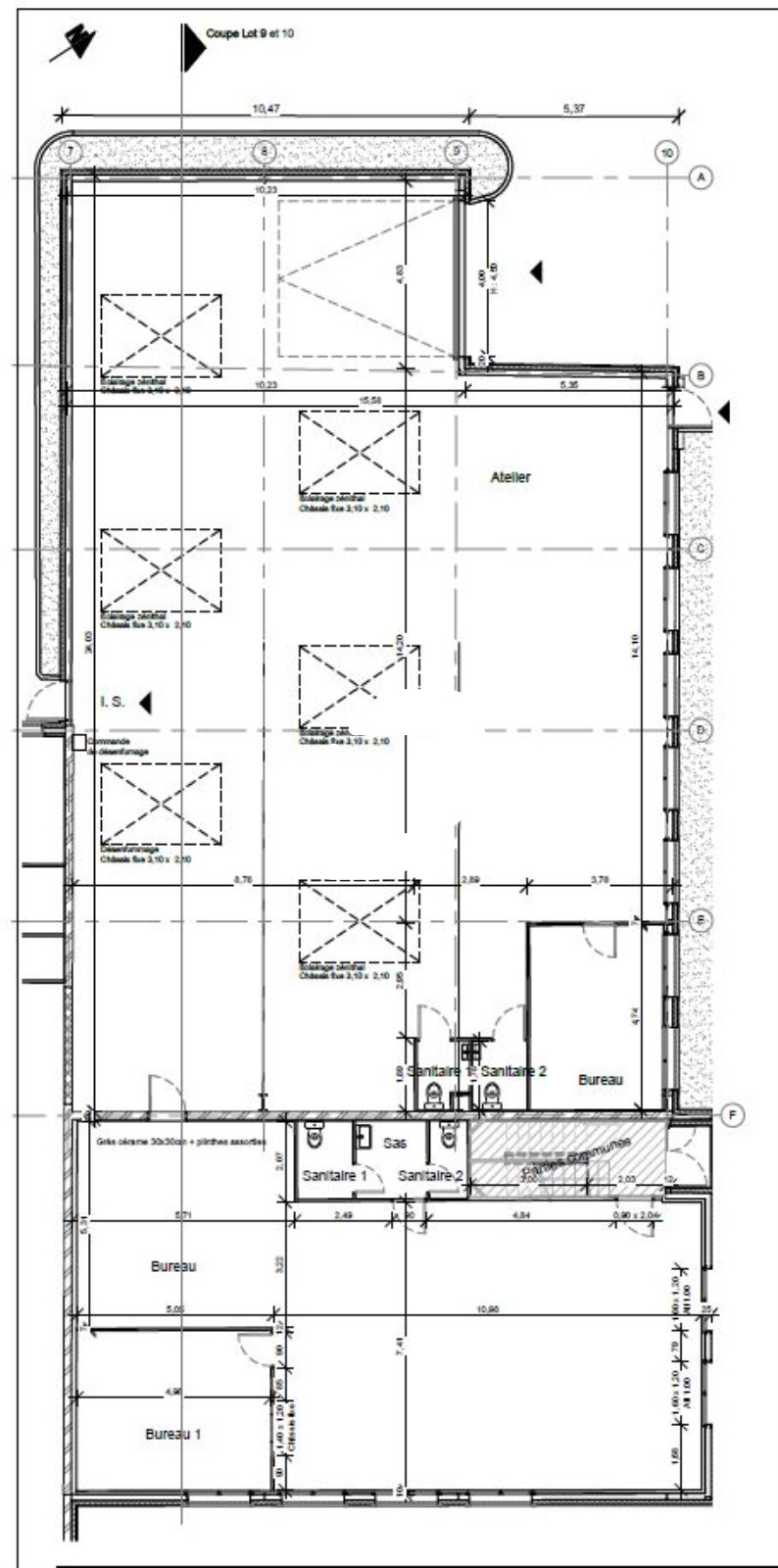
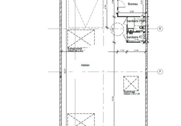
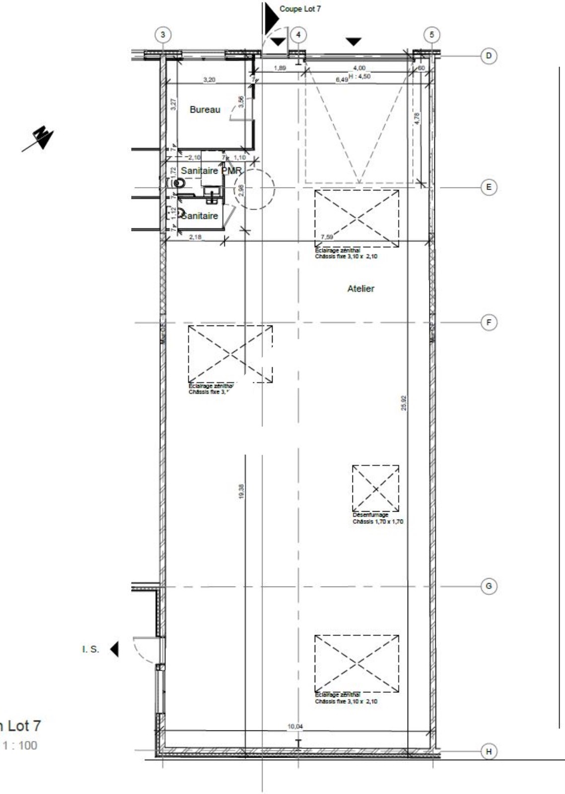
IMMPROVE vous propose au sein d'un parc d'activité dans la zone de St Herblain différentes cellules neuves à partir de 200 m². Ces espaces offrent une flexibilité idéale pour répondre aux besoins spécifiques de votre entreprise. Bénéficiant d'une situation stratégique, ces locaux offrent un accès facile aux principaux axes routiers et aux transports en commun.
Surface totale
Nature
Divisibilité
Etat des locaux
946 m²
Locaux d'Activités
Oui à partir de 200 m²
Neuf
Prix & Conditions
Loyer :
90 € /m²/an (HT/HC)
1 500 € /mois (HT/HC)
18 000 € /an (HT/HC)
Divisibles à partir de 200 m²
Dépôt de garantie :
3 mois de loyer HT HC
Prestations & équipements du bien
Le bâtiment
Immeuble restructuré
Immeuble récent
Façade en bardage
Les espaces de travail
Neuf/Restructuré
Rénové
Faux plafonds
Le confort au quotidien
Bureaux : carrelage en grès Cérame
Les accès
Accès véhicules légers
Accès poids lourds
Aire de manœuvre
Portail d'accès
Porte sectionnelle de plain-pied : 1 -ouveture manuelle
Dimensions porte : 4.5 (H) x4 (L) m
Prestations spécifiques
Charge au sol : 2 tonnes / m²
Hauteur libre : 5 m
Puissance électrique : 36kVA
Chauffage électrique type panneaux rayonnants
Tarif bleu
Répartition & surfaces des espaces
Tableau des divisibilités
| Type | Étage | Surface | Loyer (€/m²/an HT HC) |
Charges (€/m²/an HT HC) |
|---|---|---|---|---|
| Activités | Rez-de-Chaussée | 220 m² | 90.00 | Prix sur demande |
| Activités | Rez-de-Chaussée | 200 m² | 90.00 | Prix sur demande |
| Activités | Rez-de-Chaussée | 263 m² | 90.00 | Prix sur demande |
| Activités | Rez-de-Chaussée | 263 m² | 90.00 | Prix sur demande |
Performance énergétique du bien (DPE)


Informations non contractuelles
Localisation & accès
Transports en commun à proximité
Gare de Nantes - 30 min
Accès routier
A11/A811
N444
Ligne 1 - Arrêt Mitterrand
Adresses
approximatives
Adresses
précises
Nos nouveaux biens qui pourraient vous intéresser
Locaux d'Activités - 154m²
SAINT HERBLAIN (44800)
SAINT HERBLAIN (44800)
1 600.06€/mois HT HC
Disponibilité : 1er juin 2026
Surface : 154 m²
Locaux d'Activités - 250m²
SAINT HERBLAIN (44800)
SAINT HERBLAIN (44800)
1 700.00€/mois HT HC
Disponibilité : 1er septembre 2026
Surface : 250 m²
Locaux d'Activités - 175m²
SAINT HERBLAIN (44800)
SAINT HERBLAIN (44800)
1 828.60€/mois HT HC
Disponibilité : Mai 2026
Surface : 175 m²
Locaux d'Activités - 166.30m²
SAINT HERBLAIN (44800)
SAINT HERBLAIN (44800)
1 300.33€/mois HT HC
Disponibilité : Immédiate
Surface : 166.30 m²
Les entrepreneurs ayant consulté cette offre ont aussi consulté celles ci
Locaux d'Activités - 507.70m²
SCHWEIGHOUSE SUR MODER (67590)
SCHWEIGHOUSE SUR MODER (67590)
Prix sur demande
Disponibilité : Immédiate
Surface : 507.70 m²
Locaux d'Activités - 215m²
SCHILTIGHEIM (67300)
SCHILTIGHEIM (67300)
1 433.33€/mois HT HC
Disponibilité : Immédiate
Surface : 215 m²
Locaux d'Activités - 253.85m²
SCHWEIGHOUSE SUR MODER (67590)
SCHWEIGHOUSE SUR MODER (67590)
Prix sur demande
Disponibilité : Immédiate
Surface : 253.85 m²
Locaux d'Activités - 290m²
SAINT HERBLAIN (44800)
SAINT HERBLAIN (44800)
2 333.29€/mois HT HC
Disponibilité : Immédiate
Surface : 290 m²