Retour
Entrepôts - 4 648m² à Louer
. Toiture bac acier isolé
. Murs bardage double peau
. Sol béton
. Hauteur libre : 8,6 m environ
. 8 quais de chargement dont 2 avec niveleurs
. 24 portes en façade arrière
. 2 portes de plain pied
. Eclairage leds
. radians gaz
Bureaux en R+1
. Climatisation réversible
. Sol carrelage
. Murs peints
. Faux- plafonds avec luminaires encastrés
. Eclairage leds
Entrepôts - 4 648m² à Louer
MBY10 - 23-25 RUE HANNAH ARENDT STRASBOURG (67200)
DESCRIPTION
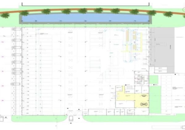
IMMPROVE vous propose à la location un bâtiment indépendant d'une surface totale de presque 5 000 m² situé au Parc des Forges à Strasbourg . Cette ensemble est destiné à une activité d'entreposage avec ces nombreuses portes à quais. Le site disponible fin d'année dispose de 50 places de parking.
En savoir plus
. Ossature bois. Toiture bac acier isolé
. Murs bardage double peau
. Sol béton
. Hauteur libre : 8,6 m environ
. 8 quais de chargement dont 2 avec niveleurs
. 24 portes en façade arrière
. 2 portes de plain pied
. Eclairage leds
. radians gaz
Bureaux en R+1
. Climatisation réversible
. Sol carrelage
. Murs peints
. Faux- plafonds avec luminaires encastrés
. Eclairage leds
Consommations énergétiques


Informations non contractuelles
Tableau des divisibilités
| Type | Étage | Surface | Loyer (€/m²/an HT HC) |
Charges (€/m²/an HT HC) |
|---|---|---|---|---|
| Entrepôts | 4 648 m² | 104.24 | 6.67 |
Caractéristiques
. Parking complémentaire pour camion et utilitaire
- Surface 4 648 m²
- Etat des locaux Bon état
Adresses
approximatives
Adresses
précises
Nos nouveaux biens qui pourraient vous intéresser
Les entrepreneurs ayant consulté cette offre ont aussi consulté celles ci
Les services Immprove
Une gamme complète de services qui facilitent vos démarches et destinée à satisfaire vos attentes