Retour
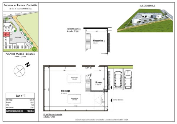
Locaux d'Activités - 169.48m² à Louer
. Façade en bardage double peau
. Toiture bac acier
. Accès véhicules légers
. Accès privatif sur rue
. Portail d'accès
. Site clos
. Accès sécurisé par badge - ACTIVITES -
. Charpente métallique avec une hauteur libre utile de 7m
. Dallage sur terre-plein en béton armé, surcharges 2 T/m² maximum,
surfaçage avec durcisseur quartz teinte naturelle
. Planchers des mezzanines : dalles de compression en béton, surcharges d’exploitation 350 kg/m²
. Escalier et garde-corps
. Tarif bleu 36 Kva, comprenant 2 prises courant 380 V, + 2 prises courant 220 V sous le TGBT
. Murs de séparation (entre lots) en agglomérés
. Eclairage zénithal 5 % par voûte translucide
. 1 porte sectionnelle 4m X 4,5m
. 1 auge / cuve d’atelier en céramique
- BUREAUX -
. Menuiseries extérieures en aluminium laqué
. Double vitrage clair planitherm
. Portes issue de secours métalliques
. Casquette brise soleil
. Faux plafonds en plaque de plâtre
. Carrelage
. 2 prises courant 2x10/16 A, + 1 RJ 45 par poste de travail posées dans plinthes électriques PVC 130x50 placées en périphérie
. Chauffage & rafraichissement des bureaux par pompe réversible à réglage individuel, équipé d’un SPLIT mural
Locaux d'Activités - 169.48m² à Louer
GENAS (69740)
DESCRIPTION
Immprove vous propose sein d'un parc d'activités clos et entièrement sécurisé sur la commune de Genas, une cellule de 169 m² offrant un espace de stockage ou d’atelier fonctionnel et un espace bureau. Cette cellule offrant une belle hauteur sous plafond est équipée d'une porte sectionnelle facilitant l'accès pour vos opérations logistiques.
En savoir plus
. Bâtiment récent. Façade en bardage double peau
. Toiture bac acier
. Accès véhicules légers
. Accès privatif sur rue
. Portail d'accès
. Site clos
. Accès sécurisé par badge - ACTIVITES -
. Charpente métallique avec une hauteur libre utile de 7m
. Dallage sur terre-plein en béton armé, surcharges 2 T/m² maximum,
surfaçage avec durcisseur quartz teinte naturelle
. Planchers des mezzanines : dalles de compression en béton, surcharges d’exploitation 350 kg/m²
. Escalier et garde-corps
. Tarif bleu 36 Kva, comprenant 2 prises courant 380 V, + 2 prises courant 220 V sous le TGBT
. Murs de séparation (entre lots) en agglomérés
. Eclairage zénithal 5 % par voûte translucide
. 1 porte sectionnelle 4m X 4,5m
. 1 auge / cuve d’atelier en céramique
- BUREAUX -
. Menuiseries extérieures en aluminium laqué
. Double vitrage clair planitherm
. Portes issue de secours métalliques
. Casquette brise soleil
. Faux plafonds en plaque de plâtre
. Carrelage
. 2 prises courant 2x10/16 A, + 1 RJ 45 par poste de travail posées dans plinthes électriques PVC 130x50 placées en périphérie
. Chauffage & rafraichissement des bureaux par pompe réversible à réglage individuel, équipé d’un SPLIT mural
Consommations énergétiques


Informations non contractuelles
Tableau des divisibilités
| Type | Étage | Surface | Loyer (€/m²/an HT HC) |
Charges (€/m²/an HT HC) |
|---|---|---|---|---|
| Activités | 169 m² | 123.91 | 960.00 |
Caractéristiques
- Surface 169.48 m²
- Etat des locaux Bon état
Adresses
approximatives
Adresses
précises
Les entrepreneurs ayant consulté cette offre ont aussi consulté celles ci
Les services Immprove
Une gamme complète de services qui facilitent vos démarches et destinée à satisfaire vos attentes