Retour
Disponibilité Immédiate
À Louer Locaux d'Activités 820.58 m² divisibles à partir de 403.77 m² VILLENEUVE SOUS DAMMARTIN (77230)
Ajouter au comparateur
Vous souhaitez faciliter votre recherche ?
Créez un compte
Présentation du bien
IMMPROVE vous propose un bâtiment neuf de 820 m², Situé à Villeneuve-sous-Dammartin, à proximité immédiate de l’aéroport Paris-Charles de Gaulle, ce bâtiment représente une opportunité rare sur le secteur. Idéal pour des activités , artisanales ou de stockage, il est divisible à partir de 403 m². ainsi qu'un terrain de 2 850 m².
Surface totale
Nature
Divisibilité
Etat des locaux
820.58 m²
Locaux d'Activités
Oui à partir de 403.77 m²
Neuf
Prix & Conditions
Loyer :
125 € /m²/an (HT/HC)
4 205 € /mois (HT/HC)
50 471 € /an (HT/HC)
Divisibles à partir de 403.77 m²
Dépôt de garantie :
3 mois de loyer HT HC
Prestations & équipements du bien
Le bâtiment
Façade en bardage
Parties communes de qualité
Les espaces de travail
Bâtiment neuf
Fibre optique Locaux neuf lumineux aménagés en :
Accueil
Espace ouvert
Sanitaires privatifs
Locaux rationnels et modulables
Faux plafonds
Plinthes périphériques
Câblage informatique et téléphonique
Le confort au quotidien
Terrasse privative
Carrelage
Les accès
Accès véhicules légers et poids lourds
Accès PMR
Portail d'accès
Porte sectionnelle de plain-pied : 4x4 m
Sécurité du site
Site clos
Sas d'entrée
Prestations spécifiques
Charge au sol : 2 tonnes / m²
Hauteur libre : 6 m
Extérieur
Parkings extérieurs
Autres
Accès sur rue
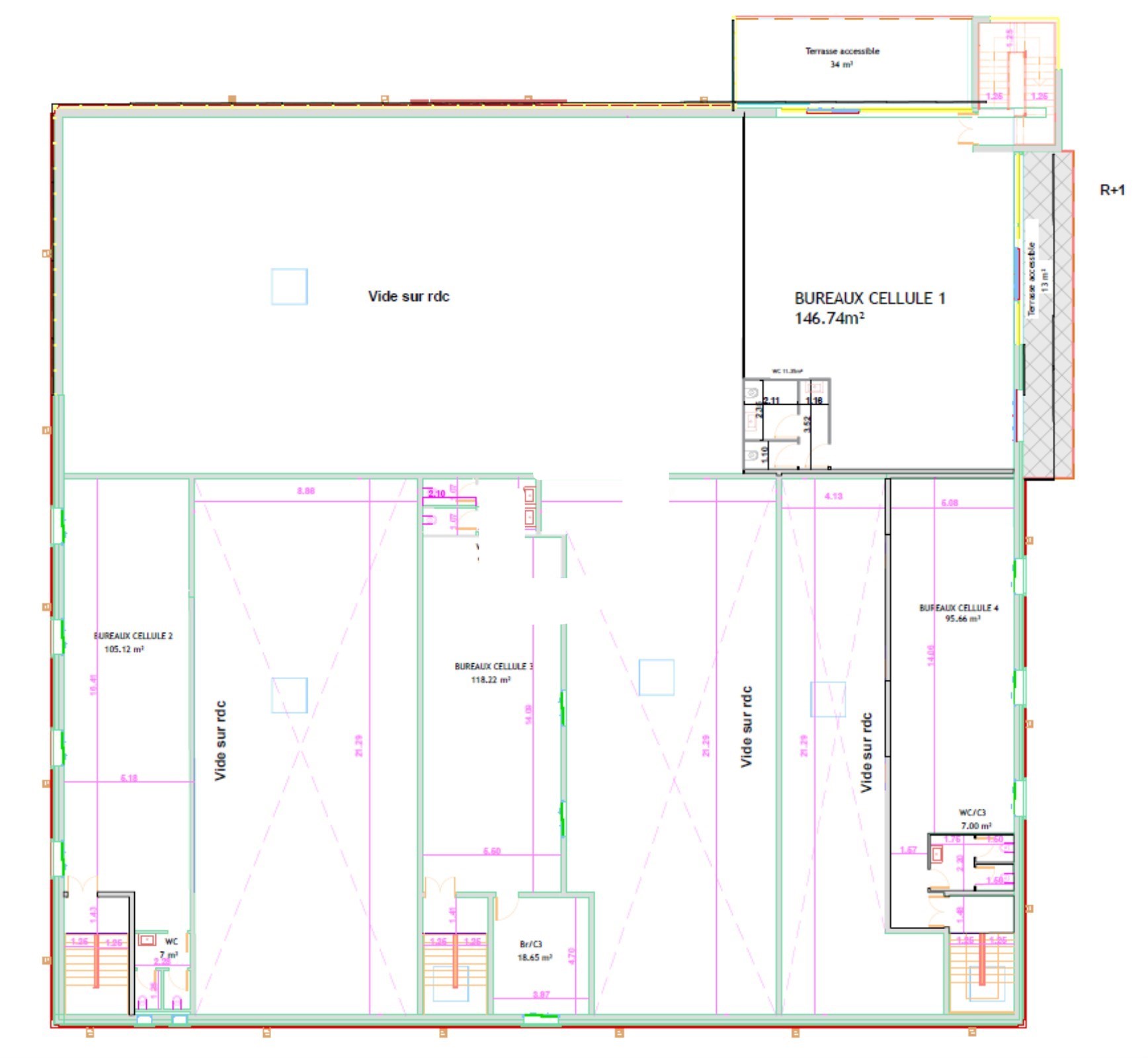
Répartition & surfaces des espaces
Tableau des divisibilités
| Type | Étage | Surface | Loyer (€/m²/an HT HC) |
Charges (€/m²/an HT HC) |
|---|---|---|---|---|
| Activités | 404 m² | 125.00 | 24.00 | |
| Activités | 417 m² | 115.00 | 24.00 | |
| Terrain | 2 850 m² | 25.00 | Prix sur demande |
Performance énergétique du bien (DPE)


Informations non contractuelles
Localisation & accès
Transports en commun à proximité
SNCF gare de Aéroport Paris Roissy-CDG
2030
Lignes 2101, 2111, 2161, 2164, FILÉO OTH
Accès routier
D401
Adresses
approximatives
Adresses
précises
Nos nouveaux biens qui pourraient vous intéresser
Locaux d'Activités - 1 940m² Divisibles à partir de 403 m²
MEYZIEU (69330)
MEYZIEU (69330)
15 666.32€/mois HT HC
Disponibilité : Selon les lots
Surface : divisibles à partir de 403 m²
Locaux d'Activités - 5 112m² Divisibles à partir de 150 m²
BERNOLSHEIM (67170)
BERNOLSHEIM (67170)
2 918.70€/mois HT HC
Disponibilité : Novembre 2026
Surface : divisibles à partir de 150 m²
Locaux d'Activités - 154m²
SAINT HERBLAIN (44800)
SAINT HERBLAIN (44800)
1 600.06€/mois HT HC
Disponibilité : 1er juin 2026
Surface : 154 m²
Locaux d'Activités - 250m²
SAINT HERBLAIN (44800)
SAINT HERBLAIN (44800)
1 700.00€/mois HT HC
Disponibilité : 1er septembre 2026
Surface : 250 m²
Les entrepreneurs ayant consulté cette offre ont aussi consulté celles ci
Locaux d'Activités - 1 940m² Divisibles à partir de 403 m²
MEYZIEU (69330)
MEYZIEU (69330)
15 666.32€/mois HT HC
Disponibilité : Selon les lots
Surface : divisibles à partir de 403 m²
Locaux d'Activités - 5 112m² Divisibles à partir de 150 m²
BERNOLSHEIM (67170)
BERNOLSHEIM (67170)
2 918.70€/mois HT HC
Disponibilité : Novembre 2026
Surface : divisibles à partir de 150 m²
Locaux d'Activités - 154m²
SAINT HERBLAIN (44800)
SAINT HERBLAIN (44800)
1 600.06€/mois HT HC
Disponibilité : 1er juin 2026
Surface : 154 m²
Locaux d'Activités - 250m²
SAINT HERBLAIN (44800)
SAINT HERBLAIN (44800)
1 700.00€/mois HT HC
Disponibilité : 1er septembre 2026
Surface : 250 m²