Retour
Disponibilité Immédiate
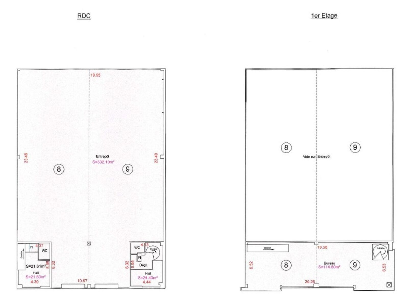
À Louer Locaux d'Activités 1 742.80 m² divisibles à partir de 360 m² BOIS D'ARCY (78390)
Ajouter au comparateur
Vous souhaitez faciliter votre recherche ?
Créez un compte
Présentation du bien
Au sein de la ZAC de la Croix Bonnet sur la commune de Bois d'Arcy, IMMPROVE vous propose des cellules d'activité avec accueil et bureaux en mezzanine à la location, idéalement situées. Porte sectionnelle de plain-pied, Très belle hauteur, parkings. Accès direct N12. Idéal stockage.
Surface totale
Nature
Divisibilité
Etat des locaux
1 742.80 m²
Locaux d'Activités
Oui à partir de 360 m²
Bon état
Prix & Conditions
Loyer :
120 € /m²/an (HT/HC)
3 600 € /mois (HT/HC)
43 200 € /an (HT/HC)
Divisibles à partir de 360 m²
Impôt foncier :
11.92
Taxe bureaux :
3.54
Dépôt de garantie :
3 mois de loyer HT HC
Prestations & équipements du bien
Le bâtiment
Immeuble récent
Les espaces de travail
Fibre optique . Type de construction : structure béton
Accueil en rdc
Les accès
Accès véhicules légers
Une porte sectionnelle par lot : L 3 * H 3,5 mètres
Prestations spécifiques
Charge au sol : 3 tonnes / m²
Chauffage : aérothermes gaz
Puissance électrique : 36 KVA
Chauffage par convecteurs électriques
Extérieur
Emplacements de parking extérieurs
Autres
Couverture : bac acier isolé étanchéité multicouche
Isolation des murs : bardage double peau isolé
Locaux d'activité :
Hauteur sous poutres : 7,5 mètres
Eclairage : rampes tubes fluorescents
Mezzanine de bureaux :
Voirie lourde
Toutes activités liées à l'automobile non autorisées
Répartition & surfaces des espaces
Tableau des divisibilités
| Type | Étage | Surface | Loyer (€/m²/an HT HC) |
Charges (€/m²/an HT HC) |
|---|---|---|---|---|
| Activités | 360 m² | 120.00 | 37.80 | |
| Activités | 360 m² | 120.00 | 37.80 | |
| Activités | 650 m² | 120.00 | 31.00 | |
| Activités | 373 m² | 120.00 | 31.00 |
Performance énergétique du bien (DPE)


Informations non contractuelles
Localisation & accès
Transports en commun à proximité
SNCF gare de Saint-Quentin-en-Yvelines
41
415
Accès routier
Nationale N12
Autoroute A12
Adresses
approximatives
Adresses
précises
Nos nouveaux biens qui pourraient vous intéresser
Locaux d'Activités - 600m² Divisibles à partir de 300 m²
BOIS D'ARCY (78390)
BOIS D'ARCY (78390)
3 000.00€/mois HT HC
Disponibilité : Immédiate
Surface : divisibles à partir de 300 m²
Les entrepreneurs ayant consulté cette offre ont aussi consulté celles ci
Locaux d'Activités - 507.70m²
SCHWEIGHOUSE SUR MODER (67590)
SCHWEIGHOUSE SUR MODER (67590)
Prix sur demande
Disponibilité : Immédiate
Surface : 507.70 m²
Locaux d'Activités - 215m²
SCHILTIGHEIM (67300)
SCHILTIGHEIM (67300)
1 433.33€/mois HT HC
Disponibilité : Immédiate
Surface : 215 m²
Locaux d'Activités - 253.85m²
SCHWEIGHOUSE SUR MODER (67590)
SCHWEIGHOUSE SUR MODER (67590)
Prix sur demande
Disponibilité : Immédiate
Surface : 253.85 m²
Locaux d'Activités - 290m²
SAINT HERBLAIN (44800)
SAINT HERBLAIN (44800)
2 333.29€/mois HT HC
Disponibilité : Immédiate
Surface : 290 m²