Retour
Disponibilité Immédiate
À Louer Locaux d'Activités 425 m² divisibles à partir de 85 m² GALLUIS (78490)
Ajouter au comparateur
Vous souhaitez faciliter votre recherche ?
Créez un compte
Présentation du bien
IMMPROVE vous propose des locaux d’activité neufs avec porte sectionnelle pour du stockage. Hauteur 6 mètres, grande porte sectionnelle, sanitaire privatif avec lavabo. Accès N12.
Surface totale
Nature
Divisibilité
Etat des locaux
425 m²
Locaux d'Activités
Oui à partir de 85 m²
Neuf
Prix & Conditions
Loyer :
155 € /m²/an (HT/HC)
1 097 € /mois (HT/HC)
13 174 € /an (HT/HC)
Divisibles à partir de 85 m²
Dépôt de garantie :
3 mois de loyer HT HC
Conditions location :
Les charges comprennent l'entretien des parties communes et l’eau
Prestations & équipements du bien
Les espaces de travail
Dans bâtiment neuf
Pas d’accès gros porteurs . Locaux d’activités neufs
Les accès
Porte sectionnelle H : 4 m X L 3.5 m
Extérieur
Deux emplacements de parking par lot
Autres
Accès N12
Accès VL et petits porteurs
Hauteur 6 mètres
Compteurs individuel, triphasé
Sanitaire privatif avec lavabo
Activités non autorisées : garage automobiles et carrosserie
Les charges comprennent l'entretien des parties communes et l’eau
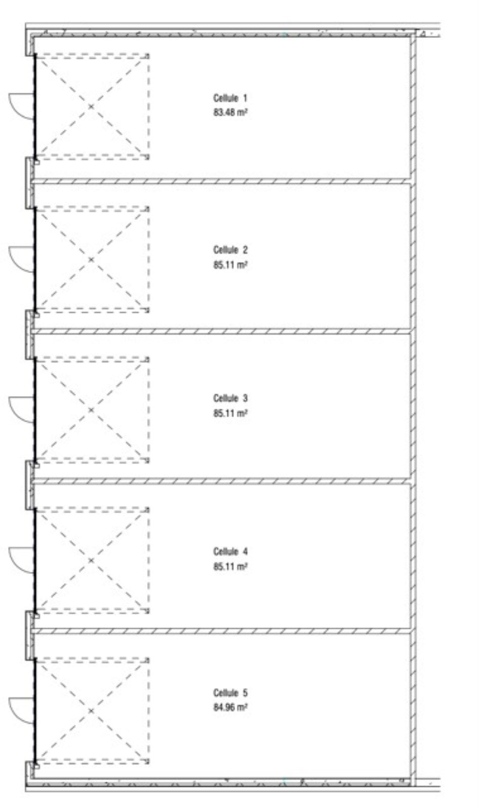
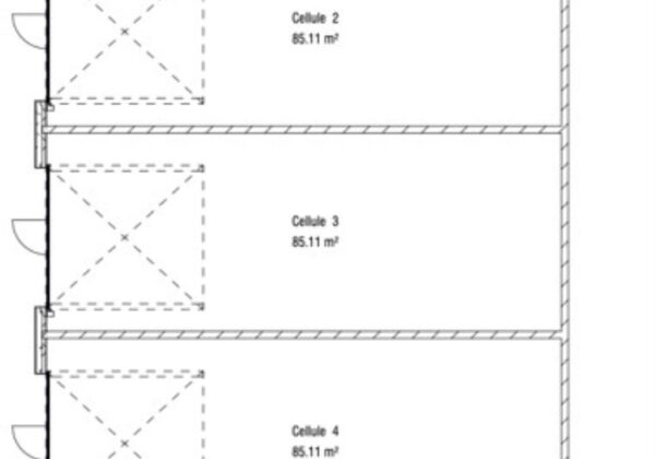
Répartition & surfaces des espaces
Tableau des divisibilités
| Type | Étage | Surface | Loyer (€/m²/an HT HC) |
Charges (€/m²/an HT HC) |
|---|---|---|---|---|
| Parkings | Prix sur demande | Prix sur demande | ||
| Activités | Rez-de-Chaussée | 85 m² | 155.29 | 7.05 |
| Activités | Rez-de-Chaussée | 85 m² | 155.29 | 7.05 |
| Activités | Rez-de-Chaussée | 85 m² | 155.29 | 7.05 |
| Activités | Rez-de-Chaussée | 85 m² | 155.29 | 7.05 |
| Activités | Rez-de-Chaussée | 85 m² | 155.29 | 7.05 |
Performance énergétique du bien (DPE)


Informations non contractuelles
Localisation & accès
Accès routier
Nationale N12
Adresses
approximatives
Adresses
précises
Nos nouveaux biens qui pourraient vous intéresser
Locaux d'Activités - 215m²
SCHILTIGHEIM (67300)
SCHILTIGHEIM (67300)
1 433.33€/mois HT HC
Disponibilité : Immédiate
Surface : 215 m²
Locaux d'Activités - 290m²
SAINT HERBLAIN (44800)
SAINT HERBLAIN (44800)
2 333.29€/mois HT HC
Disponibilité : Immédiate
Surface : 290 m²
Locaux d'Activités - 3 087.70m²
SARTROUVILLE (78500)
SARTROUVILLE (78500)
19 835.25€/mois HT HC
Disponibilité : Immédiate
Surface : 3 087.70 m²
Locaux d'Activités - 442m²
SERVON (77170)
SERVON (77170)
4 235.83€/mois HT HC
Disponibilité : Immédiate
Surface : 442 m²
Les entrepreneurs ayant consulté cette offre ont aussi consulté celles ci
Locaux d'Activités - 507.70m²
SCHWEIGHOUSE SUR MODER (67590)
SCHWEIGHOUSE SUR MODER (67590)
Prix sur demande
Disponibilité : Immédiate
Surface : 507.70 m²
Locaux d'Activités - 215m²
SCHILTIGHEIM (67300)
SCHILTIGHEIM (67300)
1 433.33€/mois HT HC
Disponibilité : Immédiate
Surface : 215 m²
Locaux d'Activités - 253.85m²
SCHWEIGHOUSE SUR MODER (67590)
SCHWEIGHOUSE SUR MODER (67590)
Prix sur demande
Disponibilité : Immédiate
Surface : 253.85 m²
Locaux d'Activités - 290m²
SAINT HERBLAIN (44800)
SAINT HERBLAIN (44800)
2 333.29€/mois HT HC
Disponibilité : Immédiate
Surface : 290 m²