Retour
Disponibilité Immédiate
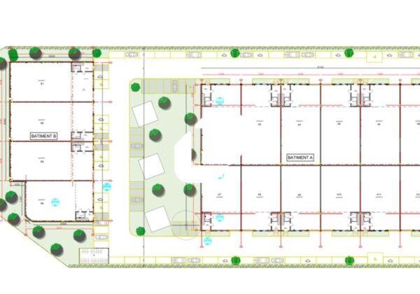
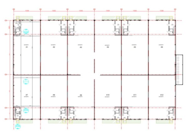
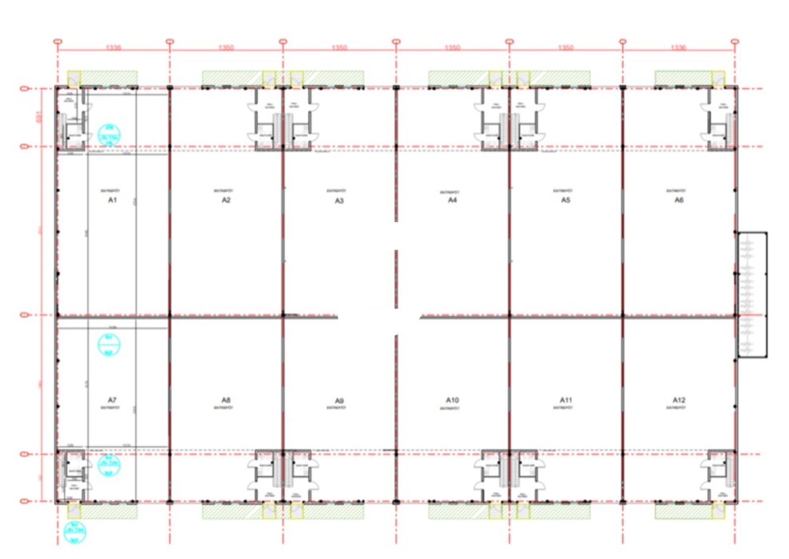
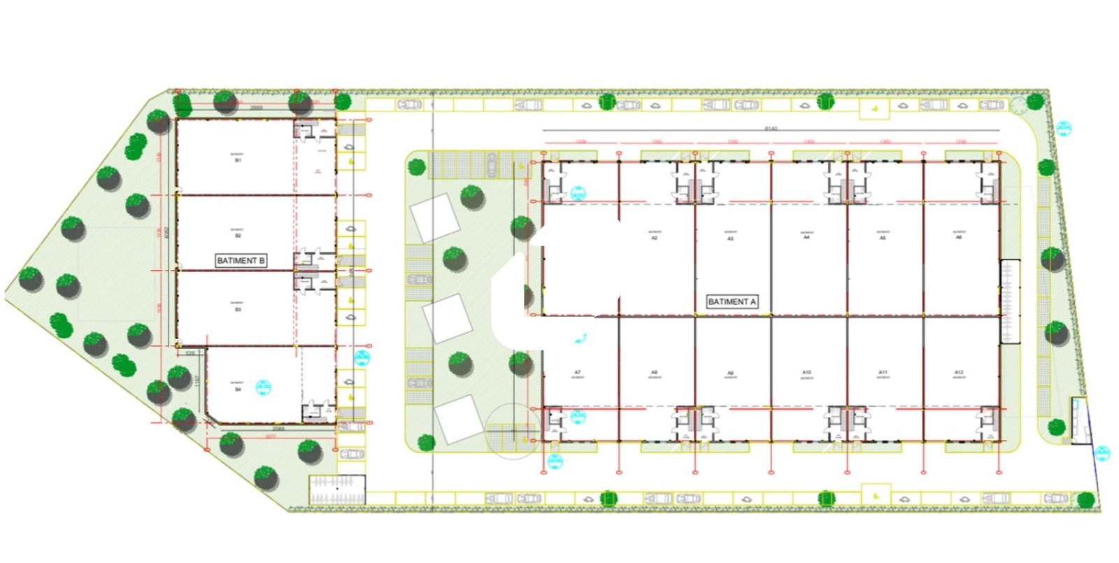
À Louer Locaux d'Activités 4 824 m² divisibles à partir de 371 m² AVENUE PAUL MAINTENANT CORBEIL ESSONNES (91100)
Ajouter au comparateur
Vous souhaitez faciliter votre recherche ?
Créez un compte
Présentation du bien
Situé au carrefour de l'A6, de la Francilienne et de la N7, Immprove vous propose des locaux d'activités à louer à partir de 371 m². Ce parc neuf bénéficie de la certification BREEAM Good, garantissant des performances environnementales de qualité.
Surface totale
Nature
Divisibilité
Etat des locaux
4 824 m²
Locaux d'Activités
Oui à partir de 371 m²
Neuf
Prix & Conditions
Loyer :
100 € /m²/an (HT/HC)
3 091 € /mois (HT/HC)
37 100 € /an (HT/HC)
Divisibles à partir de 371 m²
Impôt foncier :
8.00
Taxe bureaux :
2.38
Dépôt de garantie :
3 mois de loyer HT HC
Prestations & équipements du bien
Les espaces de travail
Bureaux livrés en open space
Éclairage dalles LED 600x600mm 350 lux
Le confort au quotidien
Espaces verts paysagés . Revêtement de sols en carrelage en RDC / PVC au 1er étage
Les accès
Fermeture du site par portail motorisé avec horloge,
interphone et commande du portail depuis chaque cellule
Prestations spécifiques
Chauffage par convecteurs électriques
Autres
Certification BREAM Good
Toiture végétalisée
Un accès principal pour VL/PL
Voirie lourde pour les accès livraisons et les aires de manœuvre
83 places de stationnement VL dont 16 places
Fourreaux pour raccordement futur à des bornes privatives pour véhicules électriques
Faux plafond en dalles de fibre minérale
1 sanitaire aux normes P.M.R. en RDC
1 sanitaire au 1er étage
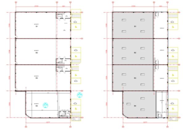
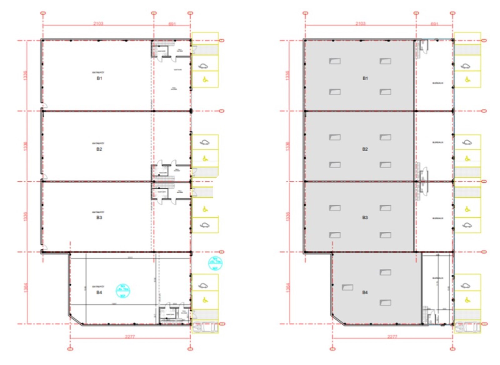
Répartition & surfaces des espaces
Tableau des divisibilités
| Type | Étage | Surface | Loyer (€/m²/an HT HC) |
Charges (€/m²/an HT HC) |
|---|---|---|---|---|
| Activités | 460 m² | 100.00 | 17.55 | |
| Activités | 463 m² | 100.00 | 17.55 | |
| Activités | 463 m² | 100.00 | 17.55 | |
| Activités | 463 m² | 100.00 | 17.55 | |
| Activités | 457 m² | 100.00 | 17.55 | |
| Activités | 454 m² | 100.00 | 17.55 | |
| Activités | 371 m² | 100.00 | 17.55 | |
| Activités | 376 m² | 100.00 | 17.55 | |
| Activités | 467 m² | 100.00 | 17.55 | |
| Activités | 467 m² | 100.00 | 17.55 | |
| Activités | 383 m² | 100.00 | 17.55 |
Performance énergétique du bien (DPE)


Informations non contractuelles
Localisation & accès
Transports en commun à proximité
301
405
Accès routier
N104, N7
A6, A5
Adresses
approximatives
Adresses
précises
Nos nouveaux biens qui pourraient vous intéresser
Locaux d'Activités - 2 800m² Divisibles à partir de 1 200 m²
CORBEIL ESSONNES (91100)
CORBEIL ESSONNES (91100)
9 000.00€/mois HT HC
Disponibilité : Immédiate
Surface : divisibles à partir de 1 200 m²
Les entrepreneurs ayant consulté cette offre ont aussi consulté celles ci
Locaux d'Activités - 220m²
TREILLIERES (44119)
TREILLIERES (44119)
1 558.33€/mois HT HC
Disponibilité : 1er janvier 2027
Surface : 220 m²
Locaux d'Activités - 200m²
ROUBAIX (59100)
ROUBAIX (59100)
900.00€/mois HT HC
Disponibilité : Immédiate
Surface : 200 m²
Locaux d'Activités - 288m²
SAINT JEAN DE VEDAS (34430)
SAINT JEAN DE VEDAS (34430)
2 448.00€/mois HT HC
Disponibilité : Immédiate
Surface : 288 m²
Locaux d'Activités - 110.82m²
SAINT GEORGES D'ORQUES (34680)
SAINT GEORGES D'ORQUES (34680)
1 017.50€/mois HT HC
Disponibilité : 8 mai 2026
Surface : 110.82 m²