Retour
Disponibilité Immédiate
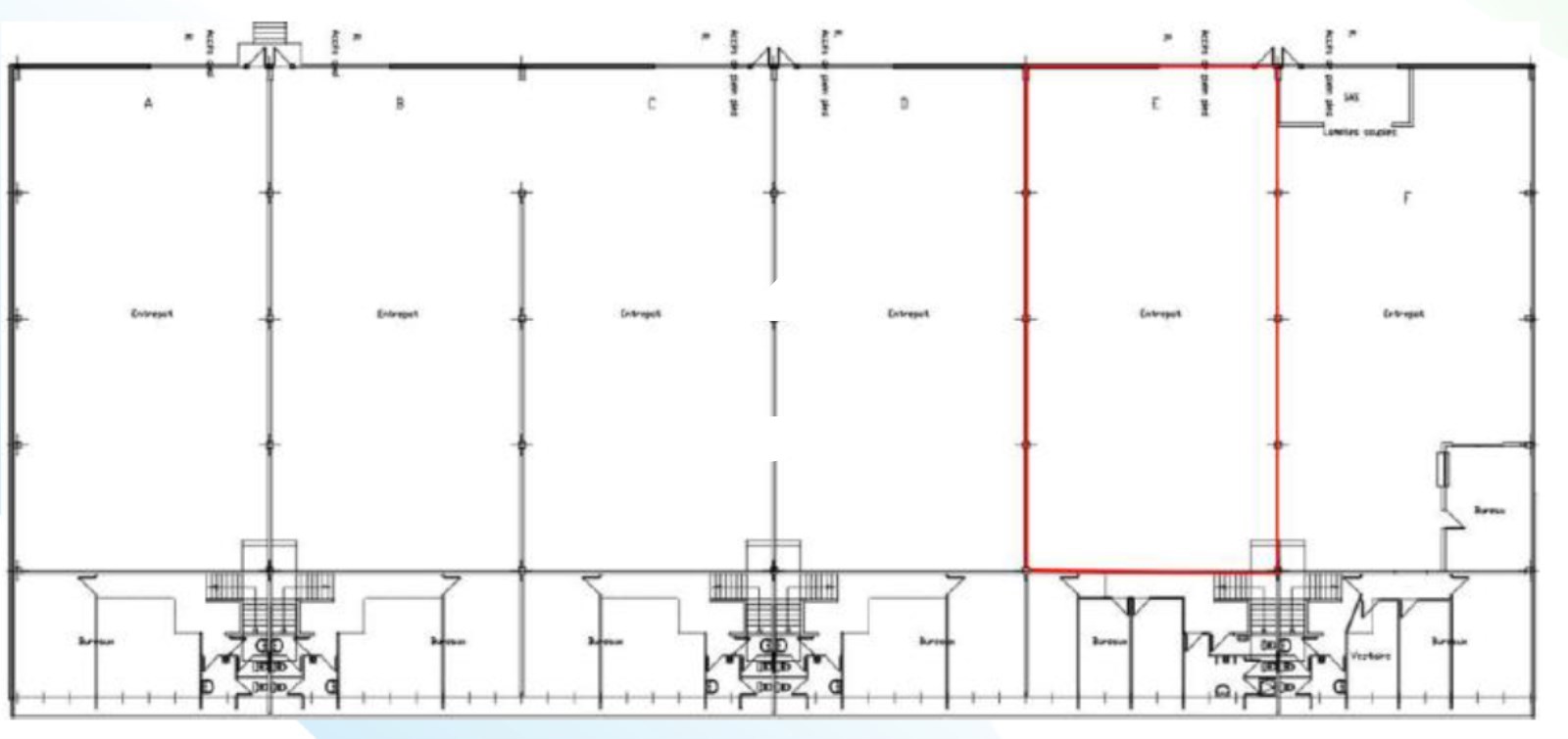
À Louer Locaux d'Activités 339 m² AULNAY SOUS BOIS (93600)
Ajouter au comparateur
Vous souhaitez faciliter votre recherche ?
Créez un compte
Présentation du bien
IMMPROVE vous propose une opportunité exceptionnelle à Aulnay-sous-Bois : locaux d'activités de 339 m² non divisibles à louer. Idéalement situés, ces espaces offrent une grande visibilité et sont adaptés à diverses activités professionnelles. Ne manquez pas cette occasion unique pour votre entreprise.
Surface totale
Nature
Divisibilité
Etat des locaux
339 m²
Locaux d'Activités
Non
Bon état
Prix & Conditions
Loyer :
100 € /m²/an (HT/HC)
2 825 € /mois (HT/HC)
33 900 € /an (HT/HC)
Impôt foncier :
13.69
Dépôt de garantie :
3 mois de loyer HT HC
Prestations & équipements du bien
Les accès
Accès véhicules légers et poids lourds
Aire de manœuvre et de chargement
Sécurité du site
Site clos et sécurisé
Gardien
Télésurveillance
Prestations spécifiques
Hauteur libre : 6,60m à 7,32m
Chauffage: Aérothermes à eau chaude
Autres
RIE . Dallage: 5 t/m²
Structure: béton
Dimension des portes: H 3,37 m x l 3 m
Accès de plain-pied
Détection incendie et RIA
Sanitaires
Répartition & surfaces des espaces
Tableau des divisibilités
| Type | Étage | Surface | Loyer (€/m²/an HT HC) |
Charges (€/m²/an HT HC) |
|---|---|---|---|---|
| Activités | Rez-de-Chaussée | 339 m² | 100.00 | 42.20 |
Performance énergétique du bien (DPE)


Informations non contractuelles
Localisation & accès
Transports en commun à proximité
350
427
627
45
Accès routier
A1 et A3 (Accès immédiat)
Aéroport de Roissy - Charles de Gaulle à 13km
Adresses
approximatives
Adresses
précises
Nos nouveaux biens qui pourraient vous intéresser
Locaux d'Activités - 2 081m² Divisibles à partir de 321 m²
AULNAY SOUS BOIS (93600)
AULNAY SOUS BOIS (93600)
4 887.50€/mois HT HC
Disponibilité : Immédiate
Surface : divisibles à partir de 321 m²
Locaux d'Activités - 1 061m² Divisibles à partir de 279 m²
AULNAY SOUS BOIS (93600)
AULNAY SOUS BOIS (93600)
5 630.83€/mois HT HC
Disponibilité : Immédiate
Surface : divisibles à partir de 279 m²
Les entrepreneurs ayant consulté cette offre ont aussi consulté celles ci
Locaux d'Activités - 172m²
MARTILLAC (33650)
MARTILLAC (33650)
1 900.03€/mois HT HC
Disponibilité : Immédiate
Surface : 172 m²
Locaux d'Activités - 1 940m² Divisibles à partir de 403 m²
MEYZIEU (69330)
MEYZIEU (69330)
12 249.89€/mois HT HC
Disponibilité : Selon les lots
Surface : divisibles à partir de 403 m²
Locaux d'Activités - 5 112m² Divisibles à partir de 150 m²
BERNOLSHEIM (67170)
BERNOLSHEIM (67170)
2 918.70€/mois HT HC
Disponibilité : Novembre 2026
Surface : divisibles à partir de 150 m²
Locaux d'Activités - 154m²
SAINT HERBLAIN (44800)
SAINT HERBLAIN (44800)
1 600.06€/mois HT HC
Disponibilité : 1er juin 2026
Surface : 154 m²