Retour
Disponibilité 15 mois après signature
À Louer Locaux d'Activités 7 900 m² divisibles à partir de 3 950 m² SUCY EN BRIE (94370)
Ajouter au comparateur
Vous souhaitez faciliter votre recherche ?
Créez un compte
Présentation du bien
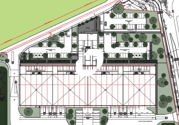
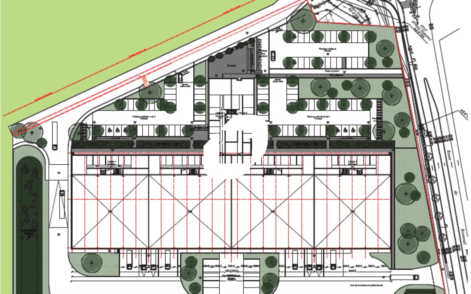
Bâtiment neuf et indépendant !
Idéalement situé à Sucy-en-Brie, à proximité de la Route Nationale N19 et du RER A Station Sucy-Bonneuil, Immprove vous offre l'opportunité de louer un bâtiment d'activité avec bureaux d'accompagnement, d'une superficie totale de 7900 m², divisible à partir de 3 950 m².
Ce bâtiment sécurisé bénéficie d'excellentes prestations. La partie dédiée à l'activité est dotée d'accès par portes sectionnelles et offre une remarquable hauteur de stockage de 8 mètres. Les bureaux, quant à eux, sont aménagés et climatisés, assurant un environnement de travail confortable et fonctionnel.
Surface totale
Nature
Divisibilité
Etat des locaux
7 900 m²
Locaux d'Activités
Oui à partir de 3 950 m²
Neuf
Prix & Conditions
Loyer :
170 € /m²/an (HT/HC)
55 958 € /mois (HT/HC)
671 500 € /an (HT/HC)
Divisibles à partir de 3 950 m²
Dépôt de garantie :
3 mois de loyer HT HC
Prestations & équipements du bien
Le bâtiment
Bâtiment indépendant
Les espaces de travail
Fibre optique . Charge au sol : 1 à 2 tonnes /m²
Espace ouvert
Cuisine
Faux plafonds
Plinthes périphériques
Sanitaires privatifs
Le confort au quotidien
Moquette
Sol PVC
Climatisation réversible
Les accès
Accès poids lourds
Double accès
Aire de manœuvre
Aire de chargement
4 quais niveleurs (2 par moitié de bâtiment)
Sécurité du site
Contrôle d'accès
Site sécurisé 24h/24h
Site clos
Services & espaces partagés
Réfectoire / Cafétéria
Prestations spécifiques
Hauteur libre : 7 m
Chauffage par aérotherme gaz
Autres
4 portes sectionnelles de plain-pied (2 par moitié de bâtiment)
Douche
Vestiaire
36 emplacements pour vélos
Répartition & surfaces des espaces
Tableau des divisibilités
| Type | Étage | Surface | Loyer (€/m²/an HT HC) |
Charges (€/m²/an HT HC) |
|---|---|---|---|---|
| Activités | 3 950 m² | 170.00 | Prix sur demande | |
| Activités | 3 950 m² | 170.00 | Prix sur demande | |
| Parkings | Prix sur demande | Prix sur demande |
Performance énergétique du bien (DPE)


Informations non contractuelles
Localisation & accès
Transports en commun à proximité
104
308
393
Accès routier
N19
Adresses
approximatives
Adresses
précises
Nos nouveaux biens qui pourraient vous intéresser
Locaux d'Activités - 344m²
SUCY EN BRIE (94370)
SUCY EN BRIE (94370)
3 153.33€/mois HT HC
Disponibilité : Immédiate
Surface : 344 m²
Locaux d'Activités - 6 578m² Divisibles à partir de 1 823 m²
SUCY EN BRIE (94370)
SUCY EN BRIE (94370)
22 787.50€/mois HT HC
Disponibilité : Immédiate
Surface : divisibles à partir de 1 823 m²
Locaux d'Activités - 5 004m²
SUCY EN BRIE (94370)
SUCY EN BRIE (94370)
58 334.13€/mois HT HC
Disponibilité : Immédiate
Surface : 5 004 m²
Locaux d'Activités - 362.30m²
SUCY EN BRIE (94370)
SUCY EN BRIE (94370)
4 223.33€/mois HT HC
Disponibilité : Immédiate
Surface : 362.30 m²
Les entrepreneurs ayant consulté cette offre ont aussi consulté celles ci
Locaux d'Activités - 6 200m²
BELLEVILLE EN BEAUJOLAIS (69220)
BELLEVILLE EN BEAUJOLAIS (69220)
40 000.33€/mois HT HC
Disponibilité : 2ème trimestre 2027
Surface : 6 200 m²
Locaux d'Activités - 8 095m² Divisibles à partir de 1 970 m²
LES MUREAUX (78130)
LES MUREAUX (78130)
19 700.00€/mois HT HC
Disponibilité : Immédiate
Surface : divisibles à partir de 1 970 m²
Locaux d'Activités - 177m²
VENDENHEIM (67550)
VENDENHEIM (67550)
1 100.06€/mois HT HC
Disponibilité : 1er aout 2026
Surface : 177 m²
Locaux d'Activités - 296m²
VENDENHEIM (67550)
VENDENHEIM (67550)
1 799.93€/mois HT HC
Disponibilité : Juin 2026
Surface : 296 m²