Retour
Disponibilité Immédiate
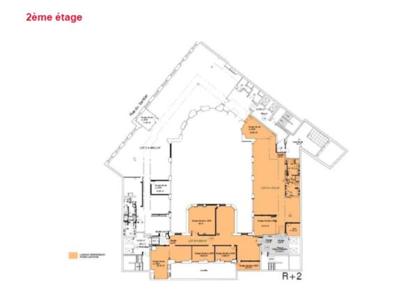
À Sous Louer Bureaux 463.45 m² MAISON MOZART 8 RUE DU SENTIER PARIS (75002)
Ajouter au comparateur
Vous souhaitez faciliter votre recherche ?
Créez un compte
Présentation du bien
Au sein d’un immeuble emblématique du quartier du Sentier, IMMPROVE vous propose à la sous-location une surface de bureaux d’environ 463 m², située au 2? étage. Les locaux, lumineux et climatisés, offrent un cadre de travail confortable et fonctionnel, au cœur d’un secteur dynamique et recherché. Cette adresse centrale, à proximité immédiate des transports, commerces et services, constitue une opportunité idéale pour toute entreprise souhaitant s’implanter dans un environnement attractif.
Surface totale
Nature
Divisibilité
Etat des locaux
463.45 m²
Bureaux
Non
Bon état
Prix & Conditions
Loyer :
550 € /m²/an (HT/HC)
21 220 € /mois (HT/HC)
254 650 € /an (HT/HC)
Impôt foncier :
12.86
Taxe bureaux :
26.11
TEOM :
3.83
Dépôt de garantie :
3 mois de loyer HT HC
Conditions location :
sous-location (jusqu’à septembre 2027 au plus tard)
Prestations & équipements du bien
Le bâtiment
Immeuble ancien restructuré
Les espaces de travail
Locaux rationnels et modulables aménagés en :
Accueil
Cuisine et Sanitaires privatifs
Décloisonnement possible
Faux plafonds et parquet
Câblage informatique et téléphonique
Le confort au quotidien
Cour intérieure arborée
Accès sur rue et sur cour
Belle hauteur sous plafond
Climatisation réversible
Sécurité du site
Interphone / Digicode
Autres
Espaces ouverts
Salles de réunion
sous-location (jusqu’à septembre 2027 au plus tard)
Répartition & surfaces des espaces
Tableau des divisibilités
| Type | Étage | Surface | Loyer (€/m²/an HT HC) |
Charges (€/m²/an HT HC) |
|---|---|---|---|---|
| Bureaux | 2ème étage | 463 m² | 550.00 | 47.66 |
Performance énergétique du bien (DPE)


Informations non contractuelles
Localisation & accès
Transports en commun à proximité
Châtelet les Halles
20
39
74
85
32
29
Adresses
approximatives
Adresses
précises
Nos nouveaux biens qui pourraient vous intéresser
Les entrepreneurs ayant consulté cette offre ont aussi consulté celles ci
Bureaux - 1 114m² Divisibles à partir de 155 m²
PARIS (75002)
PARIS (75002)
Prix sur demande
Disponibilité : 31 juillet 2026
Surface : divisibles à partir de 155 m²