Retour
Disponibilité Immédiate
À Acheter Bureaux 831 m² BORDEAUX (33000)
Ajouter au comparateur
Vous souhaitez faciliter votre recherche ?
Créez un compte
Présentation du bien
Barrière du Médoc, IMMPROVE vous propose un bâtiment indépendant de 830m² sur une parcelle de 770m². Cet ensemble est composé de 3 niveaux, un RDC de 341m², un R+1 de 283m² et un R+2 de 207m². Ces plateaux sont agencés en de nombreux espaces, salles de réunion et de formation, bureaux, vestiaires, atelier, accueil, entrée, escaliers.
Surface totale
Nature
Divisibilité
Etat des locaux
831 m²
Bureaux
Non
Bon état
Prix & Conditions
Vente :
2 400 000.00 € (HD)
2 888.08 € /m² (HD)
Impôt foncier :
9426.00
Prestations & équipements du bien
Le bâtiment
Immeuble restructuré
Bâtiment indépendant
Les espaces de travail
Fibre optique
Cour privative . Travaux à prévoir
Accueil
Espace ouvert
Bureaux cloisonnés
Salle de réunion
Espace détente
Local technique
Cuisine
Sanitaires privatifs
Décloisonnement possible
Archives
Faux plafonds
Cloisonnement amovible
Plinthes périphériques
Le confort au quotidien
Climatisation réversible
Jardin paysager
Locaux lumineux
Cour privative
Jardin privatif
Sol PVC
Climatisation réversible
Les accès
Accès véhicules légers
Accès privatif sur rue
Sécurité du site
Digicode
Interphone
Sas d'entrée
Services & espaces partagés
Cafétéria
Autres
Locaux E.R.P.
Douche
Vestiaire
Sanitaires
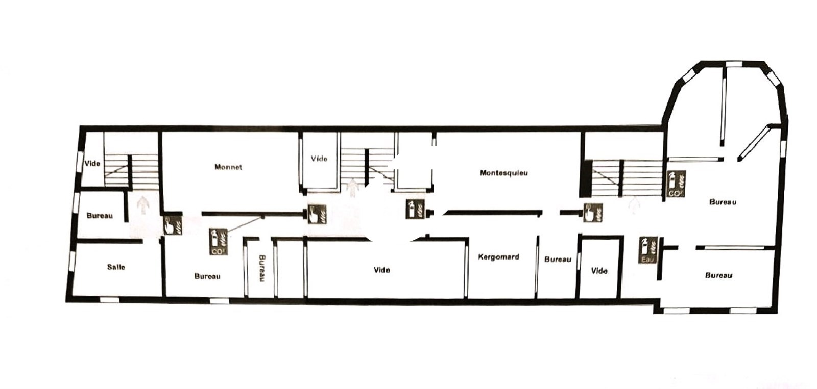
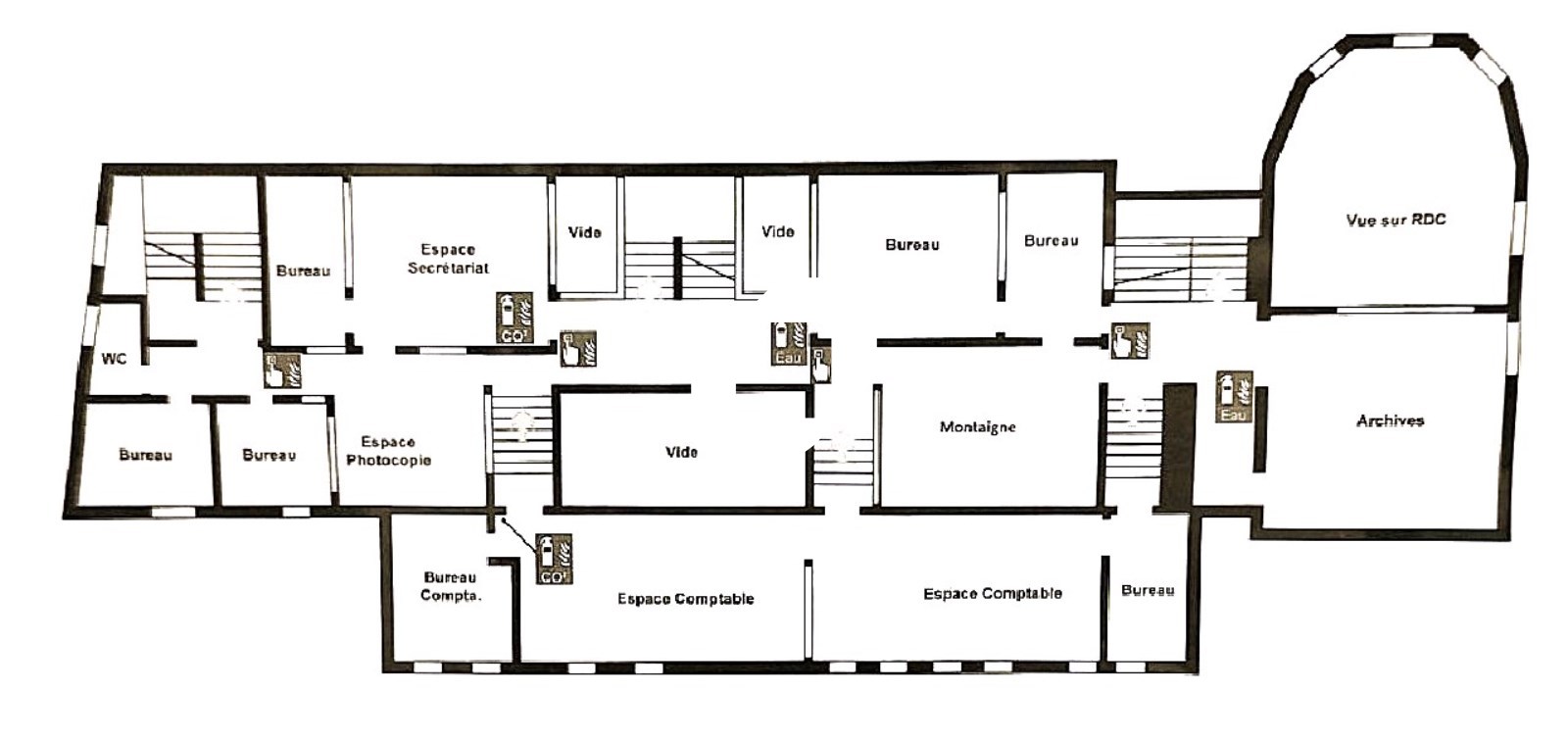
Répartition & surfaces des espaces
Tableau des divisibilités
| Type | Étage | Surface | Prix achat (€/m² HT HC) |
Charges (achat) (€/m² HT HC) |
|---|---|---|---|---|
| Bureaux | Rez-de-Chaussée | 341 m² | Prix sur demande | Prix sur demande |
| Bureaux | 1er étage | 283 m² | Prix sur demande | Prix sur demande |
| Bureaux | 2ème étage | 207 m² | Prix sur demande | Prix sur demande |
Performance énergétique du bien (DPE)


Informations non contractuelles
Localisation & accès
Transports en commun à proximité
23
82
50
Accès routier
D - arrêt Barrière du Médoc (70 m)
Adresses
approximatives
Adresses
précises
Nos nouveaux biens qui pourraient vous intéresser
Bureaux - 807.67m²
BORDEAUX (33000)
BORDEAUX (33000)
0.00€ HT HC
Disponibilité : 3 mois après accord
Surface : 807.67 m²
Les entrepreneurs ayant consulté cette offre ont aussi consulté celles ci
Bureaux - 308m²
LEVALLOIS PERRET (92300)
LEVALLOIS PERRET (92300)
2 099 999.44€ HT HC
Disponibilité : Immédiate
Surface : 308 m²
Bureaux - 6 934m² Divisibles à partir de 173 m²
LYON (69009)
LYON (69009)
Prix sur demande
Disponibilité : Selon les lots – nous consulter
Surface : divisibles à partir de 173 m²
Bureaux - 347.42m²
NEUILLY SUR SEINE (92200)
NEUILLY SUR SEINE (92200)
2 648 542.00€ HT HC
Disponibilité : Immédiate
Surface : 347.42 m²
Bureaux - 1 061.86m²
DARDILLY (69570)
DARDILLY (69570)
3 200 421.96€ HT HC
Disponibilité : Immédiate
Surface : 1 061.86 m²