Retour
Disponibilité Immédiate
À Acheter Bureaux 388.51 m² divisibles à partir de 166.18 m² MERIGNAC (33700)
Ajouter au comparateur
Vous souhaitez faciliter votre recherche ?
Créez un compte
Présentation du bien
Au sein du parc VERT CASTEL à Mérignac et à proximité de l’aéroport de Bordeaux-Mérignac, Immprove vous propose plusieurs surfaces de bureaux à la vente.
Ce bâtiment moderne de 1 050 m² accueille des bureaux sur deux étages, disposant de la fibre optique.
Surface totale
Nature
Divisibilité
Etat des locaux
388.51 m²
Bureaux
Oui à partir de 166.18 m²
Neuf
Prix & Conditions
Vente :
2 510.00 € (HD)
2 510.00 € /m² (HD)
Divisibles à partir de 166.18 m²
Conditions vente :
Loi Carrez et affectation juridique en cours de détermination
Prestations & équipements du bien
Le bâtiment
Immeuble récent
Parties communes de qualité
Les espaces de travail
Fibre optique . Neuf
Locaux rationnels et modulables
Faux plafonds
Câblage informatique et téléphonique
Prises RJ45
Sanitaires privatifs
Le confort au quotidien
Climatisation réversible
Locaux traversants
Locaux lumineux
Moquette
Climatisation réversible
Les accès
Accès véhicules légers
Portail d'accès
Sécurité du site
Digicode
Interphone
Site clos
Accessibilité
Ascenseur
Autres
Locaux E.R.P.
Loi Carrez et affectation juridique en cours de détermination
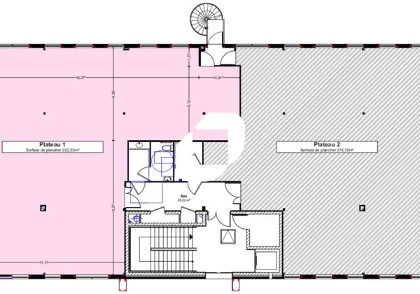
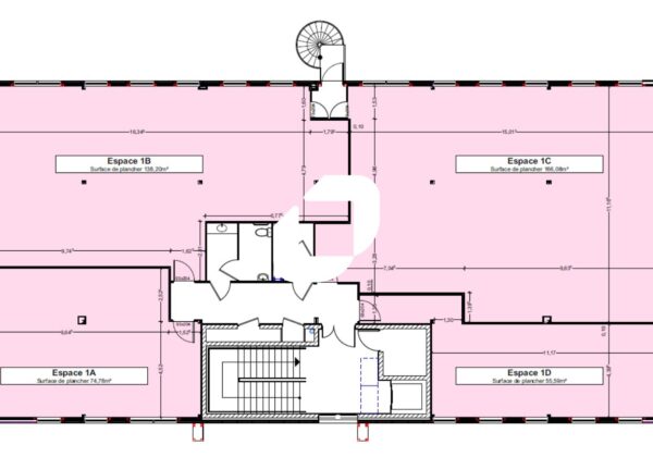
Répartition & surfaces des espaces
Tableau des divisibilités
| Type | Étage | Surface | Prix achat (€/m² HT HC) |
Charges (achat) (€/m² HT HC) |
|---|---|---|---|---|
| Parkings | 30 000.00 | Prix sur demande | ||
| Parkings | 59 000.00 | Prix sur demande | ||
| Bureaux | 1er étage | 166 m² | 2 525.00 | Prix sur demande |
| Bureaux | 2ème étage | 222 m² | 2 510.00 | Prix sur demande |
Performance énergétique du bien (DPE)


Informations non contractuelles
Localisation & accès
Transports en commun à proximité
11
39
82
88
Accès routier
Rocade sortie 10
Aéroport de Bordeaux
A630
Adresses
approximatives
Adresses
précises
Nos nouveaux biens qui pourraient vous intéresser
Les entrepreneurs ayant consulté cette offre ont aussi consulté celles ci
Bureaux - 308m²
LEVALLOIS PERRET (92300)
LEVALLOIS PERRET (92300)
2 099 999.44€ HT HC
Disponibilité : Immédiate
Surface : 308 m²
Bureaux - 6 934m² Divisibles à partir de 173 m²
LYON (69009)
LYON (69009)
Prix sur demande
Disponibilité : Selon les lots – nous consulter
Surface : divisibles à partir de 173 m²
Bureaux - 347.42m²
NEUILLY SUR SEINE (92200)
NEUILLY SUR SEINE (92200)
2 648 542.00€ HT HC
Disponibilité : Immédiate
Surface : 347.42 m²
Bureaux - 1 061.86m²
DARDILLY (69570)
DARDILLY (69570)
3 200 421.96€ HT HC
Disponibilité : Immédiate
Surface : 1 061.86 m²