Retour
Disponibilité Immédiate
À Acheter Bureaux 243.34 m² divisibles à partir de 118.74 m² PORNIC (44210)
Ajouter au comparateur
Vous souhaitez faciliter votre recherche ?
Créez un compte
Présentation du bien
Dans un immeuble neuf de bureaux à proximité de Nantes, proche littoral, Immprove vous propose à la vente deux plateaux de bureaux loués disponibles à la division.
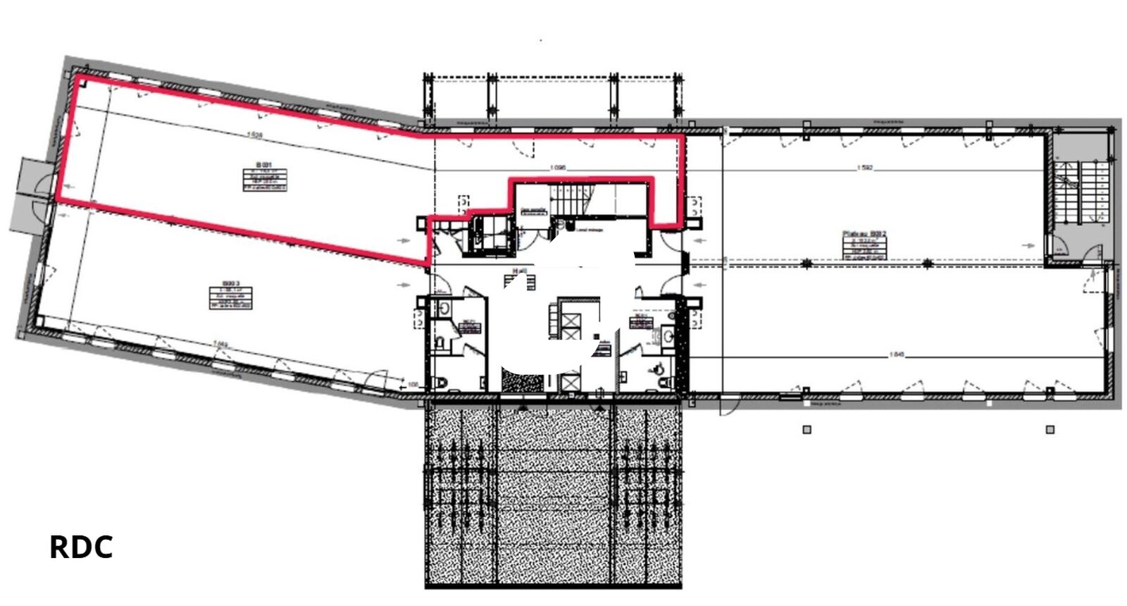
RDC de 131,51m² loué en bail 6/9 à un établissement public de santé.
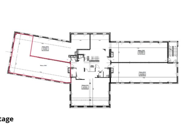
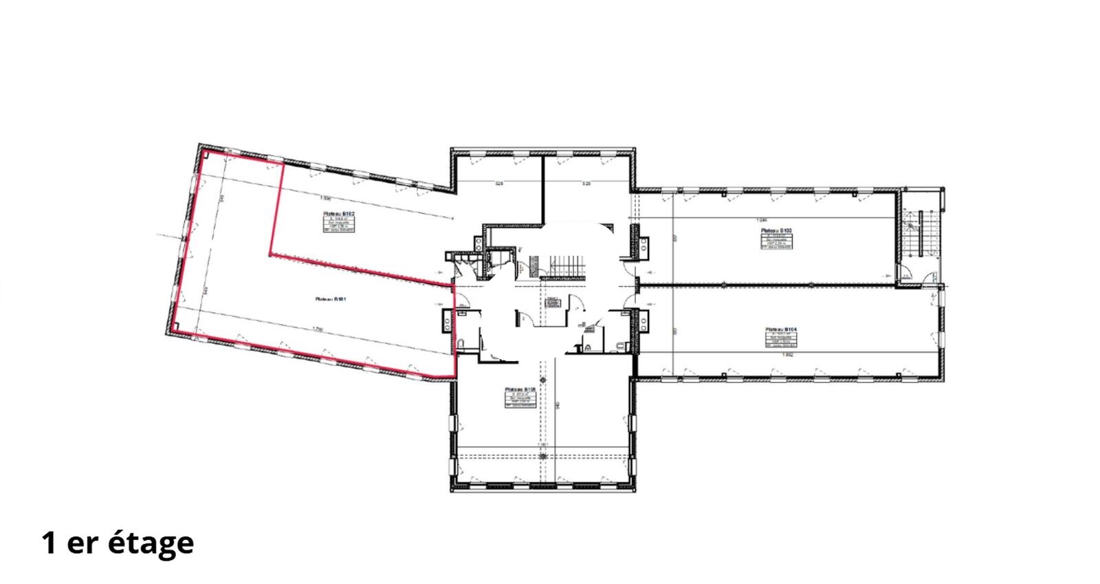
1er étage de 138,09 m² loué en bail 3/6/9 à une société de conseil.
Rendement AEM : 6,51%
Surface totale
Nature
Divisibilité
Etat des locaux
243.34 m²
Bureaux
Oui à partir de 118.74 m²
Neuf
Prix & Conditions
Vente :
617 536.00 € (HD)
2 537.74 € /m² (HD)
Divisibles à partir de 118.74 m²
Conditions vente :
Loi Carrez et affectation juridique en cours de détermination
Prestations & équipements du bien
Le bâtiment
Parties communes de qualité
Les espaces de travail
Immeuble neuf
Le confort au quotidien
Jardin paysager
Les accès
Accès PMR
Accessibilité
Ascenseur
Extérieur
RDC 118.74 m² + 4 parkings
1 er étage 124.60 m² + 4 parkings
Autres
Loués en bail 6/9 à 21.923 € / an HT HC
Surloyer pour travaux d'aménagement refacturé par le vendeur à prévoir
Loués en bail 3/6/9 à 21.500 €/ an HT HC
Loi Carrez et affectation juridique en cours de détermination
Répartition & surfaces des espaces
Tableau des divisibilités
| Type | Étage | Surface | Prix achat (€/m² HT HC) |
Charges (achat) (€/m² HT HC) |
|---|---|---|---|---|
| Bureaux | Rez-de-Chaussée | 119 m² | Prix sur demande | Prix sur demande |
| Bureaux | R + 1 | 125 m² | Prix sur demande | Prix sur demande |
Performance énergétique du bien (DPE)


Informations non contractuelles
Localisation & accès
Transports en commun à proximité
Gare de Pornic à 1.6kms
315
Accès routier
D213-D751
Pistes cyclables
Adresses
approximatives
Adresses
précises
Nos nouveaux biens qui pourraient vous intéresser
Bureaux - 308m²
LEVALLOIS PERRET (92300)
LEVALLOIS PERRET (92300)
2 099 999.44€ HT HC
Disponibilité : Immédiate
Surface : 308 m²
Bureaux - 347.42m²
NEUILLY SUR SEINE (92200)
NEUILLY SUR SEINE (92200)
2 648 542.00€ HT HC
Disponibilité : Immédiate
Surface : 347.42 m²
Bureaux - 851m²
SAINT MAUR DES FOSSES (94100)
SAINT MAUR DES FOSSES (94100)
0.00€ HT HC
Disponibilité : Immédiate
Surface : 851 m²
Les entrepreneurs ayant consulté cette offre ont aussi consulté celles ci
Bureaux - 308m²
LEVALLOIS PERRET (92300)
LEVALLOIS PERRET (92300)
2 099 999.44€ HT HC
Disponibilité : Immédiate
Surface : 308 m²
Bureaux - 6 934m² Divisibles à partir de 173 m²
LYON (69009)
LYON (69009)
Prix sur demande
Disponibilité : Selon les lots – nous consulter
Surface : divisibles à partir de 173 m²
Bureaux - 347.42m²
NEUILLY SUR SEINE (92200)
NEUILLY SUR SEINE (92200)
2 648 542.00€ HT HC
Disponibilité : Immédiate
Surface : 347.42 m²