Retour
Bureaux - 510.50m² à Acheter
. Site clos
. Bureaux cloisonnés
. Double exposition
. Décloisonnement possible
. Climatisation réversible
. Espace détente
. Local technique
. Plinthes périphériques
. Chauffage électrique
. Sol PVC
. Cuisine
. Sanitaires privatifs
Bureaux - 510.50m² à Acheter
ALLEE DU CHATEAU LISSIEU (69380)
DESCRIPTION
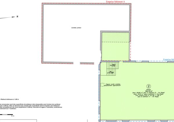
IMMPROVE vous propose à la vente une surface de bureaux d’environ 510 m², située dans un immeuble indépendant édifié sur un terrain clos et sécurisé d’environ 2 000 m². Les locaux, exclusivement à usage de bureaux, sont répartis en trois espaces distincts : deux au rez-de-chaussée et un à l’étage, accessible par un escalier.
En savoir plus
. Immeuble ancien. Site clos
. Bureaux cloisonnés
. Double exposition
. Décloisonnement possible
. Climatisation réversible
. Espace détente
. Local technique
. Plinthes périphériques
. Chauffage électrique
. Sol PVC
. Cuisine
. Sanitaires privatifs
Consommations énergétiques


Informations non contractuelles
Tableau des divisibilités
| Type | Étage | Surface | Prix achat (€/m² HT HC) |
Charges (achat) (€/m² HT HC) |
|---|---|---|---|---|
| Parkings | 5 000.00 | Prix sur demande | ||
| Bureaux | Rez-de-Chaussée | 158 m² | 1 715.00 | Prix sur demande |
| Bureaux | Rez-de-Chaussée | 163 m² | 1 715.00 | Prix sur demande |
| Bureaux | 1er étage | 189 m² | 1 715.00 | Prix sur demande |
Caractéristiques
- Surface 510.50 m²
- Etat des locaux Bon état
- Nbre Parking 30
Adresses
approximatives
Adresses
précises
Nos nouveaux biens qui pourraient vous intéresser
Bureaux - 1 206m² Divisibles à partir de 402 m²
à Acheter
LISSIEU (69380)
Voir le bien
3 256 200.00€
HT HC
HT HC
Les entrepreneurs ayant consulté cette offre ont aussi consulté celles ci
Les services Immprove
Une gamme complète de services qui facilitent vos démarches et destinée à satisfaire vos attentes