Retour
Disponibilité Immédiate
À Acheter Bureaux 190 m² PARIS (75012)
Ajouter au comparateur
Vous souhaitez faciliter votre recherche ?
Créez un compte
Présentation du bien
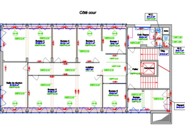
A proximité du métro Michel Bizot, au sein d’un immeuble tertiaire sur cour, Immprove vous propose à la vente un plateau entier de bureaux lumineux et en étage en excellent état. Les bureaux sont configurés en une entrée avec un bureaux d’accueil, un couloir central desservant 6 bureaux et un open space. Salle de réunion et cuisine attenantes en accès direct sur le palier. Bureaux câblés, baie de brassage, chauffage collectif, accès sécurisé par badge ou interphone. Possibilité de bail dérogatoire ou commercial.
Surface totale
Nature
Divisibilité
Etat des locaux
190 m²
Bureaux
Non
Bon état
Prix & Conditions
Vente :
1 400 000.00 € (HD)
7 368.42 € /m² (HD)
Impôt foncier :
4300.00
Taxe bureaux :
2500
Prestations & équipements du bien
Le bâtiment
Immeuble récent
Les espaces de travail
Fibre optique . 4EME ETAGE :
Accueil/ Espace ouvert / Bureaux cloisonnés / Salle de réunion / Espace détente
Cuisine ( entre les 2 espaces )
Local technique
Cuisine
Faux plafonds dans le couloir
Câblage inf./ Prises RJ45
Sécurité du site
Digicode
Interphone
Accès sécurisé par badge
Accessibilité
Ascenseur
Ascenseur PMR
Prestations spécifiques
Chauffage CPCU
Extérieur
Possibilité parkings et local à vélos
Autres
livré brut ( espace complètement ouvert )
HSP 2.50 m
HSP 2.14 sous poutre
6 EME ETAGE :
Locaux cloisonnés et en excellent état
Locaux en excellent état et lumineux
Répartition & surfaces des espaces
Tableau des divisibilités
| Type | Étage | Surface | Prix achat (€/m² HT HC) |
Charges (achat) (€/m² HT HC) |
|---|---|---|---|---|
| Bureaux | 6ème étage | 190 m² | 7 368.42 | Prix sur demande |
Performance énergétique du bien (DPE)


Informations non contractuelles
Localisation & accès
Transports en commun à proximité
201
46
77
87
Accès routier
Porte Dorée (N33)
Porte Dorée (T3a)
Adresses
approximatives
Adresses
précises
Nos nouveaux biens qui pourraient vous intéresser
Bureaux - 718m² Divisibles à partir de 230 m²
PARIS (75003)
PARIS (75003)
0.00€ HT HC
Disponibilité : Immédiate
Surface : divisibles à partir de 230 m²
Les entrepreneurs ayant consulté cette offre ont aussi consulté celles ci
Bureaux - 308m²
LEVALLOIS PERRET (92300)
LEVALLOIS PERRET (92300)
2 099 999.44€ HT HC
Disponibilité : Immédiate
Surface : 308 m²
Bureaux - 6 934m² Divisibles à partir de 173 m²
LYON (69009)
LYON (69009)
Prix sur demande
Disponibilité : Selon les lots – nous consulter
Surface : divisibles à partir de 173 m²
Bureaux - 347.42m²
NEUILLY SUR SEINE (92200)
NEUILLY SUR SEINE (92200)
2 648 542.00€ HT HC
Disponibilité : Immédiate
Surface : 347.42 m²