Retour
Bureaux - 303.70m² à Acheter
. Bâtiment indépendant
. Accès PMR
. Accès privatif sur rue
. Digicode . Travaux à prévoir
. Espace ouvert
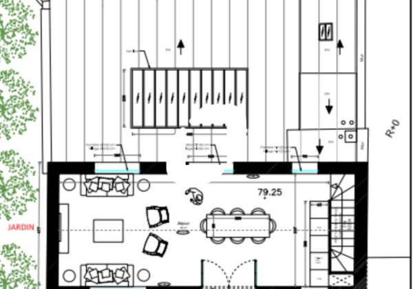
. Bureaux cloisonnés
. Salle de réunion
. Espace détente
. Local technique
. Cuisine
. Locaux traversants
. Locaux lumineux
. Décloisonnement possible
Bureaux - 303.70m² à Acheter
PARIS (75015)
DESCRIPTION
A proximité de la porte de Versailles, Immprove vous propose à la vente un bâtiment mixte bureaux et habitation en R+3 complétement indépendant. L'immeuble a été entièrement rénové avec des matériaux de qualité. Idéale pour un chef d'entreprise qui souhaite des bureaux et un appartement de fonction ou une fondation/association profession libérale sur l'intégralité du bâtiment. Pas de copropriété.
En savoir plus
. Immeuble ancien. Bâtiment indépendant
. Accès PMR
. Accès privatif sur rue
. Digicode . Travaux à prévoir
. Espace ouvert
. Bureaux cloisonnés
. Salle de réunion
. Espace détente
. Local technique
. Cuisine
. Locaux traversants
. Locaux lumineux
. Décloisonnement possible
Consommations énergétiques


Informations non contractuelles
Tableau des divisibilités
| Type | Étage | Surface | Prix achat (€/m² HT HC) |
Charges (achat) (€/m² HT HC) |
|---|---|---|---|---|
| Locaux Commerciaux | Rez-de-Chaussée | 113 m² | Prix sur demande | Prix sur demande |
| Mezzanine | Rez-de-Chaussée | 26 m² | Prix sur demande | Prix sur demande |
| Habitation | 1er étage | 60 m² | Prix sur demande | Prix sur demande |
| Habitation | 2ème et 3ème étage | 105 m² | Prix sur demande | Prix sur demande |
| Terrasse | 2ème et 3ème étage | 32 m² | Prix sur demande | Prix sur demande |
Caractéristiques
290m² Loi Carrez
Affectation juridique en cours de détermination
180.000 € de TVA dans la prix de vente
Taxe balayage : 449,48 €
- Surface 303.70 m²
- Etat des locaux Travaux à prévoir
- Digicode oui
Adresses
approximatives
Adresses
précises
Nos nouveaux biens qui pourraient vous intéresser
Les entrepreneurs ayant consulté cette offre ont aussi consulté celles ci
Les services Immprove
Une gamme complète de services qui facilitent vos démarches et destinée à satisfaire vos attentes