Retour
Disponibilité Immédiate
À Acheter Bureaux 347.60 m² divisibles à partir de 150.10 m² MONTIGNY LE BRETONNEUX (78180)
Ajouter au comparateur
Vous souhaitez faciliter votre recherche ?
Créez un compte
Présentation du bien
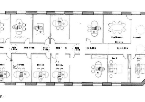
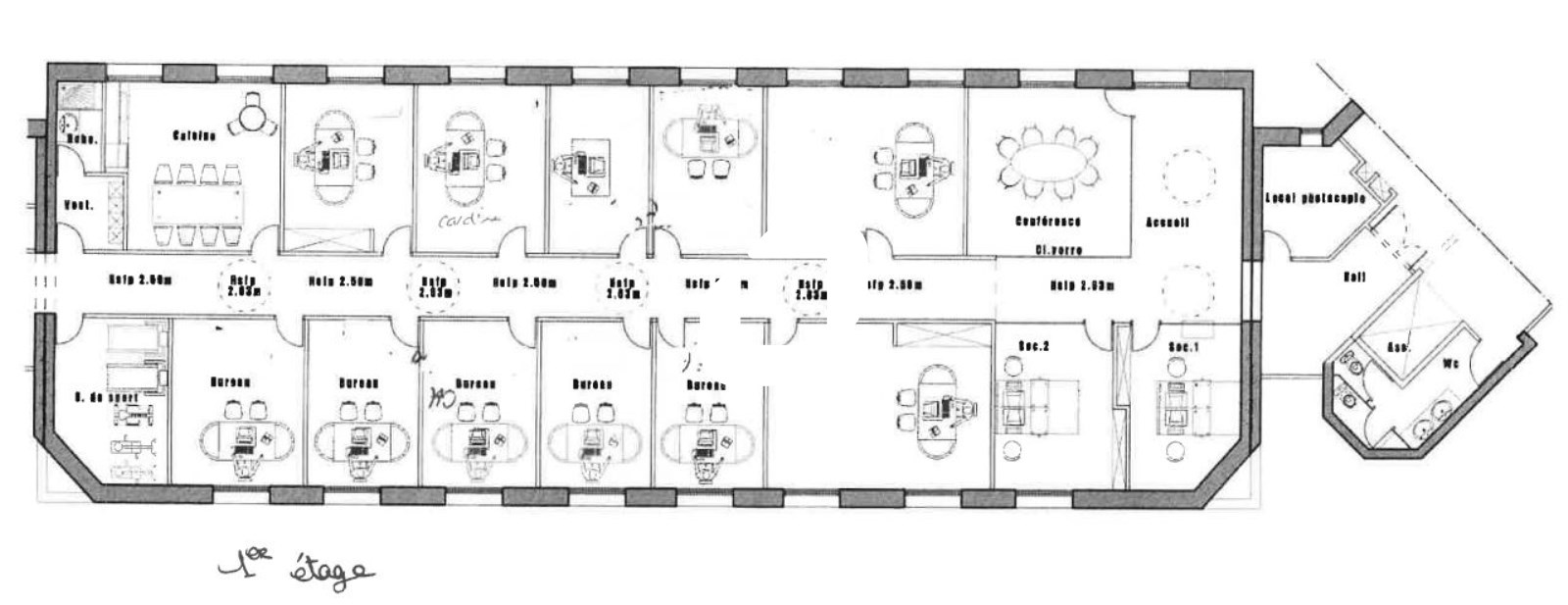
A VENDRE - Immprove vous propose à l’acquisition ce beau plateau de bureaux entièrement rénové, d’une surface totale de 347 m² divisibles à partir de 150 m². Situé au premier étage avec ascenseur, vous bénéficierez d’un double accès au plateau. Idéalement agencé. 9 places de stationnement en extérieur.
Surface totale
Nature
Divisibilité
Etat des locaux
347.60 m²
Bureaux
Oui à partir de 150.10 m²
Rénové
Prix & Conditions
Vente :
1 300.00 € (HD)
1 300.00 € /m² (HD)
Divisibles à partir de 150.10 m²
Impôt foncier :
1565.00
Taxe bureaux :
12.03
Conditions vente :
Loi Carrez et affectation juridique en cours de détermination
Prestations & équipements du bien
Le bâtiment
Immeuble récent
Les espaces de travail
Hall d'accueil
Fibre optique . Surface de 347,60 m² divisibles à partir de 150,10 m²
Locaux rénovés, traversants et lumineux
Agencement : Accueil, bureaux cloisonnés (cloisons amovibles), salle de réunion, espace de sport, local technique, cuisine, douche
Sanitaires privatifs sur parties communes
Faux plafonds
Plinthes périphériques
Prises RJ45
Le confort au quotidien
Sol moquette / PVC
Les accès
Accès véhicules légers
Double accès
Sécurité du site
Sécurisé par digicode et interphone
Accessibilité
Ascenseur
Ascenseur
Services & espaces partagés
R.I.E à proximité
Prestations spécifiques
Chauffage électrique individuel
Loi Carrez et affectation juridique en cours de détermination
Répartition & surfaces des espaces
Tableau des divisibilités
| Type | Étage | Surface | Prix achat (€/m² HT HC) |
Charges (achat) (€/m² HT HC) |
|---|---|---|---|---|
| Parkings | Prix sur demande | Prix sur demande | ||
| Bureaux | 1er étage | 150 m² | 1 300.00 | 27.66 |
| Bureaux | 1er étage | 198 m² | 1 300.00 | 27.66 |
Performance énergétique du bien (DPE)


Informations non contractuelles
Localisation & accès
Transports en commun à proximité
Gare SNCF Saint Quentin en Yvelines
404
414
415
419
Accès routier
Autoroutes A12 et A86
Nationales N10 et N12
Adresses
approximatives
Adresses
précises
Nos nouveaux biens qui pourraient vous intéresser
Bureaux - 142m²
MONTIGNY LE BRETONNEUX (78180)
MONTIGNY LE BRETONNEUX (78180)
230 000.24€ HT HC
Disponibilité : Immédiate
Surface : 142 m²
Bureaux - 742.58m² Divisibles à partir de 135.88 m²
MONTIGNY LE BRETONNEUX (78180)
MONTIGNY LE BRETONNEUX (78180)
659 400.00€ HT HC
Disponibilité : Immédiate
Surface : divisibles à partir de 135.88 m²
Bureaux - 1 060.58m² Divisibles à partir de 164.47 m²
MONTIGNY LE BRETONNEUX (78180)
MONTIGNY LE BRETONNEUX (78180)
262 400.00€ HT HC
Disponibilité : Immédiate
Surface : divisibles à partir de 164.47 m²
Les entrepreneurs ayant consulté cette offre ont aussi consulté celles ci
Bureaux - 697.70m²
NOISY LE GRAND (93160)
NOISY LE GRAND (93160)
750 322.08€ HT HC
Disponibilité : Immédiate
Surface : 697.70 m²
Bureaux et Activités - 1 002m²
SAINT PATHUS (77178)
SAINT PATHUS (77178)
1 549 993.80€ HT HC
Disponibilité : Immédiate
Surface : 1 002 m²
Bureaux - 113.06m² Divisibles à partir de 37.51 m²
TRAPPES (78190)
TRAPPES (78190)
121 600.00€ HT HC
Disponibilité : Immédiate
Surface : divisibles à partir de 37.51 m²