Retour
Disponibilité Immédiate
À Acheter Bureaux 223 m² MONTROUGE (92120)
Ajouter au comparateur
Vous souhaitez faciliter votre recherche ?
Créez un compte
Présentation du bien
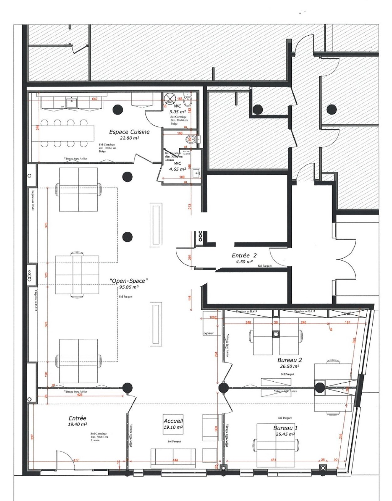
IMMPROVE vous propose en plein cœur du centre ville de Montrouge, une belle surface de bureaux entièrement rénovée typée loft en rez-de-chaussée accessible PMR. Proche commerces de proximité et transports, cette surface aux aménagements soignés saura vous donner quiétude et originalité au travail !
Métro ligne 4 Surface Erpéable.
Surface totale
Nature
Divisibilité
Etat des locaux
223 m²
Bureaux
Non
Bon état
Prix & Conditions
Vente :
1 360 000.00 € (HD)
6 098.65 € /m² (HD)
Impôt foncier :
4307.00
Conditions vente :
Prix de vente non négociable.
5% HT du prix de vente en sus à la charge de l'acquéreur
5% HT du prix de vente en sus à la charge de l'acquéreur
Prestations & équipements du bien
Les espaces de travail
Surface entièrement rénovée
Espace cuisine aménagé
Pré câblage informatique
Doubles sanitaires privatifs accessibles PMR
Luminaires / Spots intégrés
Le confort au quotidien
Parquet
Prestations spécifiques
Chauffage électrique
Autres
Semi cloisonné avec verrières type loft
Espaces de rangements muraux intégrés
Prix de vente non négociable.
5% HT du prix de vente en sus à la charge de l'acquéreur
Répartition & surfaces des espaces
Tableau des divisibilités
| Type | Étage | Surface | Prix achat (€/m² HT HC) |
Charges (achat) (€/m² HT HC) |
|---|---|---|---|---|
| Parkings | Prix sur demande | Prix sur demande | ||
| Bureaux | Rez-de-Chaussée | 223 m² | 6 098.65 | 20.33 |
Performance énergétique du bien (DPE)


Informations non contractuelles
Localisation & accès
Transports en commun à proximité
Adresses
approximatives
Adresses
précises
Nos nouveaux biens qui pourraient vous intéresser
Les entrepreneurs ayant consulté cette offre ont aussi consulté celles ci
Bureaux - 3 639m² Divisibles à partir de 578 m²
NOISY LE GRAND (93160)
NOISY LE GRAND (93160)
6 732 150.00€ HT HC
Disponibilité : Immédiate
Surface : divisibles à partir de 578 m²
Bureaux et Activités - 435m²
VILLIERS SUR MARNE (94350)
VILLIERS SUR MARNE (94350)
639 998.10€ HT HC
Disponibilité : Immédiate
Surface : 435 m²