Retour
Disponibilité Immédiate
À Acheter Bureaux 569.20 m² divisibles à partir de 212.41 m² 2-10 RUE DE LA RENAISSANCE ANTONY (92160)
Ajouter au comparateur
Vous souhaitez faciliter votre recherche ?
Créez un compte
Présentation du bien
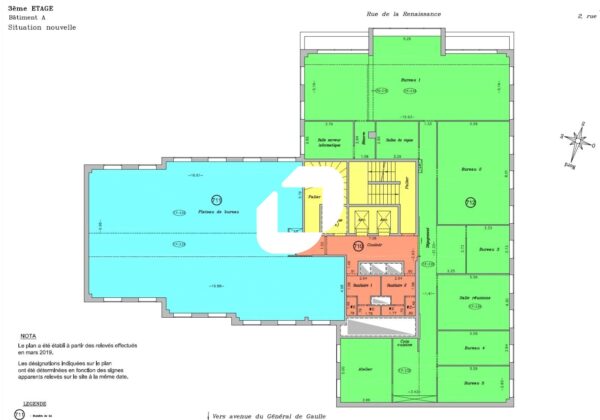
On vous propose à la vente dans le bâtiment A de l'ensemble immobilier le Renaissance, un plateau de bureaux situé au 2ème étage divisible en deux lots de 200 et 341 m².
Idéalement situé, l'immeuble est aux abords du Parc de Sceaux, tout en bénéficiant de la proximité du RER B et du TRAM 10. 16 parkings sont disponibles en sous sol.
Surface totale
Nature
Divisibilité
Etat des locaux
569.20 m²
Bureaux
Oui à partir de 212.41 m²
Bon état
Prix & Conditions
Vente :
1 700 000.00 € (HD)
3 307.27 € /m² (HD)
Divisibles à partir de 212.41 m²
Impôt foncier :
14245.00
Taxe bureaux :
10570
Conditions vente :
PRIX DE VENTE A LA DECOUPE :
lot 714 : 720 000 € HD
lot 715 : 1 180 000 € HD
lot 714 : 720 000 € HD
lot 715 : 1 180 000 € HD
Prestations & équipements du bien
Le bâtiment
Immeuble de bureaux de standing
Les espaces de travail
Locaux en bon état
Luminaires LED
Cuisine aménagée
Cloisonnement amovible
Pré- câblage informatique
Le confort au quotidien
Sol Parquet
Climatisation
Les accès
Accès PMR
Sécurité du site
Contrôle d'accès
Accessibilité
Ascenseurs
Services & espaces partagés
Restaurant inter-entreprise
Prestations spécifiques
Chauffage immeuble
Autres
Façade murs rideaux
Parc de Sceaux, commerces, hôtels et services à proximité
Sanitaires Hommes et femmes sur palier privatif
Faux plafond
PRIX DE VENTE A LA DECOUPE :
lot 714 : 720 000 € HD
lot 715 : 1 180 000 € HD
Répartition & surfaces des espaces
Tableau des divisibilités
| Type | Étage | Surface | Prix achat (€/m² HT HC) |
Charges (achat) (€/m² HT HC) |
|---|---|---|---|---|
| Parkings | 2ème Sous-Sol | Prix sur demande | Prix sur demande | |
| Bureaux | 2ème étage | 212 m² | 3 389.67 | 62.69 |
| Bureaux | 2ème étage | 357 m² | 3 307.27 | 62.69 |
Performance énergétique du bien (DPE)


Informations non contractuelles
Localisation & accès
Transports en commun à proximité
SNCF gare de La Croix de Berny Fresnes
12
379
N62
Adresses
approximatives
Adresses
précises
Nos nouveaux biens qui pourraient vous intéresser
Les entrepreneurs ayant consulté cette offre ont aussi consulté celles ci
Bureaux - 3 639m² Divisibles à partir de 578 m²
NOISY LE GRAND (93160)
NOISY LE GRAND (93160)
6 732 150.00€ HT HC
Disponibilité : Immédiate
Surface : divisibles à partir de 578 m²
Bureaux et Activités - 435m²
VILLIERS SUR MARNE (94350)
VILLIERS SUR MARNE (94350)
639 998.10€ HT HC
Disponibilité : Immédiate
Surface : 435 m²