Retour
Disponibilité Immédiate
À Acheter Bureaux 874 m² 38-40 RUE GABRIEL CRIE MALAKOFF (92240)
Ajouter au comparateur
Vous souhaitez faciliter votre recherche ?
Créez un compte
Présentation du bien
En plein cœur du centre ville de Malakoff, au sein d'un quartier tertiaire entouré de commerces, nous vous proposons à la vente, un plateau de bureaux climatisé et cloisonné, en excellent état. Immeuble de bureaux de bon standing avec hôtesse d'accueil, et nombreux parkings en sous sol.
Métro ligne 13 à proximité immédiate !
Surface totale
Nature
Divisibilité
Etat des locaux
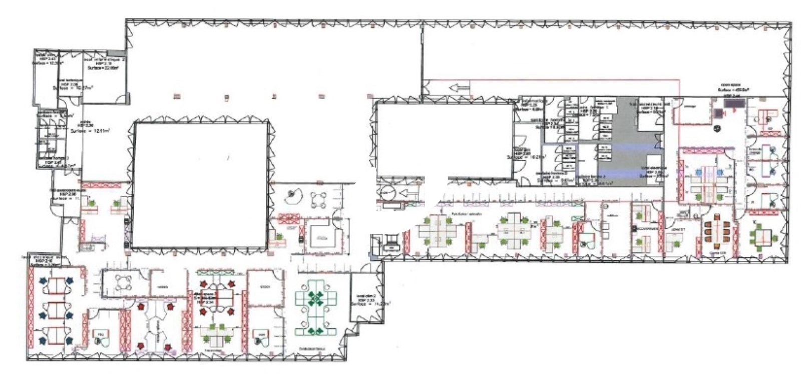
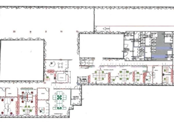
874 m²
Bureaux
Non
Bon état
Prix & Conditions
Vente :
3 400 000.00 € (HD)
3 890.16 € /m² (HD)
Impôt foncier :
35.00
Taxe bureaux :
10.91
Prestations & équipements du bien
Le bâtiment
Immeuble moderne
Les espaces de travail
Hôtesse d’accueil disponible dans le hall de l’immeuble
Câblage informatique catégorie 5 et baie de brassage
Cloisonnement amovible de très bonne qualité
Le confort au quotidien
Climatisation réversible
Moquette
Accessibilité
Ascenseurs
Prestations spécifiques
Chauffage collectif au fuel
Extérieur
Emplacements de parking en sous-sol . Faux plancher technique sur la moitié du plateau
Autres
Immeuble à usage de de bureaux en R + 5
Façade murs rideaux
Structure en béton, recouverte de briques en partie basse
Contrôle d’accès intérieur
Faux plafond
Sanitaires PMR et privatifs
Répartition & surfaces des espaces
Tableau des divisibilités
| Type | Étage | Surface | Prix achat (€/m² HT HC) |
Charges (achat) (€/m² HT HC) |
|---|---|---|---|---|
| Parkings | 1er Sous-Sol | Prix sur demande | Prix sur demande | |
| Bureaux | 3ème étage | 874 m² | 3 890.16 | 55.00 |
Performance énergétique du bien (DPE)


Informations non contractuelles
Localisation & accès
Transports en commun à proximité
20
191
Accès routier
Orly
Boulevard Périphérique Porte de Brancion» (à 3 mn en voiture)
L’Hirondelle –Arrêt «Hôtel de Ville» (à 5 mn à pied)
Adresses
approximatives
Adresses
précises
Nos nouveaux biens qui pourraient vous intéresser
Les entrepreneurs ayant consulté cette offre ont aussi consulté celles ci
Bureaux - 3 639m² Divisibles à partir de 578 m²
NOISY LE GRAND (93160)
NOISY LE GRAND (93160)
6 732 150.00€ HT HC
Disponibilité : Immédiate
Surface : divisibles à partir de 578 m²
Bureaux et Activités - 435m²
VILLIERS SUR MARNE (94350)
VILLIERS SUR MARNE (94350)
639 998.10€ HT HC
Disponibilité : Immédiate
Surface : 435 m²