Retour
Disponibilité Immédiate
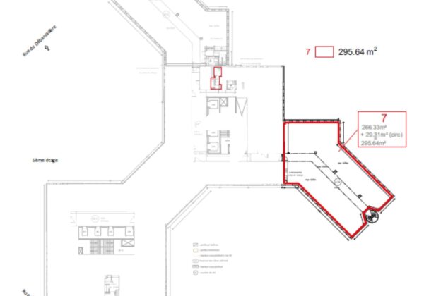
À Acheter Bureaux 295.64 m² COLOMBES (92700)
Ajouter au comparateur
Vous souhaitez faciliter votre recherche ?
Créez un compte
Présentation du bien
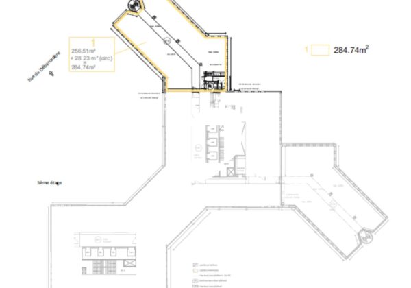
Au sein d'un immeuble moderne à usage unique de bureaux, au pied du Tram2 et proche de la gare SNCF (Ligne L).Immprove vous propose de beaux plateaux de bureaux entièrement rénovés et divisibles. D'une surface d'environ 580.38m² divisibles comme suit : 284,74m² et 295.64m².
15 emplacements de parking sont disponibles à l'achat ou à la location.
Surface totale
Nature
Divisibilité
Etat des locaux
295.64 m²
Bureaux
Non
Etat d’usage
Prix & Conditions
Vente :
2 705.99 € (HD)
2 705.99 € /m² (HD)
Impôt foncier :
30.00
Taxe bureaux :
18.72
Conditions vente :
Loi Carrez et affectation juridique en cours de détermination
Prestations & équipements du bien
Le bâtiment
Immeuble moderne
Parties communes rénovées récemment
Les espaces de travail
Fibre optique
Hôtesse d'accueil
Plateau rénové
Surfaces livrées en espace ouvert
Sanitaires privatifs pour chaque lot
Le confort au quotidien
Climatisation
Service courrier
Climatisation réversible neuve Daikin
Les accès
Accès véhicules légers
Accès PMR
Sécurité du site
PC sécurité
Site sécurisé 24h/24h
Digicode
Interphone
Contrôle d'accès
Gardien
Accessibilité
Ascenseur
Monte-charge
Services & espaces partagés
R.I.E. . Ravalement récent (2017)
Autres
Surfaces lumineuses et traversantes
Goulottes périphériques
Arrivée en attente pour une kitchenette pour chaque lot
Sanitaires PMR
Loi Carrez et affectation juridique en cours de détermination
Répartition & surfaces des espaces
Tableau des divisibilités
| Type | Étage | Surface | Prix achat (€/m² HT HC) |
Charges (achat) (€/m² HT HC) |
|---|---|---|---|---|
| Parkings | 12 000.00 | Prix sur demande | ||
| Bureaux | 5ème étage | 296 m² | 2 705.99 | Prix sur demande |
Performance énergétique du bien (DPE)


Informations non contractuelles
Localisation & accès
Transports en commun à proximité
Gare " La Garenne Colombes"à 2 min
161
163
176
262
272
378
Accès routier
T2 station "Jacques Auriol"à 3 min
D 992, boulevard national, A14 par La Défense
Adresses
approximatives
Adresses
précises
Nos nouveaux biens qui pourraient vous intéresser
Les entrepreneurs ayant consulté cette offre ont aussi consulté celles ci
Bureaux - 3 639m² Divisibles à partir de 578 m²
NOISY LE GRAND (93160)
NOISY LE GRAND (93160)
6 732 150.00€ HT HC
Disponibilité : Immédiate
Surface : divisibles à partir de 578 m²
Bureaux et Activités - 435m²
VILLIERS SUR MARNE (94350)
VILLIERS SUR MARNE (94350)
639 998.10€ HT HC
Disponibilité : Immédiate
Surface : 435 m²