Retour
Disponibilité 1er juin 2026
À Acheter Bureaux et Activités 814.26 m² divisibles à partir de 221.85 m² 50-52 RUE VOLTAIRE FRESNES (94260)
Ajouter au comparateur
Vous souhaitez faciliter votre recherche ?
Créez un compte
Présentation du bien
Nous vous proposons à la vente et à la location à partir du T1 2026, des locaux d’environ 772,36m² dans un immeuble neuf, mixte entre activité et bureaux qui est adapté PMR/ERP.
Surface totale
Nature
Divisibilité
Etat des locaux
814.26 m²
Bureaux et Activités
Oui à partir de 221.85 m²
Brut de béton
Prix & Conditions
Vente :
2 553 053.00 € (HD)
3 200.00 € /m² (HD)
Divisibles à partir de 221.85 m²
Prestations & équipements du bien
Le bâtiment
Immeuble récent
Immeuble mixte
Parties communes de qualité
Les espaces de travail
Fibre optique
Brut de béton
Espace ouvert
Le confort au quotidien
Locaux lumineux
Les accès
Accès véhicules légers
Accès PMR
Sécurité du site
Digicode
Interphone
Sas d'entrée
Accessibilité
Ascenseur PMR
Autres
Possibilité de normes E.R.P.
Norme RE2020 ref 2025
Hauteur sous poutre : 2,60 m
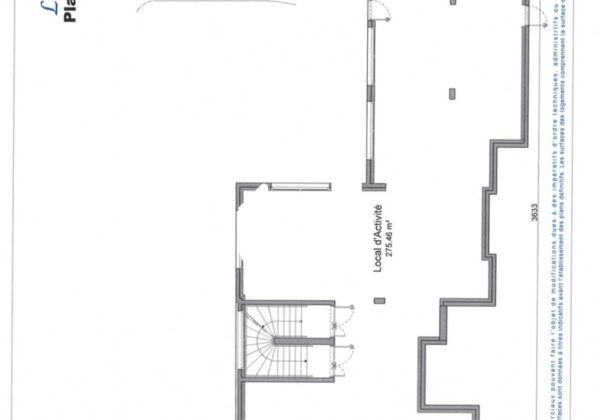
Répartition & surfaces des espaces
Tableau des divisibilités
| Type | Étage | Surface | Prix achat (€/m² HT HC) |
Charges (achat) (€/m² HT HC) |
|---|---|---|---|---|
| Parkings | 30 000.00 | Prix sur demande | ||
| Bureaux | Rez-de-Chaussée | 295 m² | 3 400.00 | Prix sur demande |
| Activités | R - 1 | 222 m² | 2 742.00 | Prix sur demande |
| Bureaux | R + 1 | 297 m² | 3 200.00 | Prix sur demande |
Performance énergétique du bien (DPE)


Informations non contractuelles
Localisation & accès
Transports en commun à proximité
SNCF gare de La Croix de Berny Fresnes
Adresses
approximatives
Adresses
précises
Nos nouveaux biens qui pourraient vous intéresser
Bureaux et Activités - 435m²
VILLIERS SUR MARNE (94350)
VILLIERS SUR MARNE (94350)
639 998.10€ HT HC
Disponibilité : Immédiate
Surface : 435 m²
Bureaux et Activités - 1 721.18m²
GAZERAN (78125)
GAZERAN (78125)
2 799 998.16€ HT HC
Disponibilité : Immédiate
Surface : 1 721.18 m²
Bureaux et Activités - 1 002m²
SAINT PATHUS (77178)
SAINT PATHUS (77178)
1 549 993.80€ HT HC
Disponibilité : Immédiate
Surface : 1 002 m²
Bureaux et Activités - 2 720m² Divisibles à partir de 316 m²
MORET LOING ET ORVANNE (77250)
MORET LOING ET ORVANNE (77250)
455 988.00€ HT HC
Disponibilité : 1er mars 2027
Surface : divisibles à partir de 316 m²
Les entrepreneurs ayant consulté cette offre ont aussi consulté celles ci
Bureaux et Activités - 435m²
VILLIERS SUR MARNE (94350)
VILLIERS SUR MARNE (94350)
639 998.10€ HT HC
Disponibilité : Immédiate
Surface : 435 m²
Bureaux et Activités - 1 721.18m²
GAZERAN (78125)
GAZERAN (78125)
2 799 998.16€ HT HC
Disponibilité : Immédiate
Surface : 1 721.18 m²
Bureaux et Activités - 1 002m²
SAINT PATHUS (77178)
SAINT PATHUS (77178)
1 549 993.80€ HT HC
Disponibilité : Immédiate
Surface : 1 002 m²
Bureaux et Activités - 128m²
VOISINS LE BRETONNEUX (78960)
VOISINS LE BRETONNEUX (78960)
Prix sur demande
Disponibilité : Immédiate
Surface : 128 m²