Retour
Disponibilité Deuxième semestre 2026
À Acheter Bureaux et Locaux Commerciaux 2 377.32 m² divisibles à partir de 150 m² SAINTE LUCE SUR LOIRE (44980)
Ajouter au comparateur
Vous souhaitez faciliter votre recherche ?
Créez un compte
Présentation du bien
IMMPROVE propose à la location un espace de bureaux au sein de TIMES, un immeuble tertiaire de prestige à Sainte-Luce-sur-Loire, aux portes de Nantes. Ce bâtiment emblématique, à l'architecture contemporaine et durable, offre des bureaux modernes et modulables, prolongés par de vastes terrasses et jardins d'hiver.
Surface totale
Nature
Divisibilité
Etat des locaux
2 377.32 m²
Bureaux et Locaux Commerciaux
Oui à partir de 150 m²
Neuf
Prix & Conditions
Vente :
9 507 977.75 € (HD)
3 999.45 € /m² (HD)
Divisibles à partir de 150 m²
Conditions vente :
Loi Carrez et affectation juridique en cours de détermination
Prestations & équipements du bien
Loi Carrez et affectation juridique en cours de détermination
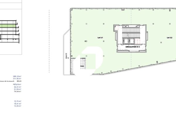
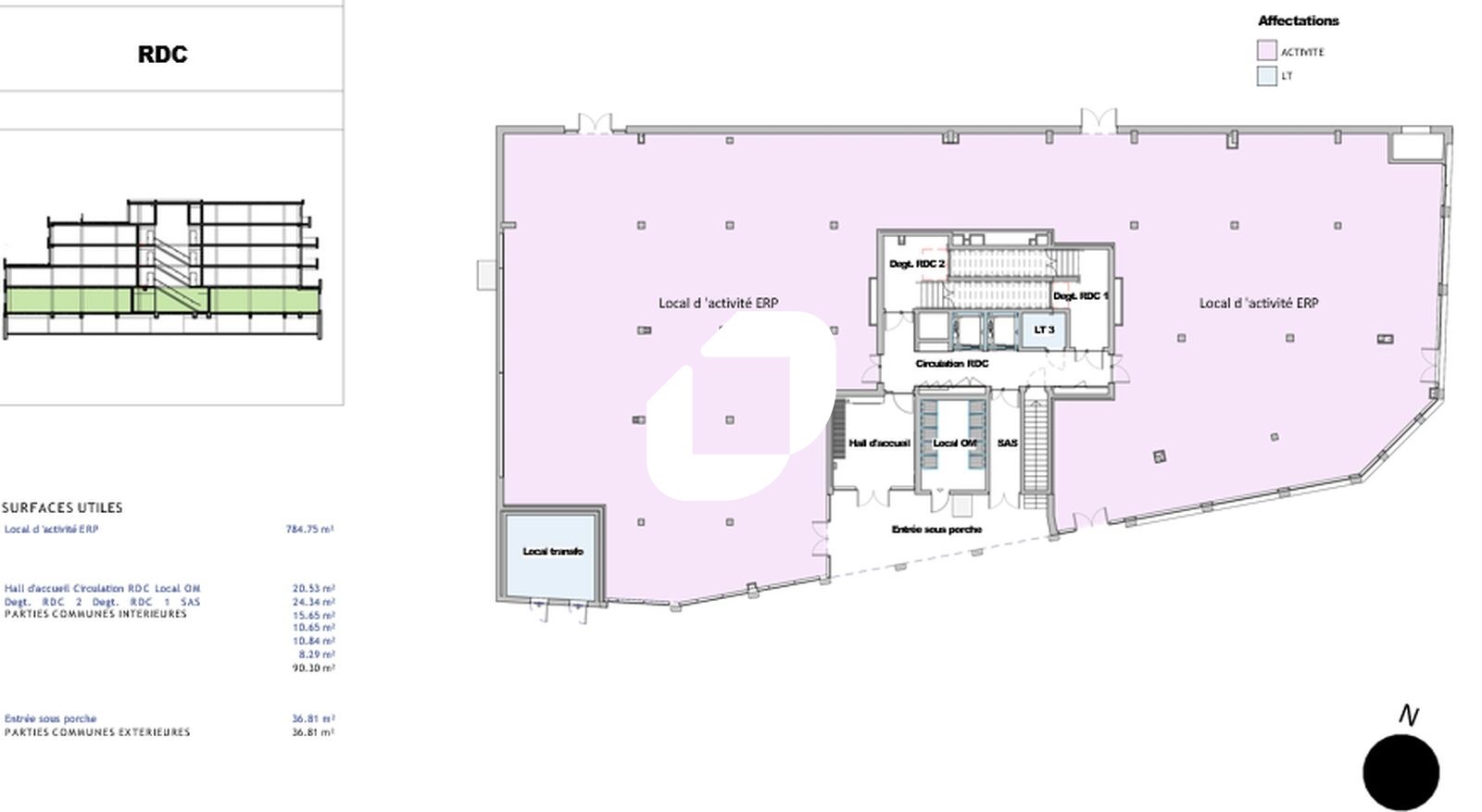
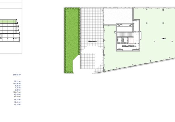
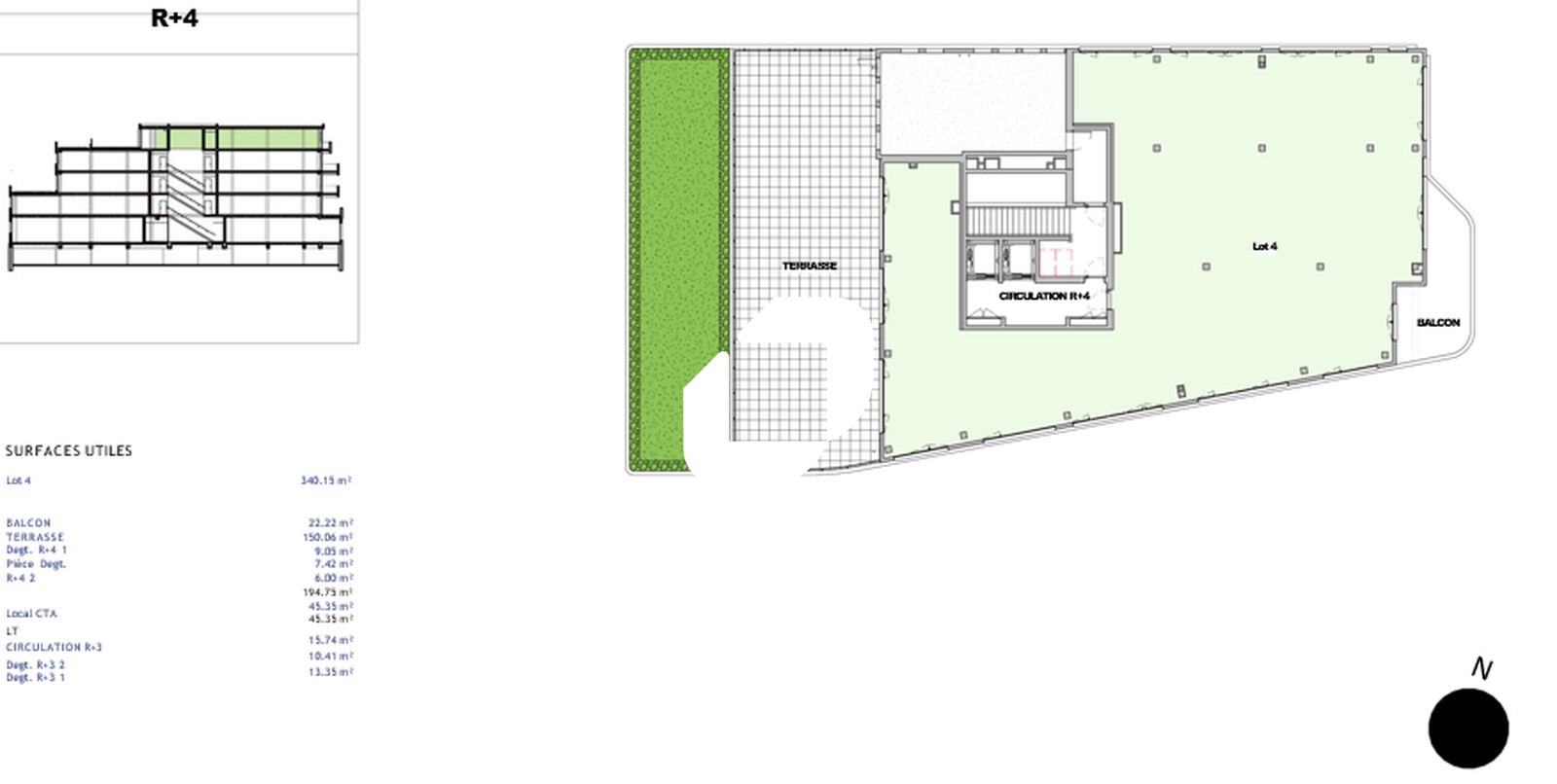
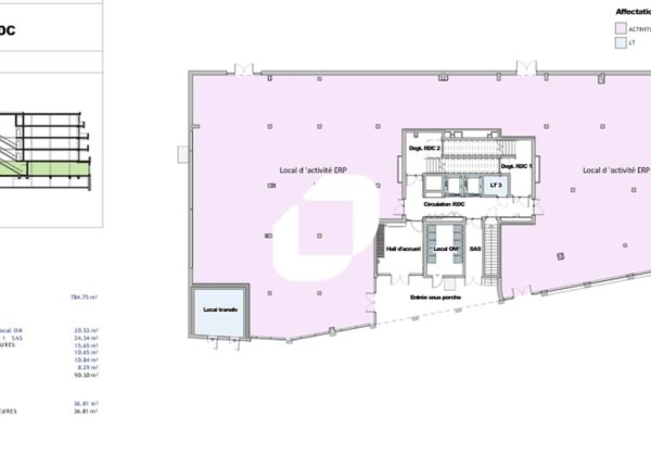
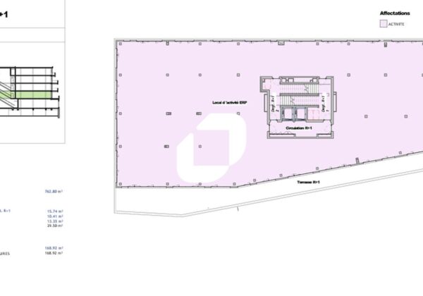
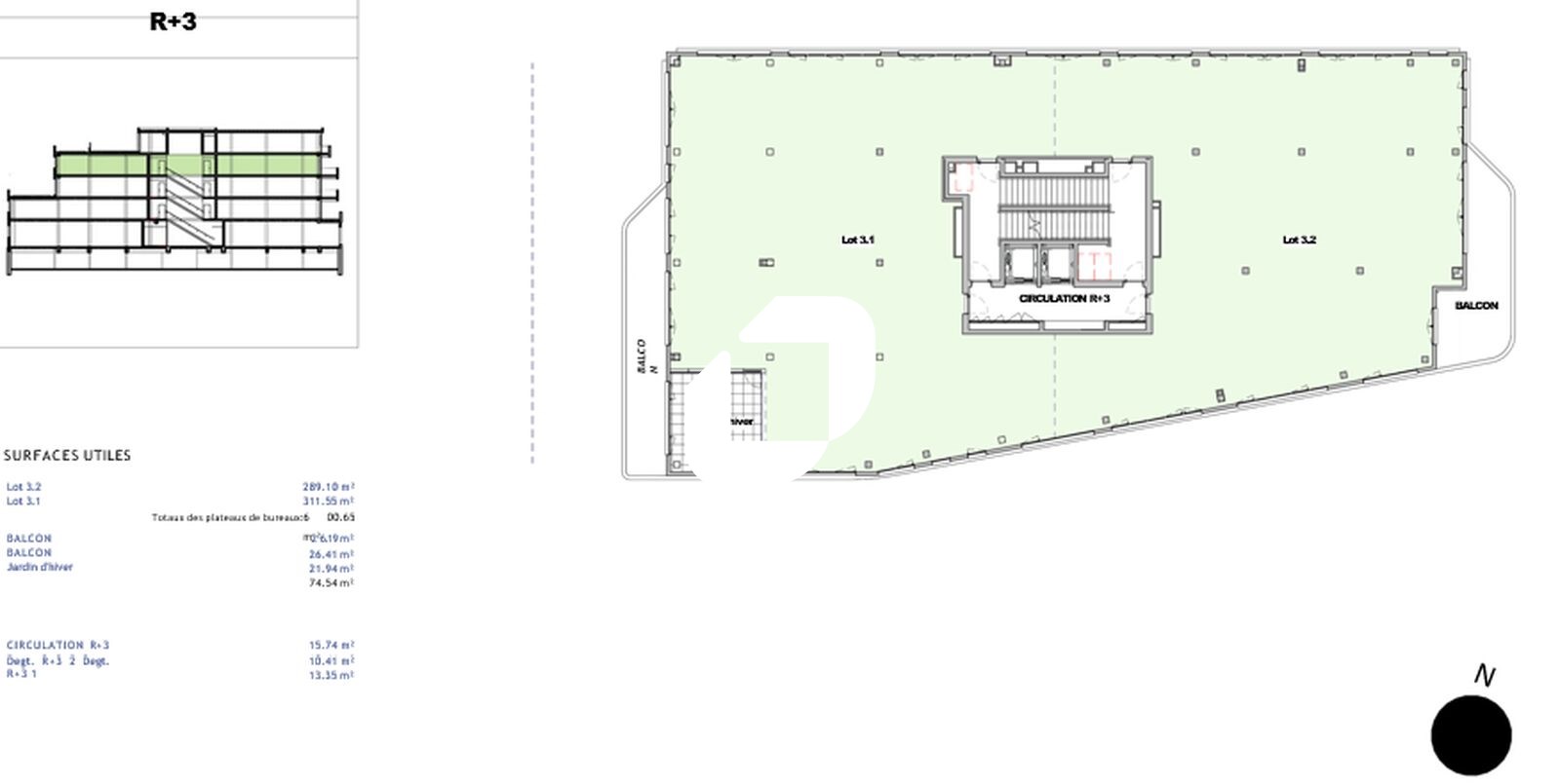
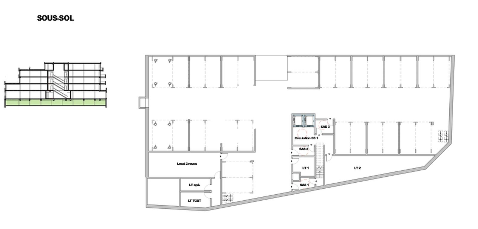
Répartition & surfaces des espaces
Tableau des divisibilités
| Type | Étage | Surface | Prix achat (€/m² HT HC) |
Charges (achat) (€/m² HT HC) |
|---|---|---|---|---|
| Bureaux | 843 m² | Prix sur demande | Prix sur demande | |
| Bureaux | 323 m² | Prix sur demande | Prix sur demande | |
| Bureaux | 347 m² | Prix sur demande | Prix sur demande | |
| Locaux Commerciaux | 865 m² | Prix sur demande | Prix sur demande |
Performance énergétique du bien (DPE)


Informations non contractuelles
Localisation & accès
Transports en commun à proximité
Pinier, La Grille
Accès routier
A 11 (Entrée), A 11 (Sortie Rennes, Vannes, Porte de La Beaujoire, Petit Port), A 811 (Entrée Sainte-Luce-sur-Loire - Centre, Thouaré-sur-Loire - Centre), A 811 (Sortie)
Porte d'Anjou (A811) (Périphérique Nantes)
La Planchonnais (Parking)
e-Totem - NANTES - St-Luce/Loire - Planchonnais (Bornes de recharge)
Adresses
approximatives
Adresses
précises
Nos nouveaux biens qui pourraient vous intéresser
Bureaux et Locaux Commerciaux - 328m²
LEVALLOIS PERRET (92300)
LEVALLOIS PERRET (92300)
2 144 998.64€ HT HC
Disponibilité : 1er juillet 2026
Surface : 328 m²
Bureaux et Locaux Commerciaux - 153m²
PARIS (75006)
PARIS (75006)
0.00€ HT HC
Disponibilité : Immédiate
Surface : 153 m²
Bureaux et Locaux Commerciaux - 188m²
BOULOGNE BILLANCOURT (92100)
BOULOGNE BILLANCOURT (92100)
0.00€ HT HC
Disponibilité : Immédiate
Surface : 188 m²
Bureaux et Locaux Commerciaux - 233m² Divisibles à partir de 86 m²
BORDEAUX (33000)
BORDEAUX (33000)
479 999.10€ HT HC
Disponibilité : Immédiate
Surface : divisibles à partir de 86 m²
Les entrepreneurs ayant consulté cette offre ont aussi consulté celles ci
Bureaux et Locaux Commerciaux - 328m²
LEVALLOIS PERRET (92300)
LEVALLOIS PERRET (92300)
2 144 998.64€ HT HC
Disponibilité : 1er juillet 2026
Surface : 328 m²
Bureaux et Locaux Commerciaux - 107.35m²
COIGNIERES (78310)
COIGNIERES (78310)
Prix sur demande
Disponibilité : Immédiate
Surface : 107.35 m²
Bureaux et Locaux Commerciaux - 153m²
PARIS (75006)
PARIS (75006)
0.00€ HT HC
Disponibilité : Immédiate
Surface : 153 m²
Bureaux et Locaux Commerciaux - 188m²
BOULOGNE BILLANCOURT (92100)
BOULOGNE BILLANCOURT (92100)
0.00€ HT HC
Disponibilité : Immédiate
Surface : 188 m²