Retour
Disponibilité Nous consulter
À Acheter Locaux Commerciaux 790.90 m² divisibles à partir de 214.50 m² NANTES (44000)
Ajouter au comparateur
Vous souhaitez faciliter votre recherche ?
Créez un compte
Présentation du bien
PETIT-PORT – IMMPROVE vous propose à la vente deux cellules commerciales à la vente. Les locaux sont livrés brut de béton, fluides en attente et vitrine posée. Vous bénéficiez de stationnements en extérieur.
Surface totale
Nature
Divisibilité
Etat des locaux
790.90 m²
Locaux Commerciaux
Oui à partir de 214.50 m²
Neuf
Prix & Conditions
Vente :
2 700.00 € (HD)
2 700.00 € /m² (HD)
Divisibles à partir de 214.50 m²
Conditions vente :
Loi Carrez et affectation juridique en cours de détermination
Prestations & équipements du bien
Les espaces de travail
Immeuble neuf
Les accès
Accès PMR
Accès PMR
Loi Carrez et affectation juridique en cours de détermination
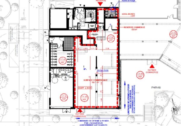
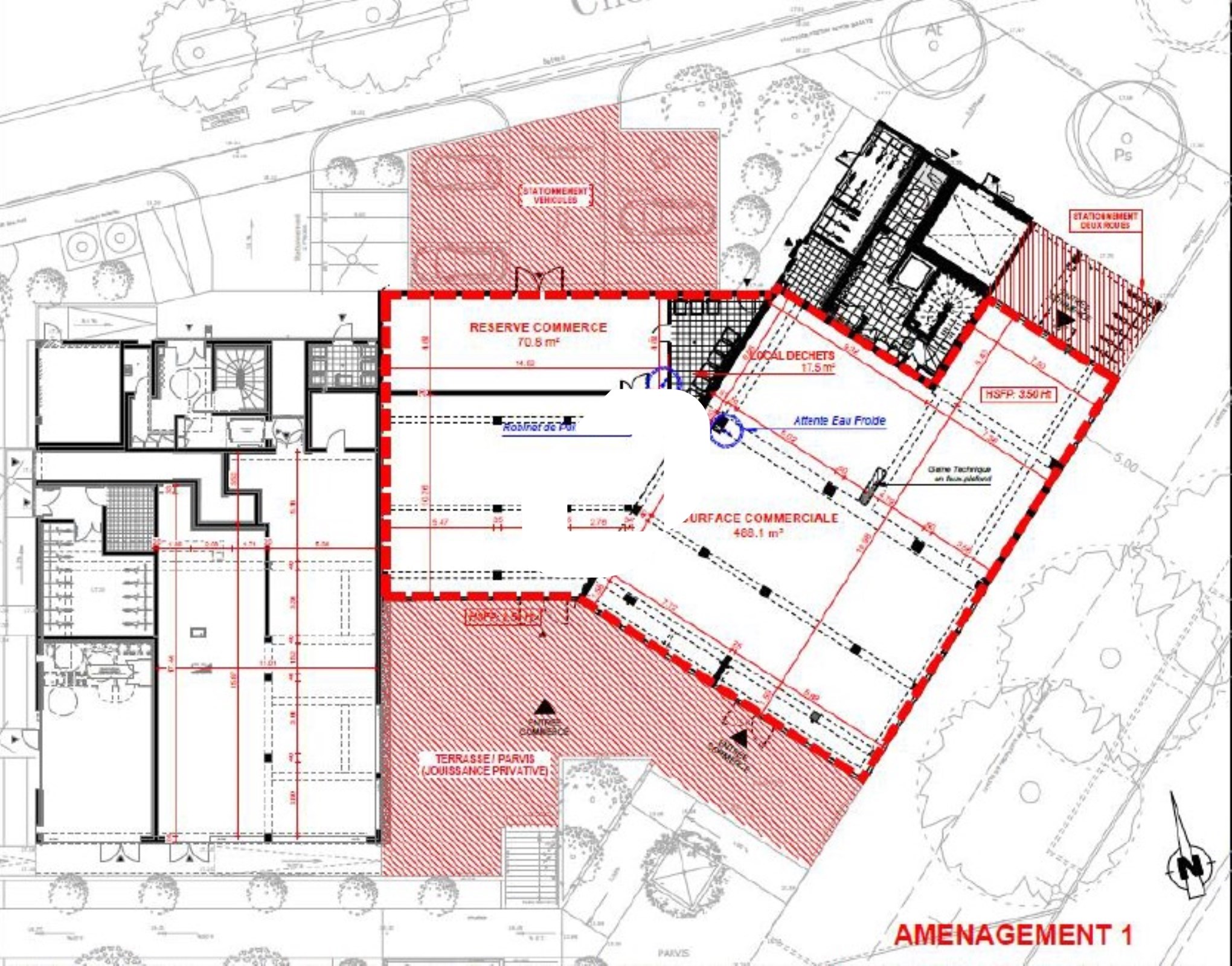
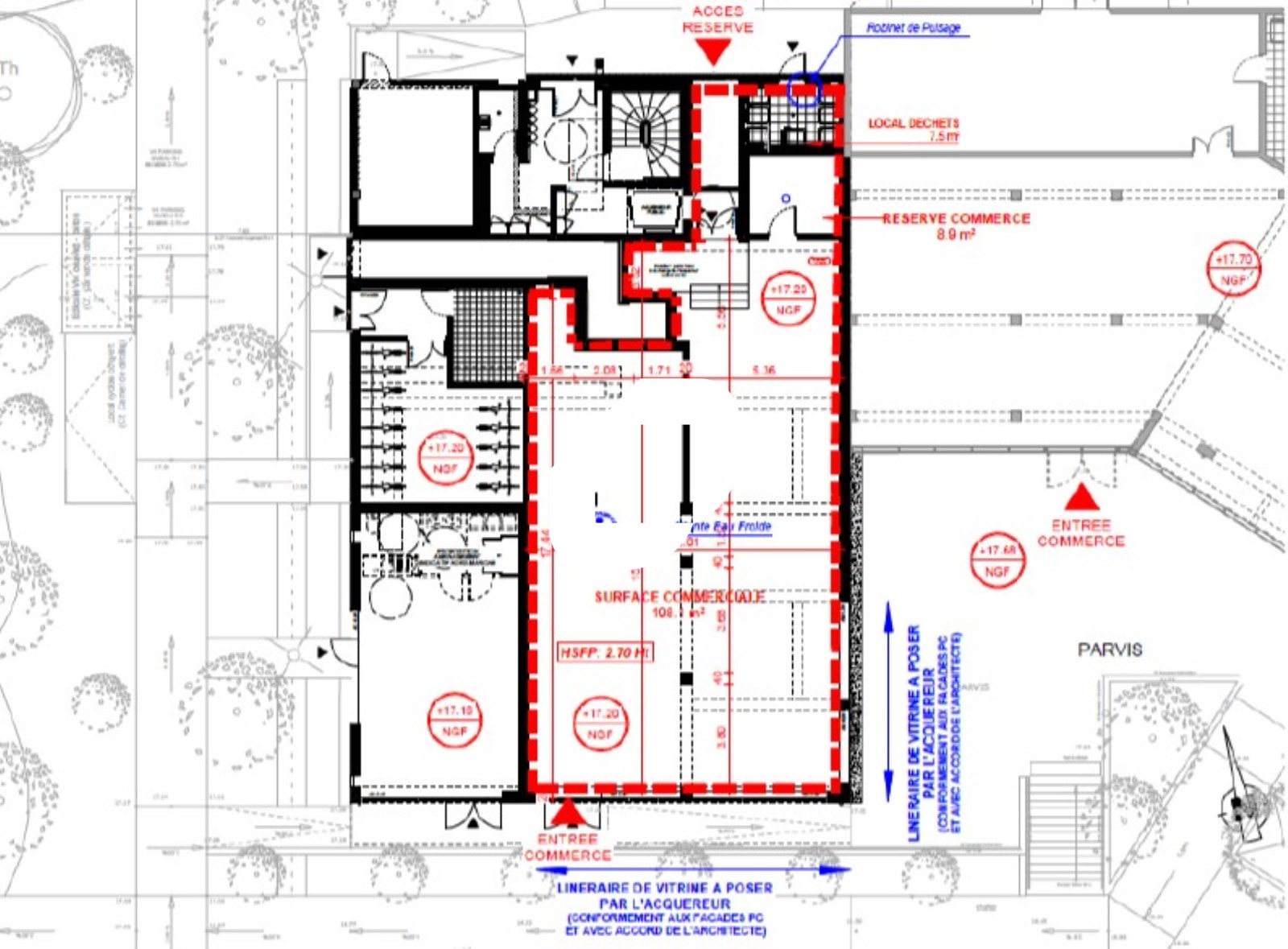
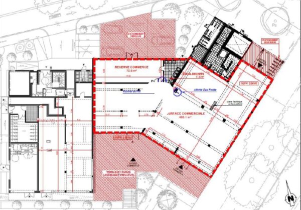
Répartition & surfaces des espaces
Tableau des divisibilités
| Type | Étage | Surface | Prix achat (€/m² HT HC) |
Charges (achat) (€/m² HT HC) |
|---|---|---|---|---|
| Locaux Commerciaux | 576 m² | 2 700.00 | Prix sur demande | |
| Locaux Commerciaux | 215 m² | 2 800.00 | Prix sur demande |
Performance énergétique du bien (DPE)


Informations non contractuelles
Localisation & accès
Transports en commun à proximité
75
École Centrale-Audencia, Facultés, Fac de Lettres
Accès routier
Ligne 2
Périphérique porte de la Chapelle sur Erdre à 3 min
Adresses
approximatives
Adresses
précises
Nos nouveaux biens qui pourraient vous intéresser
Locaux Commerciaux - 430m²
NANTES (44300)
NANTES (44300)
800 002.10€ HT HC
Disponibilité : Octobre
Surface : 430 m²
Les entrepreneurs ayant consulté cette offre ont aussi consulté celles ci
Locaux Commerciaux - 1 000m²
NOISY LE SEC (93130)
NOISY LE SEC (93130)
2 550 000.00€ HT HC
Disponibilité : Immédiate
Surface : 1 000 m²
Locaux Commerciaux - 922.82m² Divisibles à partir de 231.85 m²
MONTOIR DE BRETAGNE (44550)
MONTOIR DE BRETAGNE (44550)
1 102 349.12€ HT HC
Disponibilité : Juin 2028
Surface : divisibles à partir de 231.85 m²
Bureaux et Locaux Commerciaux - 328m²
LEVALLOIS PERRET (92300)
LEVALLOIS PERRET (92300)
2 144 998.64€ HT HC
Disponibilité : 1er juillet 2026
Surface : 328 m²