Retour
Disponibilité Immédiate
À Acheter Locaux Commerciaux 55 m² THANN (68800)
Ajouter au comparateur
Vous souhaitez faciliter votre recherche ?
Créez un compte
Présentation du bien
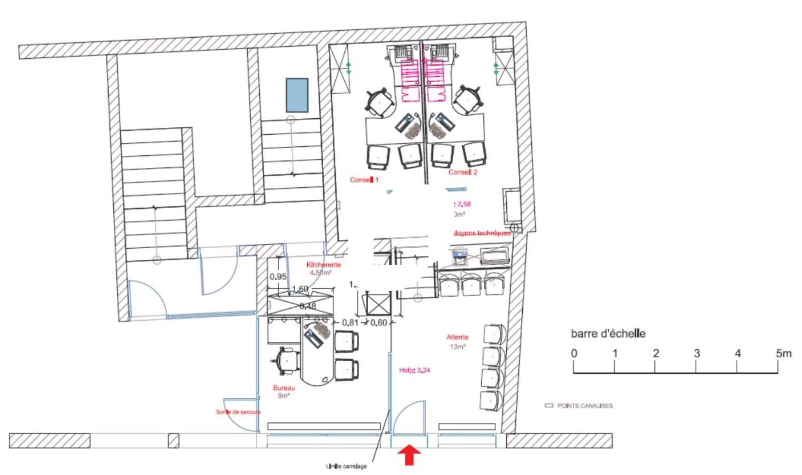
Situé en plein centre de THANN (68), nous vous proposons à la vente un local commercial. D'une surface totale de 55 m², les locaux sont actuellement vides de toute occupation.
Dossier sur demande.
Surface totale
Nature
Divisibilité
Etat des locaux
55 m²
Locaux Commerciaux
Non
Bon état
Prix & Conditions
Vente :
70 000.00 € (HD)
1 272.73 € /m² (HD)
Impôt foncier :
658.00
Conditions vente :
Loi Carrez et affectation juridique en cours de détermination
Prestations & équipements du bien
Loi Carrez et affectation juridique en cours de détermination
Répartition & surfaces des espaces
Tableau des divisibilités
| Type | Étage | Surface | Prix achat (€/m² HT HC) |
Charges (achat) (€/m² HT HC) |
|---|---|---|---|---|
| Locaux Commerciaux | Sous-Sol | 10 m² | 1 272.73 | 15.00 |
| Locaux Commerciaux | Rez-de-Chaussée | 45 m² | 1 272.73 | 15.00 |
Performance énergétique du bien (DPE)


Informations non contractuelles
Localisation & accès
Transports en commun à proximité
SNCF gare de Thann-Centre
Adresses
approximatives
Adresses
précises
Nos nouveaux biens qui pourraient vous intéresser
Locaux Commerciaux - 1 000m²
NOISY LE SEC (93130)
NOISY LE SEC (93130)
2 550 000.00€ HT HC
Disponibilité : Immédiate
Surface : 1 000 m²
Locaux Commerciaux - 922.82m² Divisibles à partir de 231.85 m²
MONTOIR DE BRETAGNE (44550)
MONTOIR DE BRETAGNE (44550)
1 102 349.12€ HT HC
Disponibilité : Juin 2028
Surface : divisibles à partir de 231.85 m²
Locaux Commerciaux - 424m² Divisibles à partir de 71 m²
AGDE (34300)
AGDE (34300)
759 999.51€ HT HC
Disponibilité : Immédiate
Surface : divisibles à partir de 71 m²
Locaux Commerciaux - 430m²
NANTES (44300)
NANTES (44300)
800 002.10€ HT HC
Disponibilité : Octobre
Surface : 430 m²
Les entrepreneurs ayant consulté cette offre ont aussi consulté celles ci
Locaux Commerciaux - 1 000m²
NOISY LE SEC (93130)
NOISY LE SEC (93130)
2 550 000.00€ HT HC
Disponibilité : Immédiate
Surface : 1 000 m²
Locaux Commerciaux - 922.82m² Divisibles à partir de 231.85 m²
MONTOIR DE BRETAGNE (44550)
MONTOIR DE BRETAGNE (44550)
1 102 349.12€ HT HC
Disponibilité : Juin 2028
Surface : divisibles à partir de 231.85 m²
Bureaux et Locaux Commerciaux - 328m²
LEVALLOIS PERRET (92300)
LEVALLOIS PERRET (92300)
2 144 998.64€ HT HC
Disponibilité : 1er juillet 2026
Surface : 328 m²