Retour
Disponibilité Après accord
À Acheter Locaux Commerciaux 377.60 m² PARIS (75018)
Ajouter au comparateur
Vous souhaitez faciliter votre recherche ?
Créez un compte
Présentation du bien
IMMPROVE vous propose un local commercial à la vente, entièrement rénové, d'une superficie de 378 m², situé dans le 18ème arrondissement de Paris.
Disponibilité: Après accord
Surface totale
Nature
Divisibilité
Etat des locaux
377.60 m²
Locaux Commerciaux
Non
Rénové
Prix & Conditions
Vente :
2 750 000.00 € (HD)
7 282.83 € /m² (HD)
Impôt foncier :
15.00
Conditions vente :
. Loi Carrez et affectation juridique en cours de détermination
Prestations & équipements du bien
Le bâtiment
Immeuble mixte récent . Vitrine : 13m
Le confort au quotidien
Belle hauteur sous plafond au RDC (3.2m)
Possibilité d'installer la climatisation
Les accès
Accès PMR / Rampe d'accès
Prestations spécifiques
Chauffage électrique
Autres
2 blocs sanitaires en sous sol
Deux accès sur rue
Monte charge
Pas d'extraction possible
6,04m² au sous-sol dégagement lot 238 en indivision avec un autre copropriétaire
. Loi Carrez et affectation juridique en cours de détermination
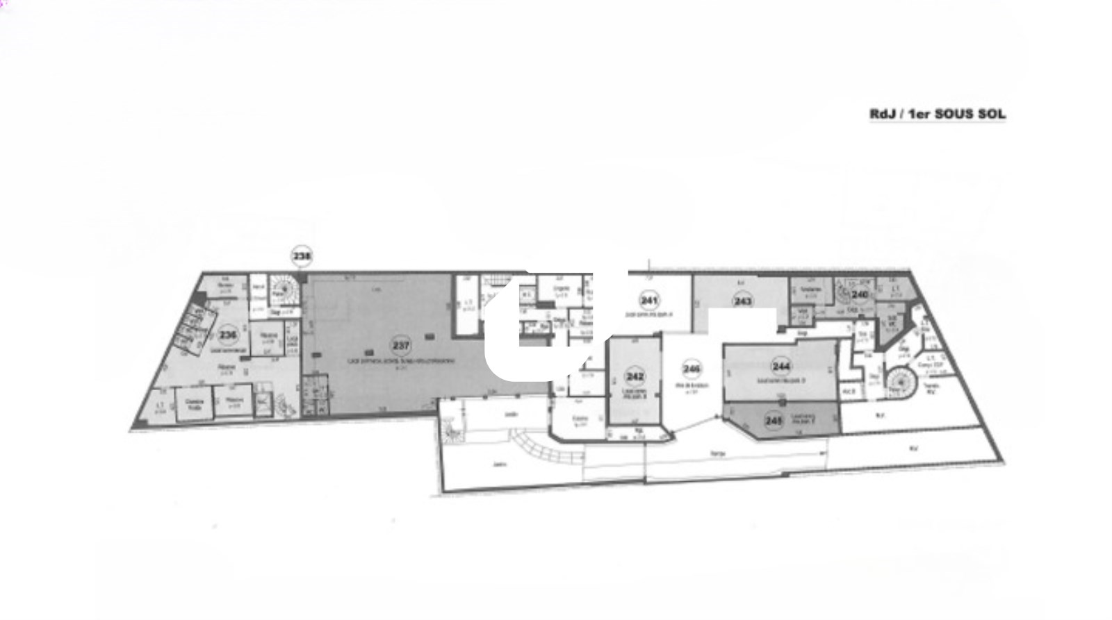
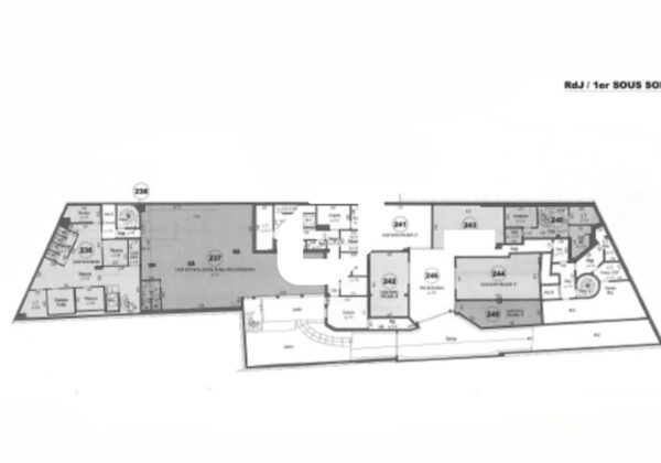
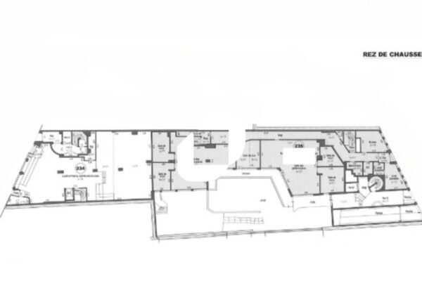
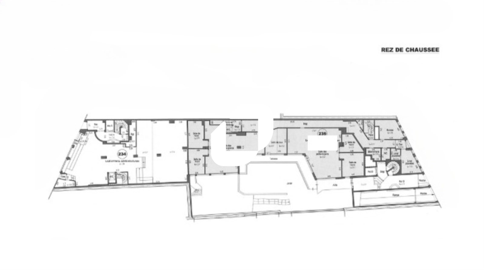
Répartition & surfaces des espaces
Tableau des divisibilités
| Type | Étage | Surface | Prix achat (€/m² HT HC) |
Charges (achat) (€/m² HT HC) |
|---|---|---|---|---|
| Locaux Commerciaux | Sous-Sol | 6 m² | Prix sur demande | Prix sur demande |
| Locaux Commerciaux | Sous-Sol | 121 m² | Prix sur demande | Prix sur demande |
| Locaux Commerciaux | Rez-de-Chaussée | 251 m² | Prix sur demande | Prix sur demande |
Performance énergétique du bien (DPE)


Informations non contractuelles
Localisation & accès
Transports en commun à proximité
Adresses
approximatives
Adresses
précises
Nos nouveaux biens qui pourraient vous intéresser
Locaux Commerciaux - 455.65m²
PARIS (75014)
PARIS (75014)
0.00€ HT HC
Disponibilité : Immédiate
Surface : 455.65 m²
Les entrepreneurs ayant consulté cette offre ont aussi consulté celles ci
Locaux Commerciaux - 1 000m²
NOISY LE SEC (93130)
NOISY LE SEC (93130)
2 550 000.00€ HT HC
Disponibilité : Immédiate
Surface : 1 000 m²
Locaux Commerciaux - 922.82m² Divisibles à partir de 231.85 m²
MONTOIR DE BRETAGNE (44550)
MONTOIR DE BRETAGNE (44550)
1 102 349.12€ HT HC
Disponibilité : Juin 2028
Surface : divisibles à partir de 231.85 m²
Bureaux et Locaux Commerciaux - 328m²
LEVALLOIS PERRET (92300)
LEVALLOIS PERRET (92300)
2 144 998.64€ HT HC
Disponibilité : 1er juillet 2026
Surface : 328 m²