Retour
Disponibilité 2ème Trimestre 2025
À Acheter Locaux Commerciaux 232 m² GROSLAY (95410)
Ajouter au comparateur
Vous souhaitez faciliter votre recherche ?
Créez un compte
Présentation du bien
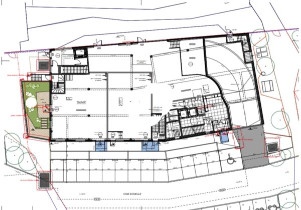
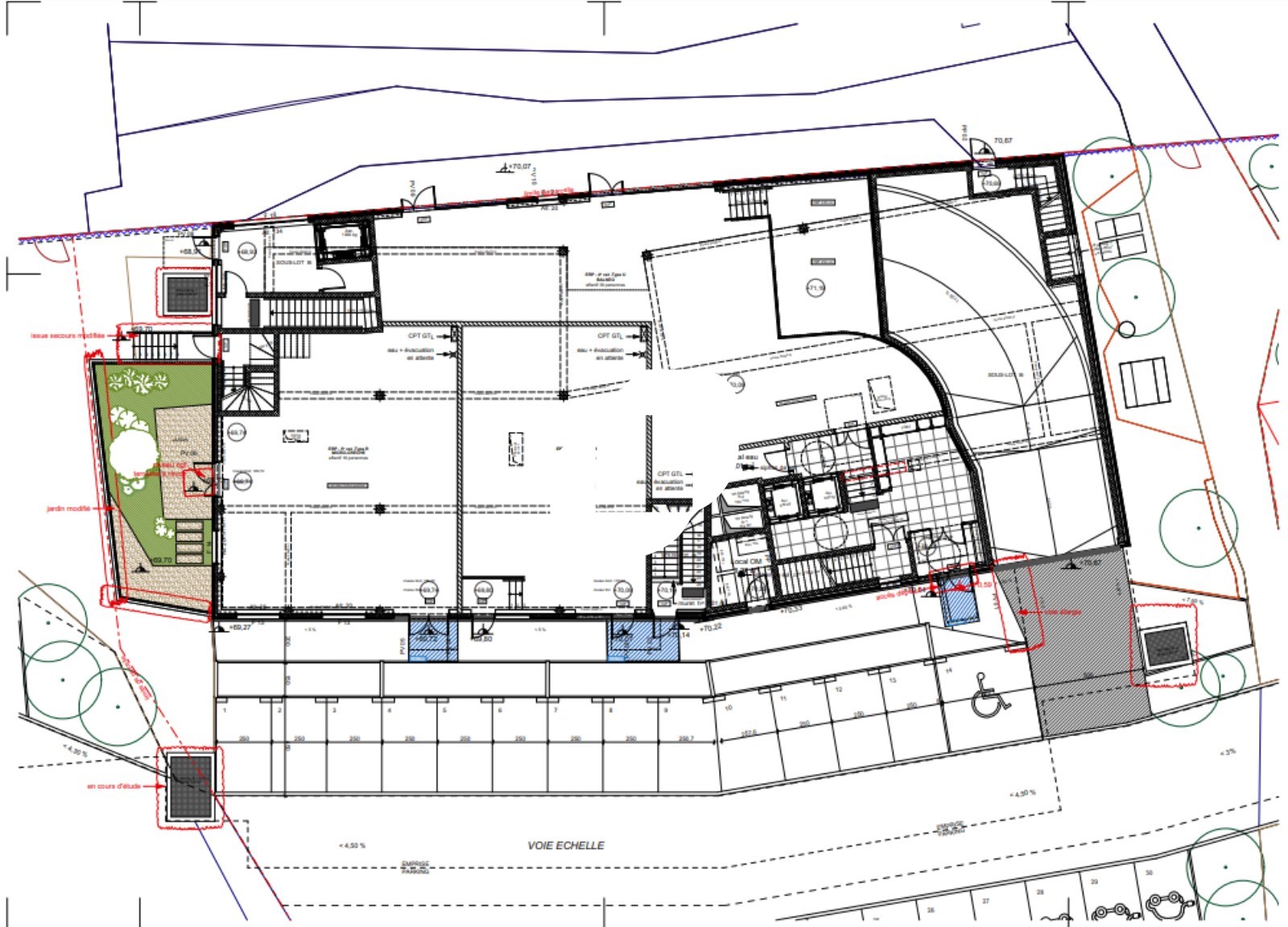
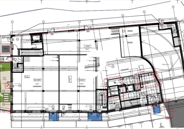
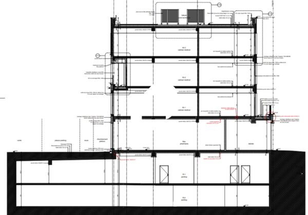
Immprove vous propose des locaux commerciaux en rez-de-chaussée à vendre dédié à une micro-crèche de 232m² avec un jardin extérieur, Idéal pour investisseur local ou utilisateur souhaitant être propriétaire de ces murs. Les étages sont dédiés à des activités médicales qui vont renforcer la synergie. Frais de notaire réduit.. Le programme Eko Vallée, bénéficie d'un emplacement stratégique, au sein d’un village d'entreprise/parc d'activité nouvelle génération à Groslay (95).
2 Parkings intérieurs (25000€/unité) et 4 Parkings extérieurs (10000€/unité) en supplément du prix de vente.
Surface totale
Nature
Divisibilité
Etat des locaux
232 m²
Locaux Commerciaux
Non
Brut de béton
Prix & Conditions
Vente :
747 087.00 € (HD)
3 220.20 € /m² (HD)
Prestations & équipements du bien
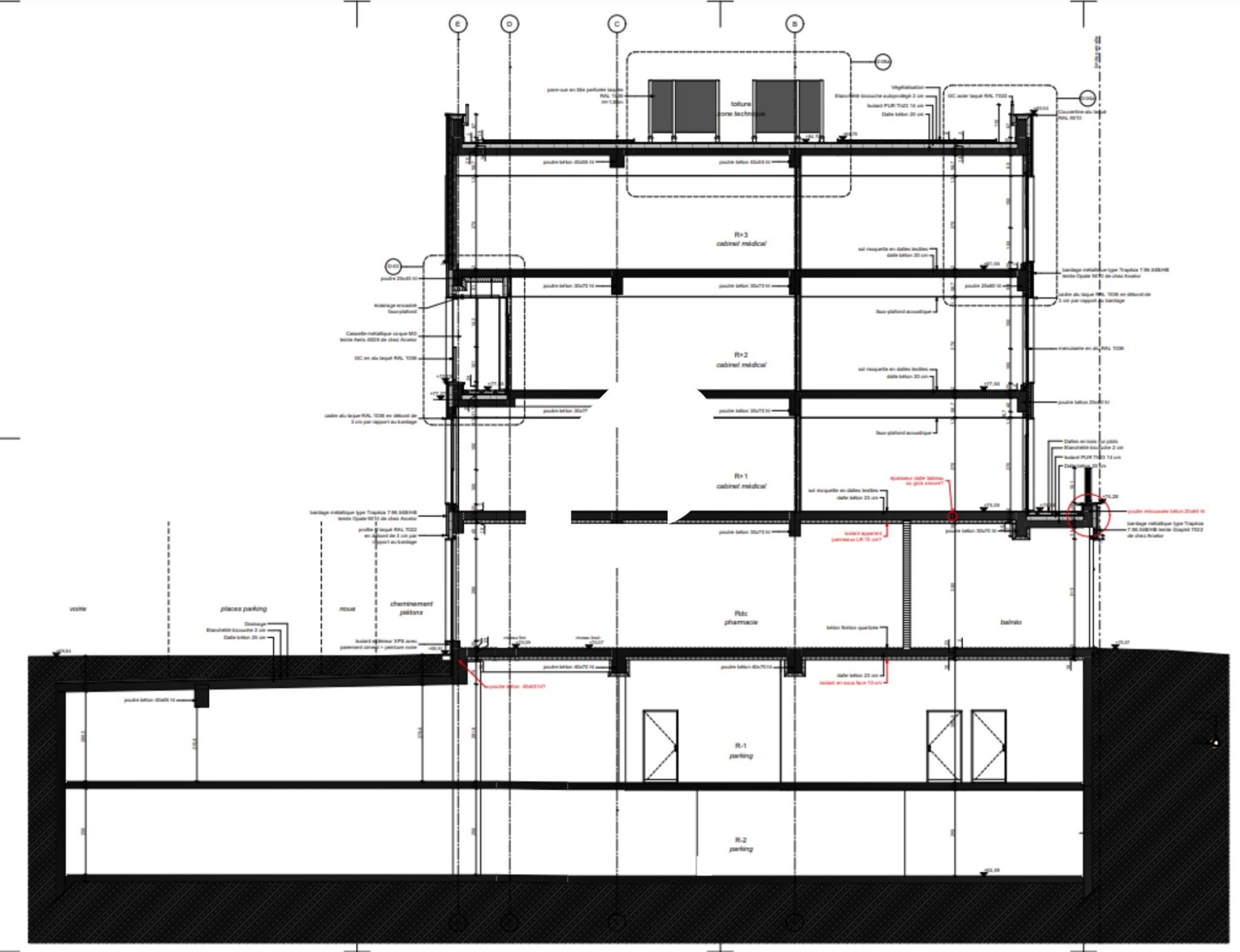
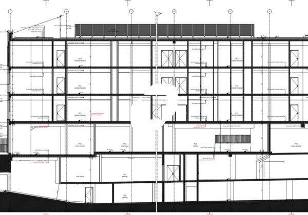
Le bâtiment
Parties communes de qualité
Les espaces de travail
Immeuble neuf
Fibre optique . Brut de béton
Espace Ouvert
Le confort au quotidien
Belle hauteur sous plafond
Locaux lumineux
Livraison prévue courant 2025
Les accès
Accès véhicules légers et poids lourds
Accès PMR
Accès privatif sur rue
Double accès
Aire de manœuvre et de chargement
Portail d'accès
Sécurité du site
Digicode
Interphone
Accès sécurisé par badge
Sas d'entrée
Accessibilité
Monte-charge
Services & espaces partagés
Le programme prévoit la construction de bureaux, d’une crèche, d'une halle gourmande, des bâtiments d’activités.
Extérieur
Parking sous-sol : 25 000€ HT/ Unité
Parking extérieur : 10 000€ HT/ Unité
Autres
Prix de vente Hors taxes
Honoraires de 0,5% charge vendeur, inclus dans le prix de présentation
Frais de notaire réduit
Répartition & surfaces des espaces
Tableau des divisibilités
| Type | Étage | Surface | Prix achat (€/m² HT HC) |
Charges (achat) (€/m² HT HC) |
|---|---|---|---|---|
| Locaux Commerciaux | 232 m² | Prix sur demande | Prix sur demande |
Performance énergétique du bien (DPE)


Informations non contractuelles
Localisation & accès
Transports en commun à proximité
Gare de Groslay
37
Adresses
approximatives
Adresses
précises
Nos nouveaux biens qui pourraient vous intéresser
Locaux Commerciaux - 1 761m² Divisibles à partir de 107 m²
GROSLAY (95410)
GROSLAY (95410)
601 257.60€ HT HC
Disponibilité : 2ème Trimestre 2025
Surface : divisibles à partir de 107 m²
Les entrepreneurs ayant consulté cette offre ont aussi consulté celles ci
Locaux Commerciaux - 1 000m²
NOISY LE SEC (93130)
NOISY LE SEC (93130)
2 550 000.00€ HT HC
Disponibilité : Immédiate
Surface : 1 000 m²
Locaux Commerciaux - 922.82m² Divisibles à partir de 231.85 m²
MONTOIR DE BRETAGNE (44550)
MONTOIR DE BRETAGNE (44550)
1 102 349.12€ HT HC
Disponibilité : Juin 2028
Surface : divisibles à partir de 231.85 m²
Bureaux et Locaux Commerciaux - 328m²
LEVALLOIS PERRET (92300)
LEVALLOIS PERRET (92300)
2 144 998.64€ HT HC
Disponibilité : 1er juillet 2026
Surface : 328 m²