Retour
Locaux d'Activités - 4 291.10m² à Acheter
. Balisage des cheminements piétons par bornes lumineuses ou éclairages encastrés
. Dalle béton (quartz) : charge 1,5T/m²
. Hauteur sous ferme : entre 6 et 8 m
. Porte sectionnelle 4.5 mX3.5m
. Mezzanine plancher collaborant sur ossature
. Escalier métallique
. Châssis vitrés et portes piétonnes en
Aluminium
. Murs séparatifs entre les lots : coupe-feu (type parpaing)
. Compteur Tarif bleu
. Eclairage zenithal : environ 5% de la surface au sol
. Eclairage communs : projecteurs
. Luminaire encastrée ou en applique
. Nombreux Stationnements (foisonnement)
Locaux d'Activités - 4 291.10m² à Acheter
TOUSSIEU (69780)
DESCRIPTION
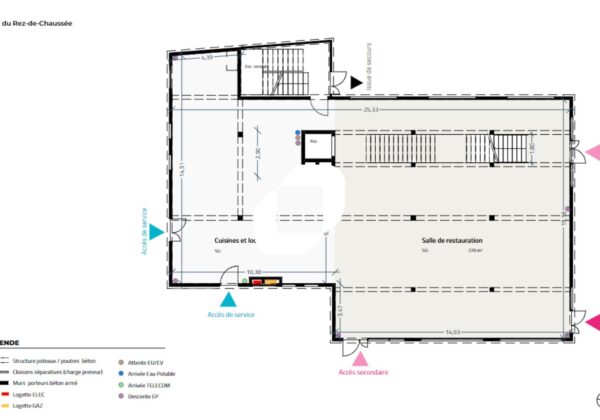
Immprove vous propose de venir découvrir à Toussieu (69780) au sein du OPEN PARK, des locaux d'activités neufs, au sein d'un programme immobilier mixte aux prestations haut de gamme. Offrez à votre entreprise un espace sur mesure, avec 4 291 m² divisibles dès 236 m². Regroupez plusieurs lots pour optimiser votre espace.
En savoir plus
. Accès PL . Balisage des cheminements piétons par bornes lumineuses ou éclairages encastrés
. Dalle béton (quartz) : charge 1,5T/m²
. Hauteur sous ferme : entre 6 et 8 m
. Porte sectionnelle 4.5 mX3.5m
. Mezzanine plancher collaborant sur ossature
. Escalier métallique
. Châssis vitrés et portes piétonnes en
Aluminium
. Murs séparatifs entre les lots : coupe-feu (type parpaing)
. Compteur Tarif bleu
. Eclairage zenithal : environ 5% de la surface au sol
. Eclairage communs : projecteurs
. Luminaire encastrée ou en applique
. Nombreux Stationnements (foisonnement)
Consommations énergétiques


Informations non contractuelles
Tableau des divisibilités
| Type | Étage | Surface | Prix achat (€/m² HT HC) |
Charges (achat) (€/m² HT HC) |
|---|---|---|---|---|
| Restaurant | 473 m² | 2 620.55 | Prix sur demande | |
| Activités | 242 m² | 1 833.37 | Prix sur demande | |
| Activités | 242 m² | 1 833.37 | Prix sur demande | |
| Activités | 240 m² | 1 833.71 | Prix sur demande | |
| Activités | 242 m² | 1 833.37 | Prix sur demande | |
| Activités | 258 m² | 1 683.18 | Prix sur demande | |
| Activités | 258 m² | 1 640.76 | Prix sur demande | |
| Activités | 259 m² | 1 640.59 | Prix sur demande | |
| Activités | 259 m² | 1 740.62 | Prix sur demande | |
| Activités | 258 m² | 1 753.65 | Prix sur demande | |
| Activités | 328 m² | 1 742.04 | Prix sur demande | |
| Activités | 236 m² | 1 706.49 | Prix sur demande | |
| Activités | 237 m² | 1 644.40 | Prix sur demande | |
| Activités | 237 m² | 1 741.12 | Prix sur demande | |
| Activités | 236 m² | 1 761.49 | Prix sur demande | |
| Activités | 288 m² | 1 751.46 | Prix sur demande |
Caractéristiques
. Parking inclus au prix de vente de chaque lots
- Surface 4 291.10 m²
- Etat des locaux Neuf
Adresses
approximatives
Adresses
précises
Les entrepreneurs ayant consulté cette offre ont aussi consulté celles ci
Les services Immprove
Une gamme complète de services qui facilitent vos démarches et destinée à satisfaire vos attentes