Retour
Disponibilité Immédiate
À Louer Bureaux 1 654 m² divisibles à partir de 257 m² RUEIL MALMAISON (92500)
Ajouter au comparateur
Vous souhaitez faciliter votre recherche ?
Créez un compte
Présentation du bien
Au sein du quartier des affaires de RUEIL SUR SEINE, Immprove vous propose des bureaux en espace ouvert ou cloisonnés. L'immeuble est de bon standing avec un vaste hall d'accueil et d'un grand espace cafétaria commun. Le RDC est PMR. Gare RER A Rueil sur Seine à 6 minutes à pied. A86 à toute proximité.
Surface totale
Nature
Divisibilité
Etat des locaux
1 654 m²
Bureaux
Oui à partir de 257 m²
Rénové
Prix & Conditions
Loyer :
50 € /m²/an (HT/HC)
1 070 € /mois (HT/HC)
12 850 € /an (HT/HC)
Divisibles à partir de 257 m²
Impôt foncier :
24.00
Dépôt de garantie :
3 mois de loyer HT HC
Conditions location :
Le montant des charges comprend 18 € HT de fluides
Prestations & équipements du bien
Le bâtiment
Immeuble moderne
Les espaces de travail
Plateaux entièrement rénovés et décloisonnés
Pavés lumineux LED
Archives 51 m²
Sanitaires privatifs
Le confort au quotidien
Climatisation réversible
Moquette et peinture neuve
Sécurité du site
Contrôle d'accès
Accessibilité
2 Ascenseurs
Extérieur
Jardin accessible
Parking privatif en sous-sol
Autres
Vidéo-surveillance
Surfaces très rationnelles
Grande facilité d'aménagement
Vestiaires douches
Le montant des charges comprend 18 € HT de fluides
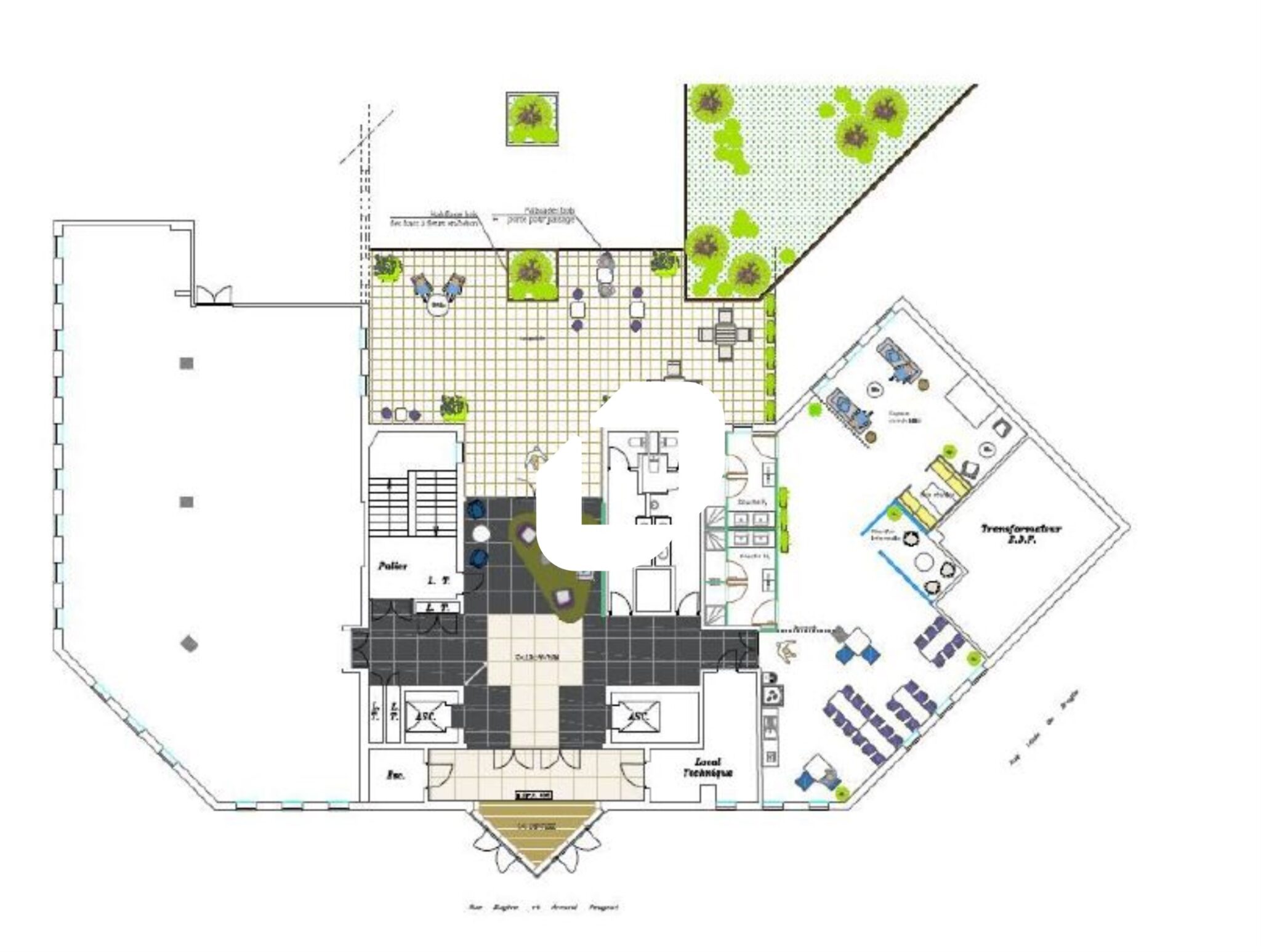
Répartition & surfaces des espaces
Tableau des divisibilités
| Type | Étage | Surface | Loyer (€/m²/an HT HC) |
Charges (€/m²/an HT HC) |
|---|---|---|---|---|
| Parkings | Sous-Sol | 1 200.00 | Prix sur demande | |
| Bureaux | 1er étage | 257 m² | 50.00 | 68.00 |
| Bureaux | 1er étage | 302 m² | 50.00 | 68.00 |
| Bureaux | 4ème étage | 551 m² | 50.00 | 68.00 |
| Bureaux | 5ème étage | 544 m² | 50.00 | 68.00 |
Performance énergétique du bien (DPE)


Informations non contractuelles
Localisation & accès
Transports en commun à proximité
SNCF gare de Rueil-Malmaison (Ligne RER A)
SNCF gare de Rueil-Malmaison
Accès routier
N 13
A 14
A 86
Adresses
approximatives
Adresses
précises
Nos nouveaux biens qui pourraient vous intéresser
Bureaux - 7 601.70m² Divisibles à partir de 318.80 m²
RUEIL MALMAISON (92500)
RUEIL MALMAISON (92500)
7 975.00€/mois HT HC
Disponibilité : Selon les lots
Surface : divisibles à partir de 318.80 m²
Bureaux - 5 763m² Divisibles à partir de 206 m²
RUEIL MALMAISON (92500)
RUEIL MALMAISON (92500)
19 583.33€/mois HT HC
Disponibilité : Immédiate
Surface : divisibles à partir de 206 m²
Bureaux - 1 112m² Divisibles à partir de 273 m²
RUEIL MALMAISON (92500)
RUEIL MALMAISON (92500)
5 450.00€/mois HT HC
Disponibilité : Selon les lots – nous consulter
Surface : divisibles à partir de 273 m²
Les entrepreneurs ayant consulté cette offre ont aussi consulté celles ci
Bureaux - 83.60m²
BUSSY SAINT GEORGES (77600)
BUSSY SAINT GEORGES (77600)
1 288.00€/mois HT HC
Disponibilité : Immédiate
Surface : 83.60 m²
Bureaux - 6 934m² Divisibles à partir de 173 m²
LYON (69009)
LYON (69009)
Prix sur demande
Disponibilité : Selon les lots – nous consulter
Surface : divisibles à partir de 173 m²