À Acheter ou à Louer Bureaux et Locaux Commerciaux 4 005 m² divisibles à partir de 118 m² MONTMAGNY (95360)
Présentation du bien
Prix & Conditions
Prestations & équipements du bien
• Equipement LED à haut rendement
faible dans les plinthes périphériques
• Terrasse privative pour la restauration
• Revêtement de sol en dalles de moquette
• Courant fort dans les plinthes
• Mesures conservatoires pour le courant
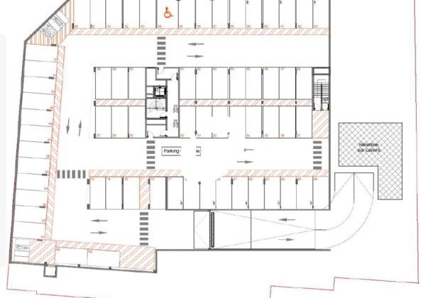
• Accès VL privatif par portail motorisé
• Accès au parking souterrain par badges
• Hauteur libre sous faux plafond de 2,50
• Ventilation double flux
• Parking aérien et en sous-sol à disposition des utilisateurs ( 10 places aériennes et 65 places en sous-sol)
• Terrasse aménageable
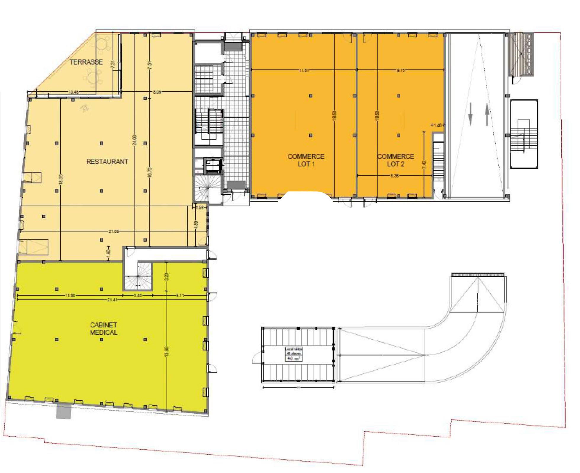
Commerces en RDC / Bureaux sur 2 niveaux avec hall privatif
• ERP 5 (Etablissement Recevant du Public, catégorie 5) en RDC
• Labellisation BREEAM VERY GOOD
• Réglementation RE 2020 pour les surfaces de bureaux
• Panneaux photovoltaïques en toiture
• Accessibilité PMR
• Immeuble éligible à la fibre
• Local vélo ( 22 places intérieures et 20 places extérieures)
COMMERCE :
Surfaces livrées brutes prêtes à
aménager / fluides en attente
• HSP : minimum 4m
• Enseigne sur rue
• Possibilité de réunir les lots 1 et 2
BUREAUX :
m dans les bureaux
dans les bureaux
• Eclairement minimum sur poste de
travail : 300 lux.
• Commande de l'éclairage et détecteurs
de présence associés
périphériques
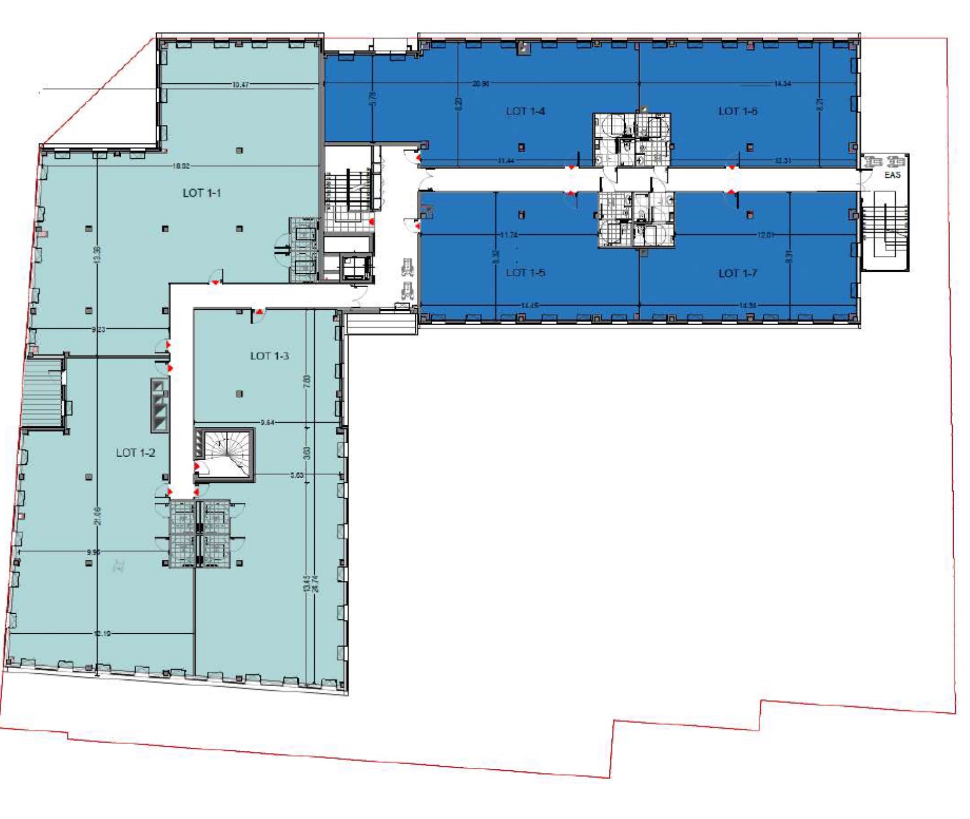
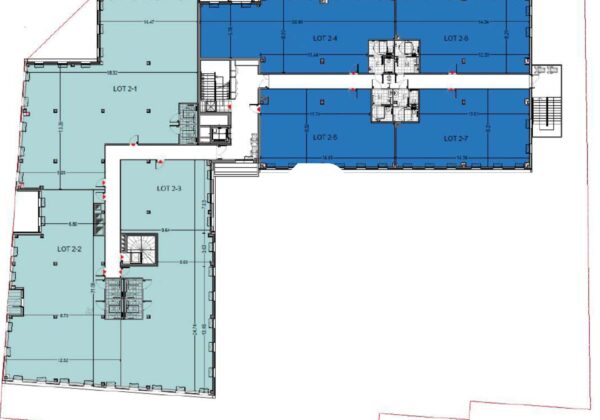
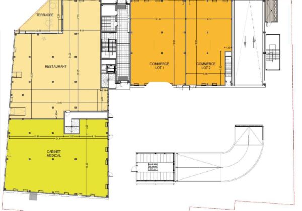
Répartition & surfaces des espaces
Tableau des divisibilités
| Type | Étage | Surface | Loyer (€/m²/an HT HC) |
Charges (€/m²/an HT HC) |
Prix achat (€/m² HT HC) |
Charges (achat) (€/m² HT HC) |
|---|---|---|---|---|---|---|
| Parkings | Sous-Sol | 1 200.00 | Prix sur demande | 16 000.00 | Prix sur demande | |
| Autres | Rez-de-Chaussée | 108 m² | Prix sur demande | Prix sur demande | Prix sur demande | Prix sur demande |
| Autres | Rez-de-Chaussée | 136 m² | Prix sur demande | Prix sur demande | Prix sur demande | Prix sur demande |
| Parkings | Rez-de-Chaussée | 800.00 | Prix sur demande | 11 000.00 | Prix sur demande | |
| Autres | 1er étage | 136 m² | Prix sur demande | Prix sur demande | Prix sur demande | Prix sur demande |
| Bureaux | 1er étage | 283 m² | 210.00 | Prix sur demande | 2 900.00 | Prix sur demande |
| Bureaux | 1er étage | 210 m² | 210.00 | Prix sur demande | 2 950.00 | Prix sur demande |
| Bureaux | 1er étage | 228 m² | 210.00 | Prix sur demande | 2 950.00 | Prix sur demande |
| Bureaux | 1er étage | 158 m² | 225.00 | Prix sur demande | 2 990.00 | Prix sur demande |
| Bureaux | 1er étage | 121 m² | 225.00 | Prix sur demande | 2 990.00 | Prix sur demande |
| Bureaux | 1er étage | 118 m² | 225.00 | Prix sur demande | 2 990.00 | Prix sur demande |
| Bureaux | 1er étage | 119 m² | 225.00 | Prix sur demande | 2 990.00 | Prix sur demande |
| Bureaux | 2ème étage | 284 m² | 210.00 | Prix sur demande | 2 900.00 | Prix sur demande |
| Bureaux | 2ème étage | 206 m² | 210.00 | Prix sur demande | 2 950.00 | Prix sur demande |
| Bureaux | 2ème étage | 229 m² | 210.00 | Prix sur demande | 2 950.00 | Prix sur demande |
| Bureaux | 2ème étage | 158 m² | 225.00 | Prix sur demande | 2 990.00 | Prix sur demande |
| Bureaux | 2ème étage | 121 m² | 225.00 | Prix sur demande | 2 990.00 | Prix sur demande |
| Bureaux | 2ème étage | 118 m² | 225.00 | Prix sur demande | 2 990.00 | Prix sur demande |
| Bureaux | 2ème étage | 119 m² | 225.00 | Prix sur demande | 2 990.00 | Prix sur demande |
| Locaux Commerciaux | RDC | 222 m² | 230.00 | Prix sur demande | 3 200.00 | Prix sur demande |
| Locaux Commerciaux | RDC | 174 m² | 230.00 | Prix sur demande | 3 200.00 | Prix sur demande |
| Locaux Commerciaux | RDC | 346 m² | 240.00 | Prix sur demande | 3 200.00 | Prix sur demande |
| Locaux Commerciaux | RDC | 411 m² | 240.00 | Prix sur demande | 3 200.00 | Prix sur demande |
Performance énergétique du bien (DPE)


Informations non contractuelles
Localisation & accès
Transports en commun à proximité
SNCF gare de Épinay - Villetaneuse (TRAIN-H)
SNCF gare de Épinay-Villetaneuse
Adresses
approximatives
Adresses
précises
Nos nouveaux biens qui pourraient vous intéresser
COIGNIERES (78310)
MEZE (34140)
PARIS (75009)
PARIS (75005)
Les entrepreneurs ayant consulté cette offre ont aussi consulté celles ci
COIGNIERES (78310)
MEZE (34140)
PARIS (75015)
MERIGNAC (33700)