Retour
Disponibilité 2027
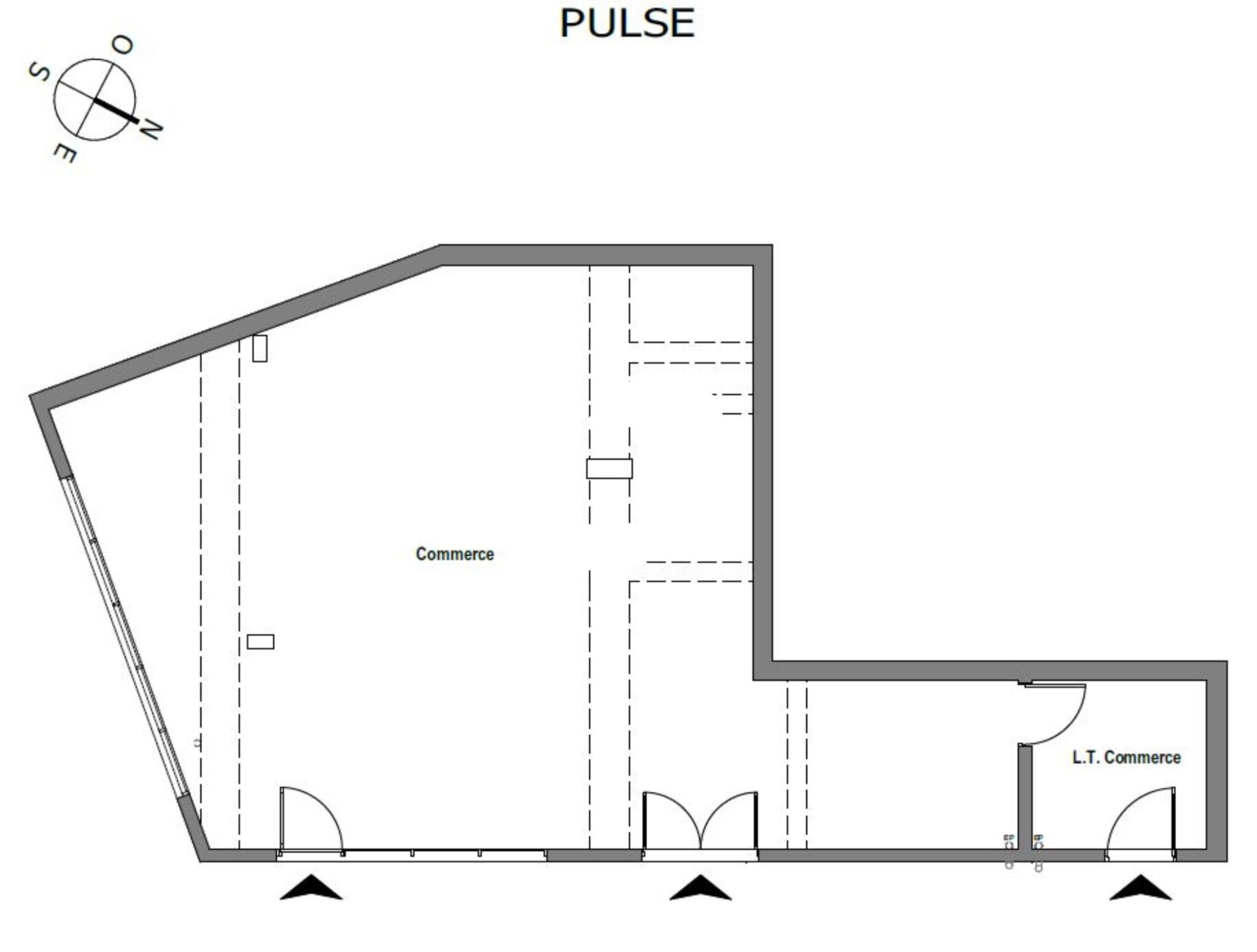
À Acheter ou à Louer Locaux Commerciaux 100 m² PROGRAMME PULSE ROUTE DE RENNES NANTES (44300)
Ajouter au comparateur
Vous souhaitez faciliter votre recherche ?
Créez un compte
Présentation du bien
NANTES NORD - Immprove vous propose une cellule commerciale neuve livrée brute de béton, fluides en attente et vitrine posée. Située sur axe très passant du Nord de Nantes et devant un rond-point, vous bénéficiez d’une excellente visibilité.
Surface totale
Nature
Divisibilité
Etat des locaux
100 m²
Locaux Commerciaux
Non
Neuf
Prix & Conditions
Loyer :
Prix sur demande
Prix sur demande
Prix sur demande
Vente :
273 584 € (HD)
2 735.84 € /m² (HD)
Conditions vente :
Loi Carrez et affectation juridique en cours de détermination
Prestations & équipements du bien
Les espaces de travail
Immeuble neuf
Brut de béton et fluides en attente
Les accès
Accès PMR
Autres
Extraction
Loi Carrez et affectation juridique en cours de détermination
Répartition & surfaces des espaces
Tableau des divisibilités
| Type | Étage | Surface | Loyer (€/m²/an HT HC) |
Charges (€/m²/an HT HC) |
Prix achat (€/m² HT HC) |
Charges (achat) (€/m² HT HC) |
|---|---|---|---|---|---|---|
| Locaux Commerciaux | Rez-de-Chaussée | 100 m² | Prix sur demande | Prix sur demande | 2 735.84 | Prix sur demande |
Performance énergétique du bien (DPE)


Informations non contractuelles
Localisation & accès
Transports en commun à proximité
Picabia, Bout des Pavés, Route de la Chapelle
Accès routier
Périphérique, Porte de Rennes à proximité
Ligne 2 à 800m
Adresses
approximatives
Adresses
précises
Nos nouveaux biens qui pourraient vous intéresser
Locaux Commerciaux - 606.10m² Divisibles à partir de 108 m²
NANTES (44300)
NANTES (44300)
Prix sur demande
Disponibilité : Immédiate
Surface : divisibles à partir de 108 m²
Les entrepreneurs ayant consulté cette offre ont aussi consulté celles ci
Bureaux et Locaux Commerciaux - 107.35m²
COIGNIERES (78310)
COIGNIERES (78310)
Prix sur demande
Disponibilité : Immédiate
Surface : 107.35 m²
Locaux Commerciaux - 243m² Divisibles à partir de 118 m²
BORDEAUX (33800)
BORDEAUX (33800)
Prix sur demande
Disponibilité : Immédiate
Surface : divisibles à partir de 118 m²