Retour
Locaux Commerciaux - 1 429.13m² à Acheter ou à Louer
. Emplacements 2 roues :
. Vélos : 244m²
. Motos : 91 m² . Ascenseur
. Bureaux en open space
. Faux plafond
. Sol pvc
. Climatisation
. Sanitaires communs
. Locaux E.R.P. pour les niveaux 1et 2 des bâtiments C, D et F
. Emplacements 2 roues : Vélos et motos
Locaux Commerciaux - 1 429.13m² à Acheter ou à Louer
WEST PARK - PARC INTERNATIONAL D’ENTREPRISES SERRIS (77700)
DESCRIPTION
A proximité immédiate de l'autoroute A4, dans le parc international d'entreprises à Serris, Immprove vous propose1 429 m² divisibles à partir de 191 m² à la vente.
En savoir plus
. Parkings avec accès contrôlé : . Emplacements 2 roues :
. Vélos : 244m²
. Motos : 91 m² . Ascenseur
. Bureaux en open space
. Faux plafond
. Sol pvc
. Climatisation
. Sanitaires communs
. Locaux E.R.P. pour les niveaux 1et 2 des bâtiments C, D et F
. Emplacements 2 roues : Vélos et motos
Consommations énergétiques


Informations non contractuelles
Tableau des divisibilités
| Type | Étage | Surface | Loyer (€/m²/an HT HC) |
Charges (€/m²/an HT HC) |
Prix achat (€/m² HT HC) |
Charges (achat) (€/m² HT HC) |
|---|---|---|---|---|---|---|
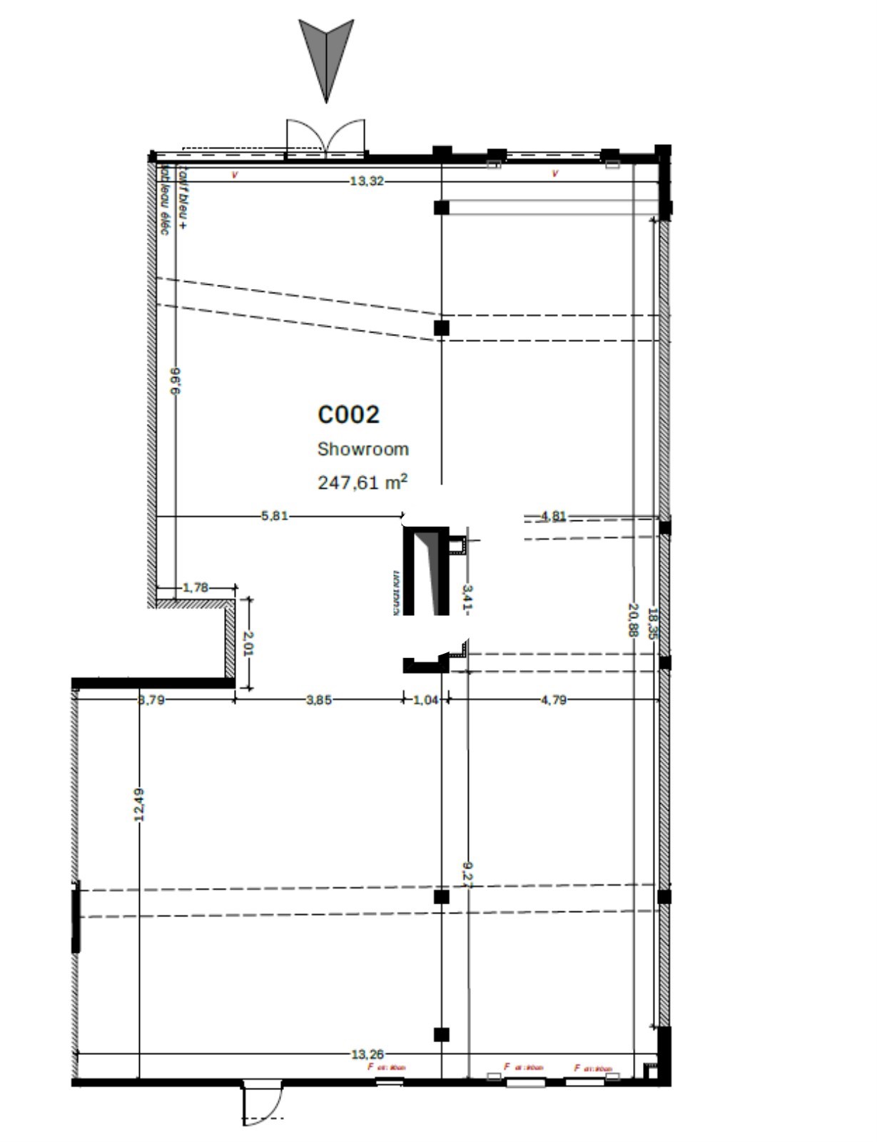
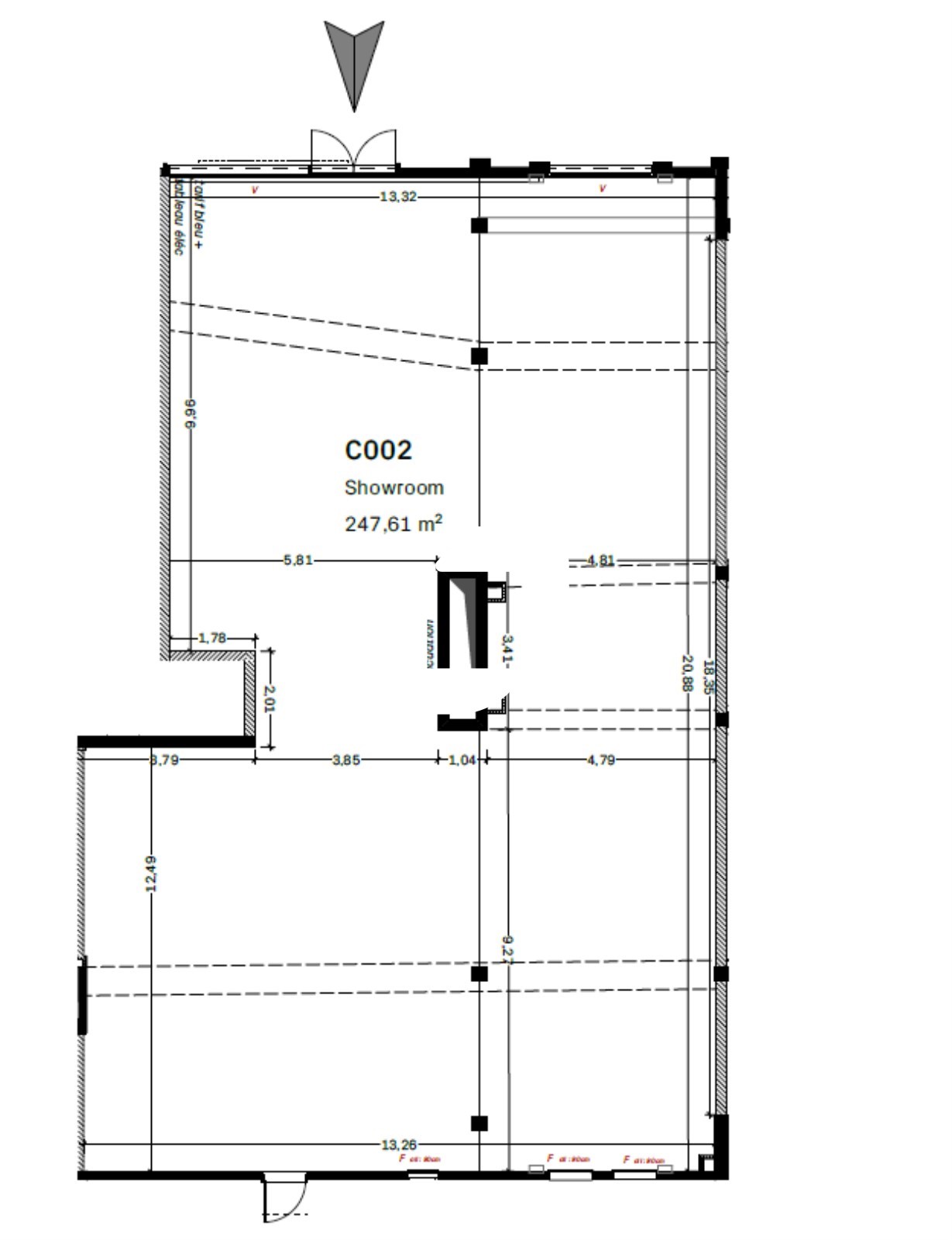
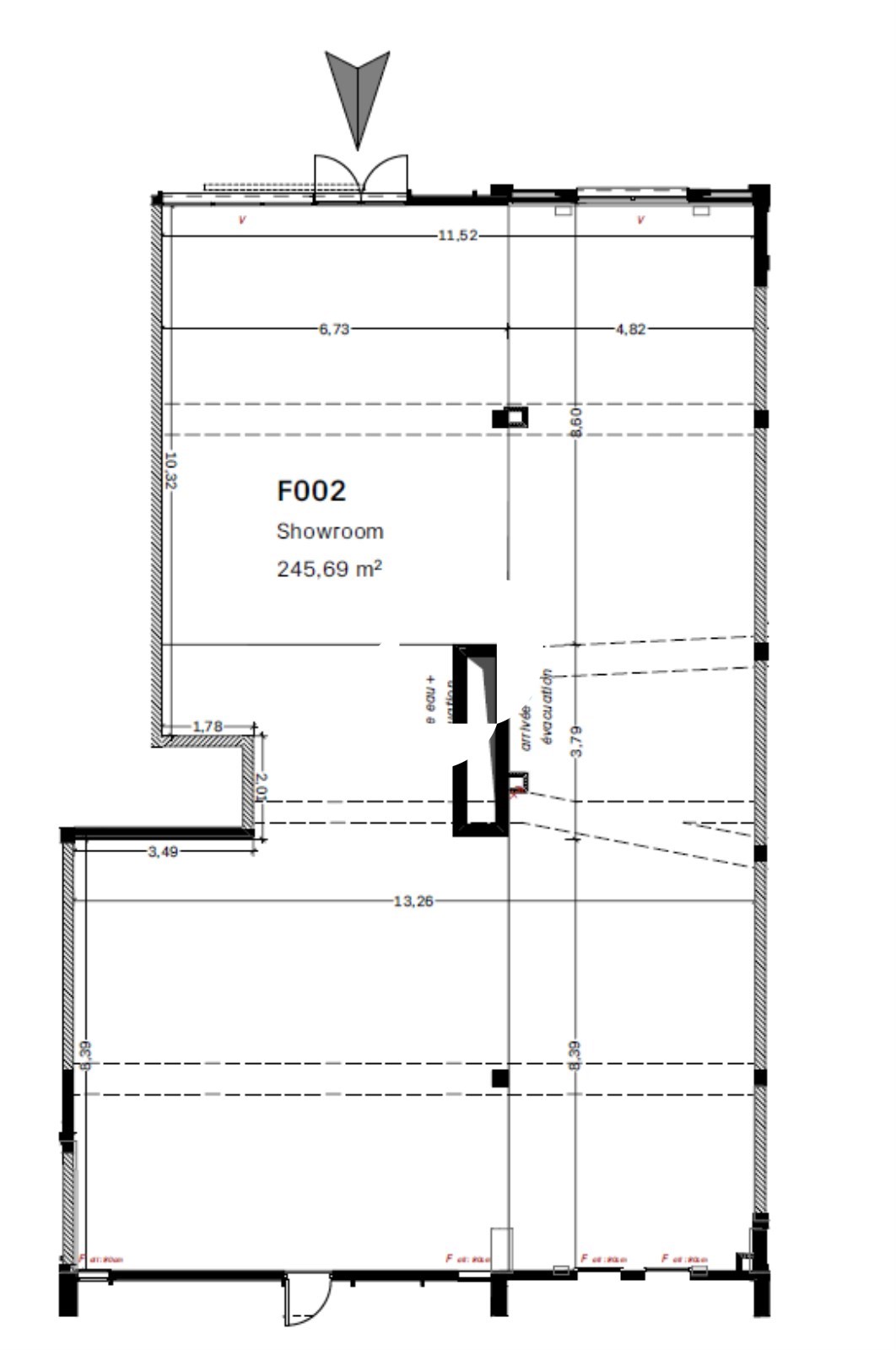
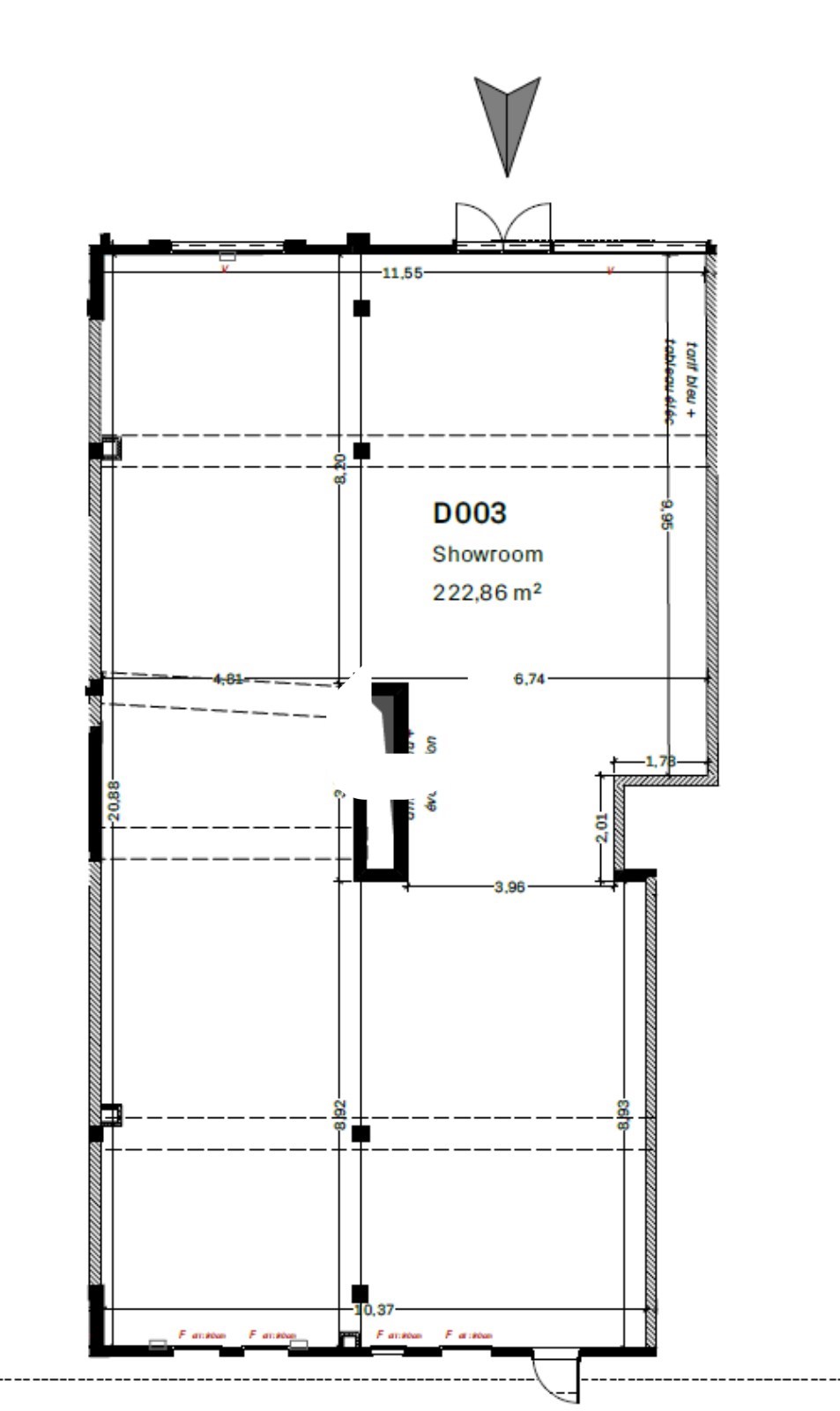
| Show Room | Rez-de-Chaussée | 248 m² | 250.00 | Prix sur demande | Prix sur demande | Prix sur demande |
| Locaux Commerciaux | Rez-de-Chaussée | 246 m² | 240.00 | Prix sur demande | 2 400.00 | Prix sur demande |
| Locaux Commerciaux | Rez-de-Chaussée | 261 m² | 240.00 | Prix sur demande | 2 400.00 | Prix sur demande |
| Show Room | Rez-de-Chaussée | 266 m² | Prix sur demande | Prix sur demande | 2 500.00 | Prix sur demande |
| Show Room | Rez-de-Chaussée | 219 m² | Prix sur demande | Prix sur demande | 2 400.00 | Prix sur demande |
| Show Room | Rez-de-Chaussée | 191 m² | Prix sur demande | Prix sur demande | 2 400.00 | Prix sur demande |
| Parkings | Prix sur demande | Prix sur demande | 7 000.00 | Prix sur demande | ||
| Parkings | Prix sur demande | Prix sur demande | 18 000.00 | Prix sur demande |
Caractéristiques
. Affectation juridique en cours de détermination
- Surface 1 429.13 m²
- Etat des locaux Neuf
Adresses
approximatives
Adresses
précises
Les entrepreneurs ayant consulté cette offre ont aussi consulté celles ci
Les services Immprove
Une gamme complète de services qui facilitent vos démarches et destinée à satisfaire vos attentes