Retour
Disponibilité Immédiate
À Acheter ou à Louer Locaux d'Activités 270 m² 7 RUE DU BRISCHBACH SCHERWILLER (67750)
Ajouter au comparateur
Vous souhaitez faciliter votre recherche ?
Créez un compte
Présentation du bien
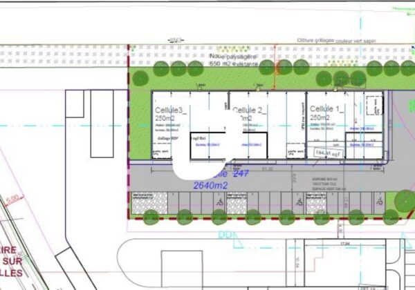
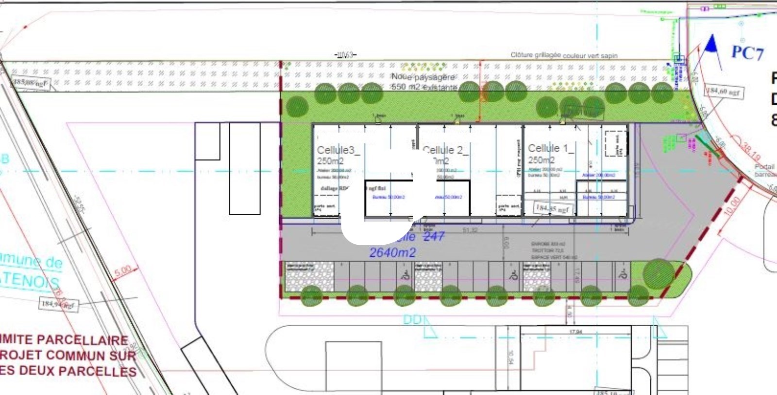
IMMPROVE vous propose à la vente ou à la location, dans le Parc d'Activité du Giessen de Scherwiller (Près de Sélestat), des locaux d'activités de 225 m² en rez-de-chaussée en cours de construire. Ces locaux seront livrés brut de béton, avec fluides en attente, offrant ainsi la possibilité de les aménager selon vos besoins et vos préférences. Ce dernier lot est à l'avant du bâtiment et dispose d'une mezzanine de 45 m². 5 places de parking sont affectées à ce lot.
Surface totale
Nature
Divisibilité
Etat des locaux
270 m²
Locaux d'Activités
Non
Neuf
Prix & Conditions
Loyer :
71 € /m²/an (HT/HC)
1 575 € /mois (HT/HC)
18 900 € /an (HT/HC)
Vente :
317 250 € (HD)
1 175.00 € /m² (HD)
Dépôt de garantie :
3 mois de loyer HT HC
Conditions vente :
Loi Carrez et affectation juridique en cours de détermination
Prestations & équipements du bien
Les accès
1 porte sectionnelle de plain-pied/lot
Autres
Toiture bac acier isolé
Bardage double peau
Sol béton
Ossature métallique
Hauteur 6,5 m
Locaux livrés bruts
Fluides en attente
Loi Carrez et affectation juridique en cours de détermination
Répartition & surfaces des espaces
Tableau des divisibilités
| Type | Étage | Surface | Loyer (€/m²/an HT HC) |
Charges (€/m²/an HT HC) |
Prix achat (€/m² HT HC) |
Charges (achat) (€/m² HT HC) |
|---|---|---|---|---|---|---|
| Activités | 270 m² | 70.83 | Prix sur demande | 1 175.00 | Prix sur demande |
Performance énergétique du bien (DPE)


Informations non contractuelles
Localisation & accès
Transports en commun à proximité
Gare de Scherwiller
Accès routier
A35 Sortie Saint-Dié - D424
Adresses
approximatives
Adresses
précises
Nos nouveaux biens qui pourraient vous intéresser
Locaux d'Activités - 1 794m²
SAINT PRIEST (69800)
SAINT PRIEST (69800)
Prix sur demande
Disponibilité : Octobre 2027
Surface : 1 794 m²
Locaux d'Activités - 1 980m²
FLEURIEUX SUR L'ARBRESLE (69210)
FLEURIEUX SUR L'ARBRESLE (69210)
Prix sur demande
Disponibilité : Immédiate
Surface : 1 980 m²
Locaux d'Activités - 507.70m²
SCHWEIGHOUSE SUR MODER (67590)
SCHWEIGHOUSE SUR MODER (67590)
Prix sur demande
Disponibilité : Immédiate
Surface : 507.70 m²
Locaux d'Activités - 253.85m²
SCHWEIGHOUSE SUR MODER (67590)
SCHWEIGHOUSE SUR MODER (67590)
Prix sur demande
Disponibilité : Immédiate
Surface : 253.85 m²
Les entrepreneurs ayant consulté cette offre ont aussi consulté celles ci
Locaux d'Activités - 1 794m²
SAINT PRIEST (69800)
SAINT PRIEST (69800)
Prix sur demande
Disponibilité : Octobre 2027
Surface : 1 794 m²
Locaux d'Activités - 1 980m²
FLEURIEUX SUR L'ARBRESLE (69210)
FLEURIEUX SUR L'ARBRESLE (69210)
Prix sur demande
Disponibilité : Immédiate
Surface : 1 980 m²
Locaux d'Activités - 507.70m²
SCHWEIGHOUSE SUR MODER (67590)
SCHWEIGHOUSE SUR MODER (67590)
Prix sur demande
Disponibilité : Immédiate
Surface : 507.70 m²
Locaux d'Activités - 253.85m²
SCHWEIGHOUSE SUR MODER (67590)
SCHWEIGHOUSE SUR MODER (67590)
Prix sur demande
Disponibilité : Immédiate
Surface : 253.85 m²