Retour
Disponibilité Nous consulter
Achat de murs occupés Locaux Commerciaux 1 767.40 m² TARBES (65000)
Ajouter au comparateur
Vous souhaitez faciliter votre recherche ?
Créez un compte
Présentation du bien
Nous vous proposons un local commercial de premier choix situé au cœur du centre-ville de Tarbes, dans une zone commerçante dynamique. Ce bien, d'une surface totale de 1 767 m², est entièrement loué à une enseigne nationale de renom, assurant un revenu locatif stable sur le long terme.
Détails clés :
• Emplacement : Hyper centre-ville, dans une zone très fréquentée à proximité immédiate des Galeries Lafayette et de nombreuses enseignes nationales.
• Surface : 1.913m2 répartis entre rez-de-chaussée, étages et sous-sol.
• Locataire : Enseigne nationale avec un bail ferme de 12 ans (WALT de 6,4 ans), garantissant des revenus locatifs sécurisés.
• Revenu locatif : 39 696,80 € HT/an, avec un potentiel de réversion locatif important.
• Prix : 790 000 € net vendeur, offrant un rendement immédiat de 4,49 %.
Ce local bénéficie d'une excellente visibilité et d'un flux de clients constant grâce à son emplacement stratégique. Il constitue une opportunité idéale pour tout investisseur souhaitant se positionner sur un actif commercial de qualité en emplacement n°1 dans la ville de Tarbes.
Pour toute information complémentaire ou pour organiser une visite, n’hésitez pas à nous contacter. »
Surface totale
Nature
Divisibilité
Etat des locaux
1 767.40 m²
Locaux Commerciaux
Non
Bon état
Prix & Conditions
Vente :
Prix sur demande
Conditions vente :
Loi Carrez et affectation juridique en cours de détermination
Prestations & équipements du bien
Loi Carrez et affectation juridique en cours de détermination
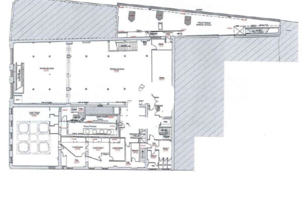
Répartition & surfaces des espaces
Tableau des divisibilités
| Type | Étage | Surface | Prix achat (€/m² HT HC) |
Charges (achat) (€/m² HT HC) |
|---|---|---|---|---|
| Locaux Commerciaux | 1 767 m² | Prix sur demande | Prix sur demande |
Performance énergétique du bien (DPE)


Informations non contractuelles
Localisation & accès
Transports en commun à proximité
931
Adresses
approximatives
Adresses
précises
Nos nouveaux biens qui pourraient vous intéresser
Locaux Commerciaux - 708m²
FLEURY MEROGIS (91700)
FLEURY MEROGIS (91700)
Prix sur demande
Disponibilité : Immédiate
Surface : 708 m²
Locaux Commerciaux - 68.40m²
PARIS (75011)
PARIS (75011)
Prix sur demande
Disponibilité : Immédiate
Surface : 68.40 m²
Locaux Commerciaux - 141m²
PARIS (75017)
PARIS (75017)
Prix sur demande
Disponibilité : Immédiate
Surface : 141 m²
Les entrepreneurs ayant consulté cette offre ont aussi consulté celles ci
Locaux Commerciaux - 708m²
FLEURY MEROGIS (91700)
FLEURY MEROGIS (91700)
Prix sur demande
Disponibilité : Immédiate
Surface : 708 m²
Locaux Commerciaux - 68.40m²
PARIS (75011)
PARIS (75011)
Prix sur demande
Disponibilité : Immédiate
Surface : 68.40 m²
Locaux Commerciaux - 141m²
PARIS (75017)
PARIS (75017)
Prix sur demande
Disponibilité : Immédiate
Surface : 141 m²