Retour
Disponibilité Immédiate
À Louer Locaux d'Activités 930 m² divisibles à partir de 465 m² 155-159 AVENUE GALLIENI BAGNOLET (93170)
Ajouter au comparateur
Vous souhaitez faciliter votre recherche ?
Créez un compte
Présentation du bien
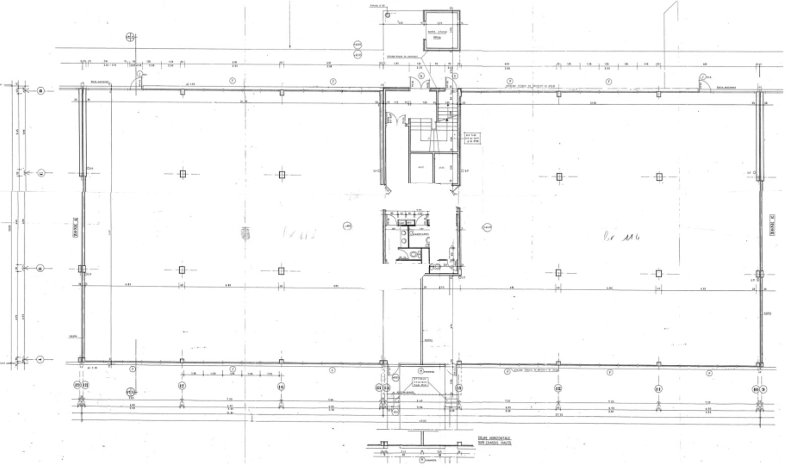
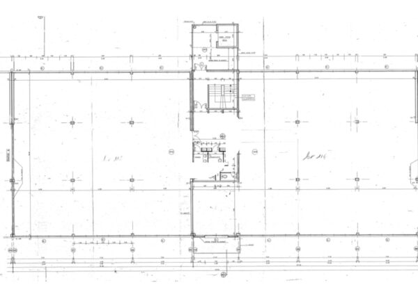
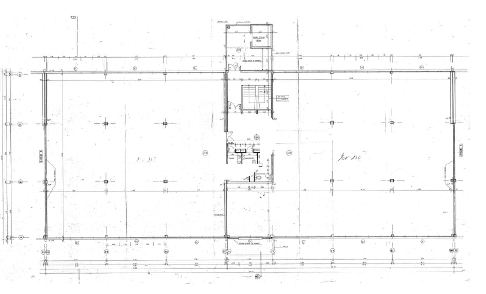
A proximité immédiate du périphérique et des accès autoroute A3/A86 et à proximité immédiate de la ligne 3 (Gallieni), au sein d’un ensemble immobilier tertiaire mixte, Immprove vous propose à la location des locaux d'activités d'une surface totale de 930 m² en étage avec monte-charge entièrement rénovés. Possibilité de division à partir de 465 m², bon ratio de stationnements.
Produit rare sur le secteur!
Surface totale
Nature
Divisibilité
Etat des locaux
930 m²
Locaux d'Activités
Oui à partir de 465 m²
Rénové
Prix & Conditions
Loyer :
190 € /m²/an (HT/HC)
7 362 € /mois (HT/HC)
88 350 € /an (HT/HC)
Divisibles à partir de 465 m²
Impôt foncier :
31.00
Dépôt de garantie :
3 mois de loyer HT HC
Prestations & équipements du bien
Le confort au quotidien
Accès livraison sur cour intérieur
Cour
Sécurité du site
Site gardienné
Interphone
Accessibilité
Monte-charge
2 monte-charge (1t et 400 kg)
2 ascenseurs
Prestations spécifiques
Puissance électrique : tarif jaune
Extérieur
47 places de parkings sécurisées dans un parking souterrain
Autres
Activités
HSP RDC : 5 m
2 portes sectionnelles 3 m (l) x 3,5 m (h)
Aérotherme gaz RDC
Ossature béton
Toiture : bac acier multicouche
Répartition & surfaces des espaces
Tableau des divisibilités
| Type | Étage | Surface | Loyer (€/m²/an HT HC) |
Charges (€/m²/an HT HC) |
|---|---|---|---|---|
| Activités | 1er étage | 465 m² | 190.00 | 12.50 |
| Activités | 1er étage | 465 m² | 190.00 | 12.50 |
| Parkings | Sous-sol 1 | 1 560.00 | Prix sur demande |
Performance énergétique du bien (DPE)


Informations non contractuelles
Localisation & accès
Transports en commun à proximité
Accès routier
Porte de Montreuil / Porte de Bagnolet (Boulevard Périphérique)
Adresses
approximatives
Adresses
précises
Nos nouveaux biens qui pourraient vous intéresser
Locaux d'Activités - 3 683m² Divisibles à partir de 215.75 m²
BAGNOLET (93170)
BAGNOLET (93170)
3 033.33€/mois HT HC
Disponibilité : Immédiate
Surface : divisibles à partir de 215.75 m²
Locaux d'Activités - 16 174m² Divisibles à partir de 5 840 m²
BAGNOLET (93170)
BAGNOLET (93170)
24 529.58€/mois HT HC
Disponibilité : Q4 2025
Surface : divisibles à partir de 5 840 m²
Locaux d'Activités - 1 169m²
BAGNOLET (93170)
BAGNOLET (93170)
10 390.00€/mois HT HC
Disponibilité : Immédiate
Surface : 1 169 m²
Les entrepreneurs ayant consulté cette offre ont aussi consulté celles ci
Locaux d'Activités - 172m²
MARTILLAC (33650)
MARTILLAC (33650)
1 900.03€/mois HT HC
Disponibilité : Immédiate
Surface : 172 m²
Locaux d'Activités - 1 940m² Divisibles à partir de 403 m²
MEYZIEU (69330)
MEYZIEU (69330)
12 249.89€/mois HT HC
Disponibilité : Selon les lots
Surface : divisibles à partir de 403 m²
Locaux d'Activités - 5 112m² Divisibles à partir de 150 m²
BERNOLSHEIM (67170)
BERNOLSHEIM (67170)
2 918.70€/mois HT HC
Disponibilité : Novembre 2026
Surface : divisibles à partir de 150 m²
Locaux d'Activités - 154m²
SAINT HERBLAIN (44800)
SAINT HERBLAIN (44800)
1 600.06€/mois HT HC
Disponibilité : 1er juin 2026
Surface : 154 m²