Retour
Disponibilité Immédiate
À Louer Bureaux 441 m² divisibles à partir de 180 m² BORDEAUX (33000)
Ajouter au comparateur
Vous souhaitez faciliter votre recherche ?
Créez un compte
Présentation du bien
Adresse d’exception avec vue panoramique sur les Quinconces et la Garonne !
Au cœur d’un immeuble de grand standing, IMMPROVE vous invite à découvrir un cadre de travail privilégié. Nous proposons à la location deux plateaux de bureaux baignés de lumière, offrant une vue imprenable sur la Garonne et l'esplanade des Quinconces
Surface totale
Nature
Divisibilité
Etat des locaux
441 m²
Bureaux
Oui à partir de 180 m²
Bon état
Prix & Conditions
Loyer :
350 € /m²/an (HT/HC)
5 250 € /mois (HT/HC)
63 000 € /an (HT/HC)
Divisibles à partir de 180 m²
Impôt foncier :
19.00
Dépôt de garantie :
3 mois de loyer HT HC
Prestations & équipements du bien
Les espaces de travail
Bureaux cloisonnés
Espace ouvert
Accueil
Salle de réunion
Prises RJ45
5 sanitaires privatifs
Le confort au quotidien
Locaux lumineux
Moquette
Climatisation réversible
Autres
Bureaux privatifs
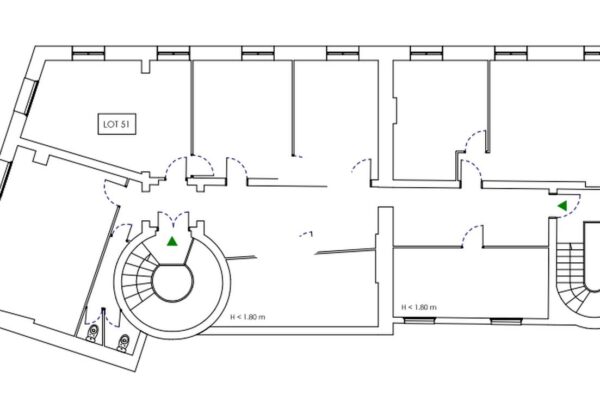
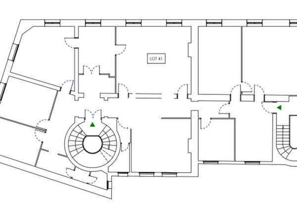
Répartition & surfaces des espaces
Tableau des divisibilités
| Type | Étage | Surface | Loyer (€/m²/an HT HC) |
Charges (€/m²/an HT HC) |
|---|---|---|---|---|
| Bureaux | 4ème étage | 261 m² | 350.00 | 44.00 |
| Bureaux | 5ème étage | 180 m² | 320.00 | 44.00 |
Performance énergétique du bien (DPE)


Informations non contractuelles
Localisation & accès
Adresses
approximatives
Adresses
précises
Nos nouveaux biens qui pourraient vous intéresser
Bureaux - 181m²
BORDEAUX (33800)
BORDEAUX (33800)
4 072.50€/mois HT HC
Disponibilité : Nous consulter
Surface : 181 m²
Bureaux - 399m² Divisibles à partir de 158 m²
BORDEAUX (33800)
BORDEAUX (33800)
2 370.00€/mois HT HC
Disponibilité : Immédiate
Surface : divisibles à partir de 158 m²
Les entrepreneurs ayant consulté cette offre ont aussi consulté celles ci
Bureaux - 105m²
SAINT JEAN DE VEDAS (34430)
SAINT JEAN DE VEDAS (34430)
1 458.36€/mois HT HC
Disponibilité : Immédiate
Surface : 105 m²
Bureaux - 330.50m²
PARIS (75013)
PARIS (75013)
10 642.50€/mois HT HC
Disponibilité : Immédiate
Surface : 330.50 m²