Retour
Bureaux - 63m² à Louer
. Façade en pierres de taille
. Parties communes de bon standing
. Interphone
. Fibre optique . Bon état
. Accueil
. Bureaux cloisonnés
. Espace détente
. Cuisine
. Sanitaires privatifs
. Moulures et cheminées
. Belle hauteur sous plafond
. Locaux traversants
. Locaux lumineux
. Moquette
. Chauffage individuel au gaz
Bureaux - 63m² à Louer
BORDEAUX (33000)
DESCRIPTION
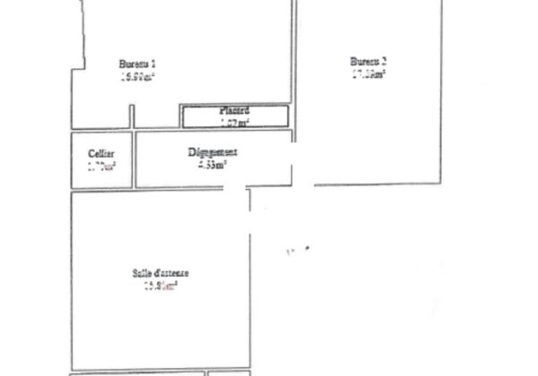
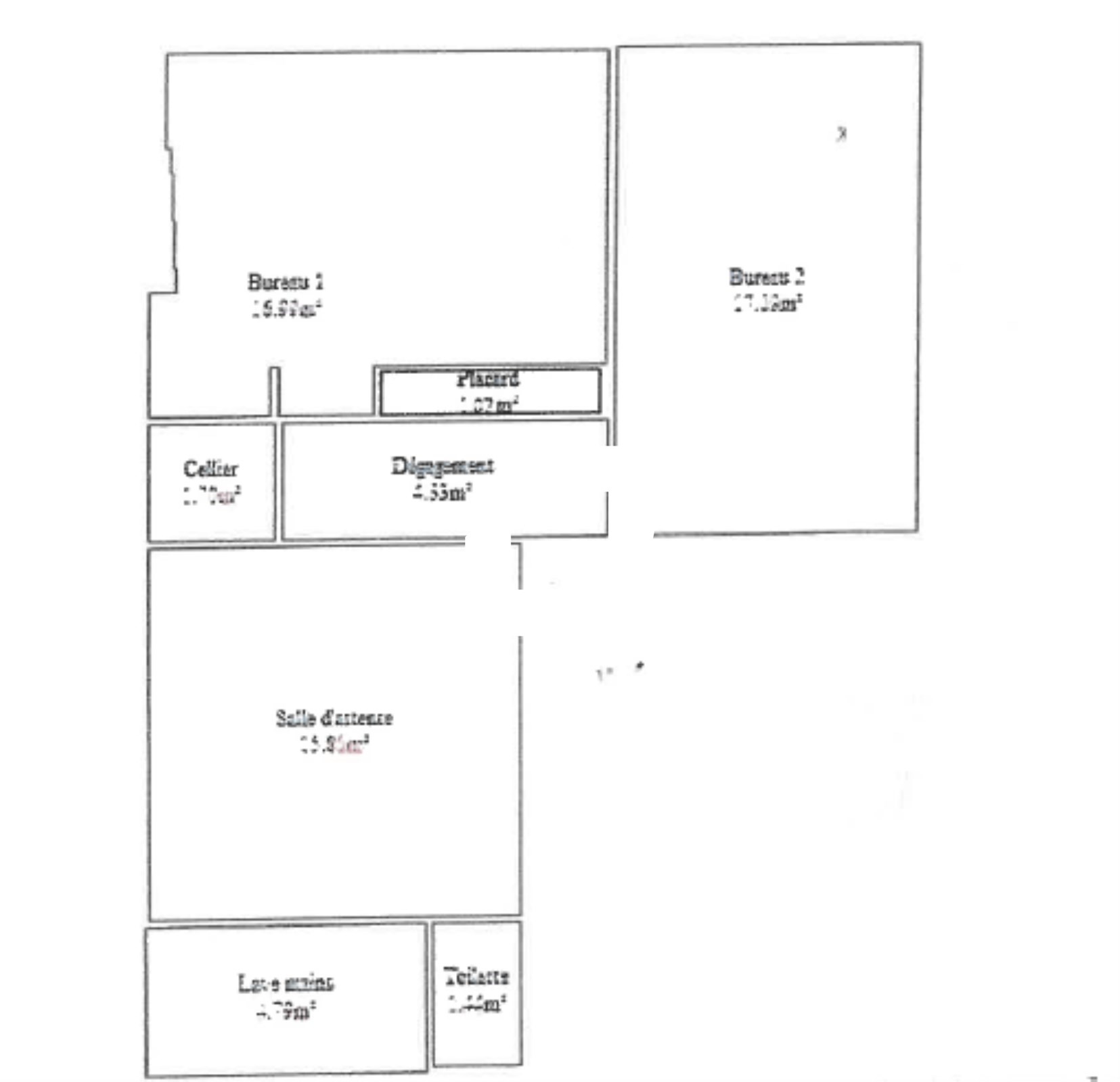
Rare ! Cours Georges Clémenceau, IMMPROVE vous propose des bureaux à louer sur un emplacement unique. Ces bureaux au premier étage, se compose d’une belle salle d’attente, de deux bureaux, d’un espace cuisine et d’un sanitaire privatif.
Bureaux lumineux, très belle hauteur sous plafond.
En savoir plus
. Immeuble ancien. Façade en pierres de taille
. Parties communes de bon standing
. Interphone
. Fibre optique . Bon état
. Accueil
. Bureaux cloisonnés
. Espace détente
. Cuisine
. Sanitaires privatifs
. Moulures et cheminées
. Belle hauteur sous plafond
. Locaux traversants
. Locaux lumineux
. Moquette
. Chauffage individuel au gaz
Consommations énergétiques


Informations non contractuelles
Tableau des divisibilités
| Type | Étage | Surface | Loyer (€/m²/an HT HC) |
Charges (€/m²/an HT HC) |
|---|---|---|---|---|
| Bureaux | 1er étage | 63 m² | 342.86 | 10.48 |
Caractéristiques
- Surface 63 m²
- Etat des locaux Bon état
- Interphone oui
Adresses
approximatives
Adresses
précises
Nos nouveaux biens qui pourraient vous intéresser
Bureaux - 1 146m² Divisibles à partir de 71 m²
à Louer
BORDEAUX (33300)
Voir le bien
1 360.00€/mois HT HC
Bureaux - 155.46m² Divisibles à partir de 69.53 m²
à Louer
BORDEAUX (33000)
Voir le bien
1 937.50€/mois HT HC
Les entrepreneurs ayant consulté cette offre ont aussi consulté celles ci
Les services Immprove
Une gamme complète de services qui facilitent vos démarches et destinée à satisfaire vos attentes