Retour
Disponibilité Immédiate
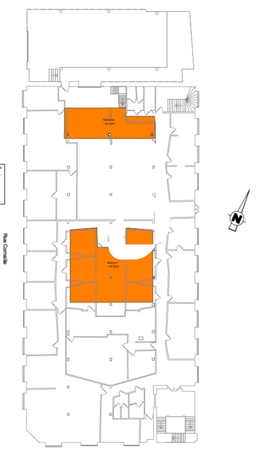
À Louer Bureaux 1 406 m² LE JACQUART 25 RUE CORNEILLE ROUBAIX (59100)
Ajouter au comparateur
Vous souhaitez faciliter votre recherche ?
Créez un compte
Présentation du bien
Immprove vous propose un plateau de bureaux d'environ 1.200 m² avec son local d'activité situé dans la Plaine Image à Roubaix. Environnement dédié aux industries créatives, incubateur et accélérateur d'entreprises réunissant une communauté de 1.800 personnes. Plateau de bureaux mixte avec open space et cloisonnement Vous bénéficiez d'un local d'activité de 200 m² avec porte sectionnelle, cuisine, sanitaires privatifs et parking en sous-sol. Disponibilité immédiate.
Surface totale
Nature
Divisibilité
Etat des locaux
1 406 m²
Bureaux
Non
Bon état
Prix & Conditions
Loyer :
Prix sur demande
Prix sur demande
Prix sur demande
Impôt foncier :
12000.00
Dépôt de garantie :
3 mois de loyer HT HC
Conditions location :
Le loyer indiqué s'entend hors parkings
Prestations & équipements du bien
Le bâtiment
Parties communes de bon standing
Les espaces de travail
Fibre optique
Climatisation réversible . Espace ouvert
Bureaux cloisonnés
Décloisonnement possible
Salle de réunion
Cuisine
Sanitaires privatifs
Plinthes périphériques
Câblage informatique et téléphonique
Le confort au quotidien
Belle hauteur sous plafond
Locaux traversants
Locaux lumineux
Carrelage
Les accès
Accès PMR
Double accès
Sécurité du site
Digicode - Interphone
SAS d'entrée
Accessibilité
Ascenseur PMR
Prestations spécifiques
Chauffage électrique
Autres
Alarme
Alarme
Possibilité de normes E.R.P.
Le loyer indiqué s'entend hors parkings
Répartition & surfaces des espaces
Tableau des divisibilités
| Type | Étage | Surface | Loyer (€/m²/an HT HC) |
Charges (€/m²/an HT HC) |
|---|---|---|---|---|
| Bureaux | 1 406 m² | Prix sur demande | Prix sur demande | |
| Parkings | 800.00 | Prix sur demande |
Performance énergétique du bien (DPE)


Informations non contractuelles
Localisation & accès
Transports en commun à proximité
200
Accès routier
A22 à 4 kms
Adresses
approximatives
Adresses
précises
Nos nouveaux biens qui pourraient vous intéresser
Bureaux - 1 115.20m² Divisibles à partir de 194.20 m²
ROUBAIX (59100)
ROUBAIX (59100)
1 778.33€/mois HT HC
Disponibilité : Immédiate
Surface : divisibles à partir de 194.20 m²
Bureaux - 100m² Divisibles à partir de 50 m²
ROUBAIX (59100)
ROUBAIX (59100)
600.00€/mois HT HC
Disponibilité : Immédiate
Surface : divisibles à partir de 50 m²
Bureaux - 327.60m²
ROUBAIX (59100)
ROUBAIX (59100)
3 204.01€/mois HT HC
Disponibilité : Immédiate
Surface : 327.60 m²
Bureaux - 500m²
ROUBAIX (59100)
ROUBAIX (59100)
3 600.00€/mois HT HC
Disponibilité : 1er Septembre 2025
Surface : 500 m²
Les entrepreneurs ayant consulté cette offre ont aussi consulté celles ci
Bureaux - 348.02m²
BIEVRES (91570)
BIEVRES (91570)
3 480.00€/mois HT HC
Disponibilité : 1er juillet 2026
Surface : 348.02 m²
Bureaux - 288.28m²
BIEVRES (91570)
BIEVRES (91570)
2 880.00€/mois HT HC
Disponibilité : 1er juillet 2026
Surface : 288.28 m²
Bureaux et Activités - 4 645.22m² Divisibles à partir de 249.90 m²
VILLIERS SUR MARNE (94350)
VILLIERS SUR MARNE (94350)
9 870.00€/mois HT HC
Disponibilité : Immédiate
Surface : divisibles à partir de 249.90 m²
Bureaux - 447m²
MOUSSY LE NEUF (77230)
MOUSSY LE NEUF (77230)
4 097.50€/mois HT HC
Disponibilité : Immédiate
Surface : 447 m²