Retour
Disponibilité Immédiate
À Louer Bureaux 1 583.63 m² divisibles à partir de 95.43 m² VIVALLEY CENTER CHEMIN DU MARQUAGE LIEVIN (62800)
Ajouter au comparateur
Vous souhaitez faciliter votre recherche ?
Créez un compte
Présentation du bien
Immprove vous propose sur la commune de Liévin, en plein coeur du nouveau Pole Vivalley, à la location, plusieurs surfaces de bureaux neuves divisibles à partir de 95 m². Ces surfaces sont E.R.P. au rez-de-chaussée. Parking disponible à proximité. Disponibilité immédiate.
Surface totale
Nature
Divisibilité
Etat des locaux
1 583.63 m²
Bureaux
Oui à partir de 95.43 m²
Neuf
Prix & Conditions
Loyer :
140 € /m²/an (HT/HC)
1 113 € /mois (HT/HC)
13 360 € /an (HT/HC)
Divisibles à partir de 95.43 m²
Dépôt de garantie :
3 mois de loyer HT HC
Prestations & équipements du bien
Le bâtiment
Parties communes de qualité
Les espaces de travail
Fibre optique . Espace ouvert
Bureaux cloisonnés
Les accès
Accès véhicules légers
Accès PMR
Accès privatif sur rue
Accessibilité
Ascenseur PMR
Prestations spécifiques
Hauteur libre : 2.60 mètres
Autres
Locaux E.R.P.
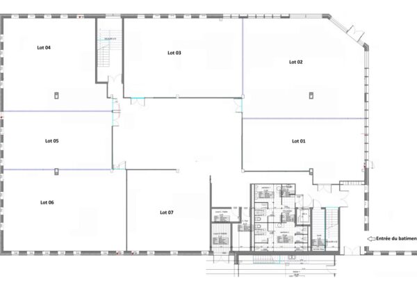
Répartition & surfaces des espaces
Tableau des divisibilités
| Type | Étage | Surface | Loyer (€/m²/an HT HC) |
Charges (€/m²/an HT HC) |
|---|---|---|---|---|
| Parkings | Prix sur demande | Prix sur demande | ||
| Bureaux | Rez-de-Chaussée | 123 m² | 140.00 | 50.00 |
| Bureaux | Rez-de-Chaussée | 205 m² | 140.00 | 50.00 |
| Bureaux | Rez-de-Chaussée | 166 m² | 140.00 | 50.00 |
| Bureaux | Rez-de-Chaussée | 160 m² | 140.00 | 50.00 |
| Bureaux | Rez-de-Chaussée | 112 m² | 140.00 | 50.00 |
| Bureaux | Rez-de-Chaussée | 179 m² | 140.00 | 50.00 |
| Bureaux | 1er étage | 112 m² | 140.00 | 50.00 |
| Bureaux | 1er étage | 157 m² | 140.00 | 50.00 |
| Bureaux | 1er étage | 95 m² | 140.00 | 50.00 |
| Bureaux | 1er étage | 171 m² | 140.00 | 50.00 |
| Bureaux | 1er étage | 105 m² | 140.00 | 50.00 |
Performance énergétique du bien (DPE)


Informations non contractuelles
Localisation & accès
Transports en commun à proximité
Ligne B1
Accès routier
Proximité A1, A21 et A26
Adresses
approximatives
Adresses
précises
Nos nouveaux biens qui pourraient vous intéresser
Bureaux - 2 428m² Divisibles à partir de 465 m²
LIEVIN (62800)
LIEVIN (62800)
4 650.00€/mois HT HC
Disponibilité : Immédiate
Surface : divisibles à partir de 465 m²
Les entrepreneurs ayant consulté cette offre ont aussi consulté celles ci
Bureaux - 83.60m²
BUSSY SAINT GEORGES (77600)
BUSSY SAINT GEORGES (77600)
1 288.00€/mois HT HC
Disponibilité : Immédiate
Surface : 83.60 m²
Bureaux - 6 934m² Divisibles à partir de 173 m²
LYON (69009)
LYON (69009)
Prix sur demande
Disponibilité : Selon les lots – nous consulter
Surface : divisibles à partir de 173 m²