Retour
Bureaux - 1 824m² à Acheter ou à Louer
Rénovation complète des locaux avec nouvelles façades, peinture, moquette, faux plafond
100 % des postes en 1er jour / trame de 10 m de profondeur
Hauteur de 2,70 mètres
Plinthes périphériques et 4 PC par poste
Climatisation réversible neuve / ventilo convecteur en faux plafond / ventilation double flux
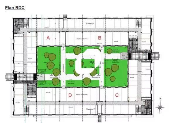
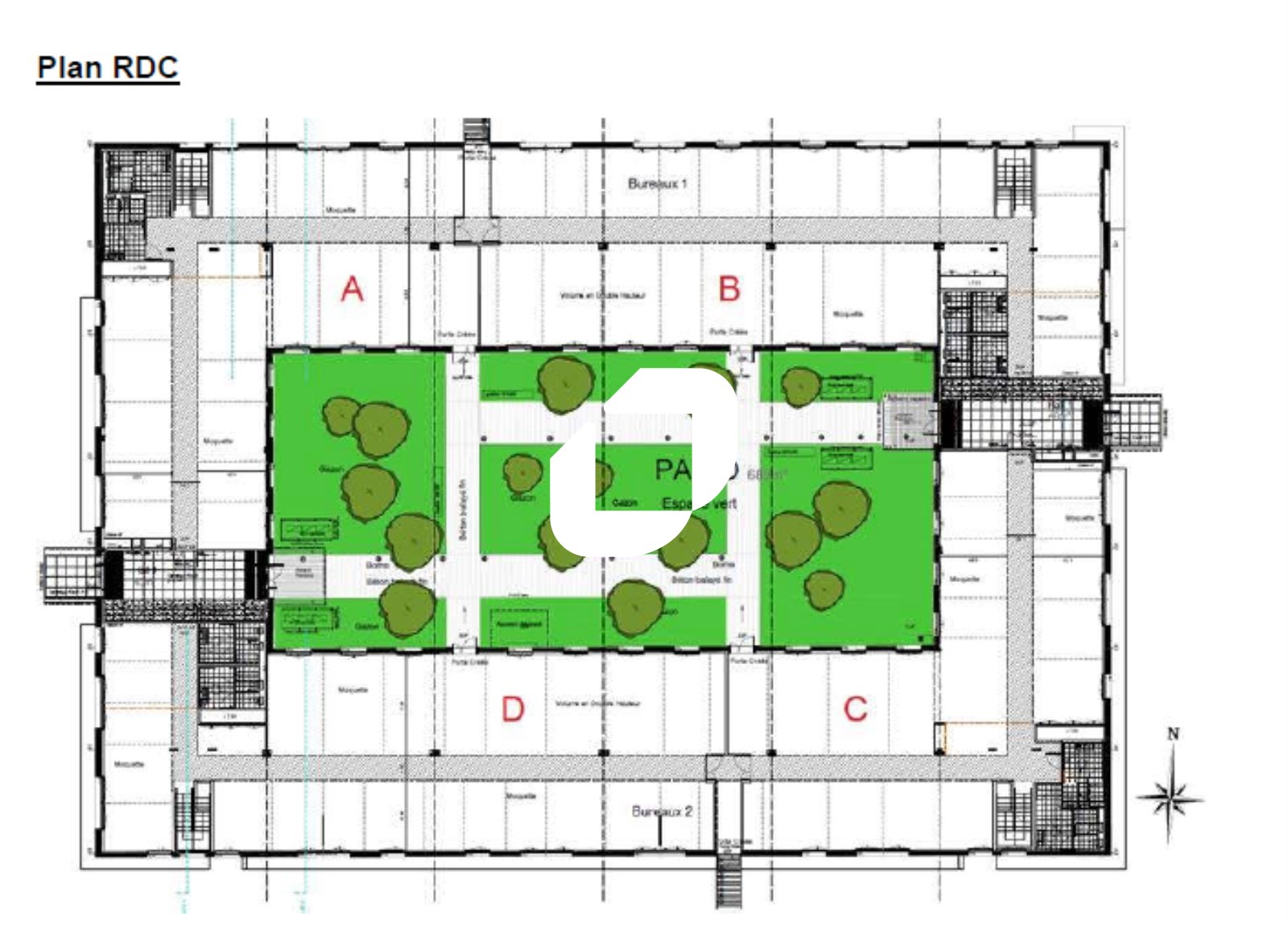
Patio : superbe projet paysager
Locaux accessibles PMR
Crèche et restaurant inter-entreprise
Stationnements : 46 emplacements extérieurs
Bureaux - 1 824m² à Acheter ou à Louer
LES PATIOS DU MOULIN A VENT - 33 AVENUE DU DOCTEUR GEORGES LEVY VENISSIEUX (69200)
DESCRIPTION
A proximité du périphérique, au sein d'un parc clos et arboré, Immprove vous propose à la location ainsi qu'à la vente, des bureaux d'une surface totale d'environ 1 828 m², divisibles en 3 lots. Site clos et arboré de 12 hectares.
En savoir plus
Bâtiment entièrement réhabilitéRénovation complète des locaux avec nouvelles façades, peinture, moquette, faux plafond
100 % des postes en 1er jour / trame de 10 m de profondeur
Hauteur de 2,70 mètres
Plinthes périphériques et 4 PC par poste
Climatisation réversible neuve / ventilo convecteur en faux plafond / ventilation double flux
Patio : superbe projet paysager
Locaux accessibles PMR
Crèche et restaurant inter-entreprise
Stationnements : 46 emplacements extérieurs
Consommations énergétiques


Informations non contractuelles
Tableau des divisibilités
| Type | Étage | Surface | Loyer (€/m²/an HT HC) |
Charges (€/m²/an HT HC) |
Prix achat (€/m² HT HC) |
Charges (achat) (€/m² HT HC) |
|---|---|---|---|---|---|---|
| Bureaux | RDC / R+1 | 657 m² | 142.00 | 16.02 | 1 841.70 | Prix sur demande |
| Bureaux | RDC / R+1 | 512 m² | 142.00 | 16.02 | 1 835.94 | Prix sur demande |
| Bureaux | RDC / R+1 | 655 m² | 142.00 | 16.02 | 1 841.22 | Prix sur demande |
Caractéristiques
- Surface 1 824 m²
- Etat des locaux Neuf
Adresses
approximatives
Adresses
précises
Les entrepreneurs ayant consulté cette offre ont aussi consulté celles ci
Les services Immprove
Une gamme complète de services qui facilitent vos démarches et destinée à satisfaire vos attentes