Retour
Bureaux - 831.80m² à Louer
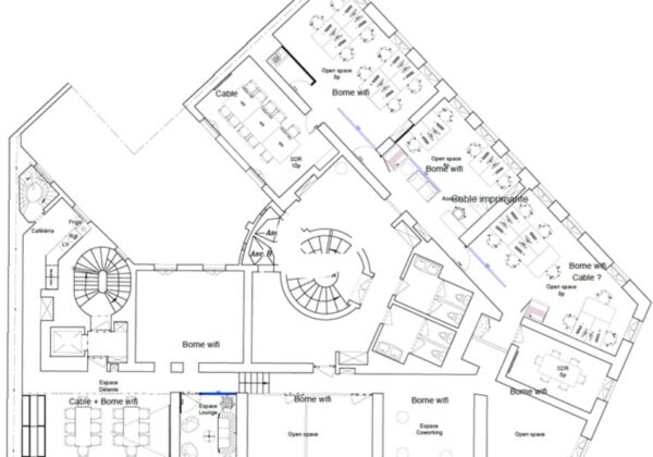
. Flexibilité d'aménagement : open-space et bureaux privatif
. Belle entrée / espace accueil
. 2 cuisines
. 4 sanitaires
. Climatisation
Bureaux - 831.80m² à Louer
PARIS (75001)
DESCRIPTION
À proximité de la Place de l'Opéra et de la Place de la Madeleine, Immprove vous propose à la location une surface de bureaux de 415m².
En savoir plus
. Surface très lumineuse. Flexibilité d'aménagement : open-space et bureaux privatif
. Belle entrée / espace accueil
. 2 cuisines
. 4 sanitaires
. Climatisation
Consommations énergétiques


Informations non contractuelles
Tableau des divisibilités
| Type | Étage | Surface | Loyer (€/m²/an HT HC) |
Charges (€/m²/an HT HC) |
|---|---|---|---|---|
| Bureaux | 2ème étage | 416 m² | 860.00 | 69.10 |
| Bureaux | 3ème étage | 416 m² | 860.00 | 69.10 |
Caractéristiques
- Surface 831.80 m²
- Etat des locaux Bon état
Adresses
approximatives
Adresses
précises
Nos nouveaux biens qui pourraient vous intéresser
Les entrepreneurs ayant consulté cette offre ont aussi consulté celles ci
Les services Immprove
Une gamme complète de services qui facilitent vos démarches et destinée à satisfaire vos attentes