Retour
Bureaux - 549.60m² à Louer
. Accès PMR
. Triple accès sur cour
. Parties communes de qualité
. Gardienne
. Digicode
. Fibre optique . Travaux à prévoir
. Accueil
. Espace ouvert
. Bureaux cloisonnés
. Salle de réunion
. Espace détente
. Local technique
. Belle hauteur sous plafond
. Locaux lumineux
. Décloisonnement possible
. Cloisonnement amovible
. Possibilité de normes E.R.P.
. Chauffage électrique
Bureaux - 549.60m² à Louer
129 RUE DE SEVRES PARIS (75006)
DESCRIPTION
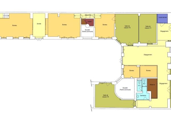
A proximité des transports en commun, IMMPROVE vous propose à la location, au sein d’un immeuble de très bon standing, une surface totale d’environ 550m² répartie comme suit : environ 400m² en rez-de-chaussée avec un triple accès sur cour dont un accès PMR et 150m² en sous-sol.
En savoir plus
. Immeuble ancien. Accès PMR
. Triple accès sur cour
. Parties communes de qualité
. Gardienne
. Digicode
. Fibre optique . Travaux à prévoir
. Accueil
. Espace ouvert
. Bureaux cloisonnés
. Salle de réunion
. Espace détente
. Local technique
. Belle hauteur sous plafond
. Locaux lumineux
. Décloisonnement possible
. Cloisonnement amovible
. Possibilité de normes E.R.P.
. Chauffage électrique
Consommations énergétiques


Informations non contractuelles
Tableau des divisibilités
| Type | Étage | Surface | Loyer (€/m²/an HT HC) |
Charges (€/m²/an HT HC) |
|---|---|---|---|---|
| Réserve | Sous-Sol | 155 m² | 250.00 | 25.98 |
| Bureaux | Rez-de-Chaussée | 395 m² | 490.00 | 25.98 |
Caractéristiques
Prime d'assurance : 0.84 €/m²/an
Provisions de Travaux d’exploitation 2023 : 12,15 €/m²/an HT
Provisions de Primes d’assurance 2023 : 0,92 €/m²/an HT
- Surface 549.60 m²
- Etat des locaux Bon état
- Gardien oui
- Digicode oui
Adresses
approximatives
Adresses
précises
Nos nouveaux biens qui pourraient vous intéresser
Bureaux - 1 278.20m² Divisibles à partir de 619.90 m²
à Louer
PARIS (75009)
Exclusive
Voir le bien
95 850.00€/mois HT HC
Les entrepreneurs ayant consulté cette offre ont aussi consulté celles ci
Les services Immprove
Une gamme complète de services qui facilitent vos démarches et destinée à satisfaire vos attentes