Retour
Bureaux - 287m² à Louer
. Ascenseur
. Locaux climatisés
. Bureaux cloisonnés
. Locaux modulables
. Salle de réunion
. Espace détente
. Parties communes de très bon standing
. Cuisine
. Sanitaires privatifs
. Local technique
. Fibre optique
. Cafétéria
. Câblage informatique et téléphonique
Bureaux - 287m² à Louer
BOULEVARD HAUSSMANN PARIS (75008)
DESCRIPTION
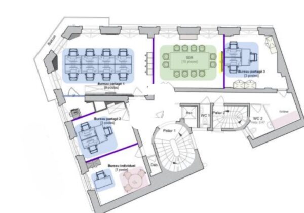
Immprove vous propose à la location une surface en prestation de services solution Deskeo. Plateaux privatifs entièrement rénovés au 2ème et 3ème étage pouvant accueillir jusqu’à 17 postes de travail chacun tout équipés, profités d’un environnement prime à proximité de la place de la madeleine.
En savoir plus
. Immeuble haussmannien. Ascenseur
. Locaux climatisés
. Bureaux cloisonnés
. Locaux modulables
. Salle de réunion
. Espace détente
. Parties communes de très bon standing
. Cuisine
. Sanitaires privatifs
. Local technique
. Fibre optique
. Cafétéria
. Câblage informatique et téléphonique
Consommations énergétiques


Informations non contractuelles
Tableau des divisibilités
| Type | Étage | Surface | Loyer (€/m²/an HT HC) |
Charges (€/m²/an HT HC) |
|---|---|---|---|---|
| Bureaux | 2ème étage | 142 m² | 850.00 | Prix sur demande |
| Bureaux | 3ème étage | 145 m² | 800.00 | Prix sur demande |
Caractéristiques
Le loyer est une somme forfaitaire incluant toutes les charges et la fiscalité
- Surface 287 m²
- Etat des locaux Rénové
- CoWorking postes 33
- Ascenseur oui
Adresses
approximatives
Adresses
précises
Nos nouveaux biens qui pourraient vous intéresser
Bureaux - 675.30m² Divisibles à partir de 160 m²
à Louer
PARIS (75006)
Voir le bien
845.83€/mois HT HC
Les entrepreneurs ayant consulté cette offre ont aussi consulté celles ci
Les services Immprove
Une gamme complète de services qui facilitent vos démarches et destinée à satisfaire vos attentes