Retour
Bureaux - 247m² à Louer
. 2 places de parking accessible par l’ascenseur en sus
. Digicode
. Interphone
. Accès sécurisé par badge
. Climatisation réversible
. Chauffage collectif
. Fibre optique
Locaux lumineux livrés rénovés (peinture, moquette)
. Un espace ouvert
. 7 bureaux
. Une belle et grande cafétaria centrale équipée
. Climatisation
. Cloisonnement de qualité
. Belle hauteur sous plafond
. Faux plafonds
. Moquette
. Câblage informatique et téléphonique
. 2 sanitaires
Bureaux - 247m² à Louer
MONCEY - 3 RUE MONCEY PARIS (75009)
DESCRIPTION
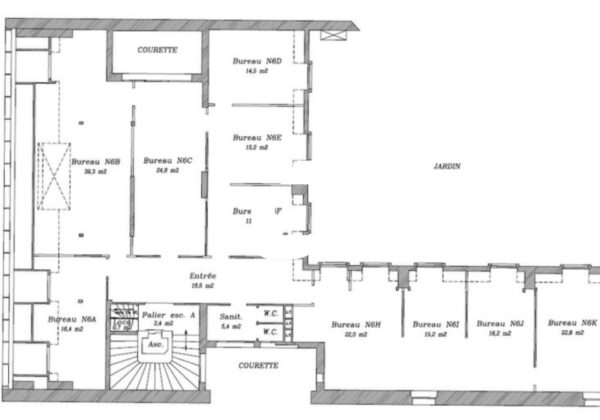
Dans le quartier Saint-Georges du 9ème arrondissement, Immprove vous propose une surface de bureaux d'environ 247 m² à la location, climatisée et rénovée au 1er février 2025, en étage élevé sans vis-à-vis et avec une vue dégagée comptant 7 bureaux, un espace ouvert et une cafétaria. Cloisonnement de qualité. Possibilité d’aménagement. Parking disponible dans l’immeuble en sus.
En savoir plus
. Immeuble de bon standing. 2 places de parking accessible par l’ascenseur en sus
. Digicode
. Interphone
. Accès sécurisé par badge
. Climatisation réversible
. Chauffage collectif
. Fibre optique
Locaux lumineux livrés rénovés (peinture, moquette)
. Un espace ouvert
. 7 bureaux
. Une belle et grande cafétaria centrale équipée
. Climatisation
. Cloisonnement de qualité
. Belle hauteur sous plafond
. Faux plafonds
. Moquette
. Câblage informatique et téléphonique
. 2 sanitaires
Consommations énergétiques


Informations non contractuelles
Tableau des divisibilités
| Type | Étage | Surface | Loyer (€/m²/an HT HC) |
Charges (€/m²/an HT HC) |
|---|---|---|---|---|
| Bureaux | 6ème étage | 247 m² | 600.00 | 48.00 |
Caractéristiques
Sous-location de longue durée (30 juin 2030)
- Surface 247 m²
- Etat des locaux Rénové
- Interphone oui
- Digicode oui
Adresses
approximatives
Adresses
précises
Nos nouveaux biens qui pourraient vous intéresser
Les entrepreneurs ayant consulté cette offre ont aussi consulté celles ci
Les services Immprove
Une gamme complète de services qui facilitent vos démarches et destinée à satisfaire vos attentes