Retour
Bureaux - 212m² à Louer
. Façade en pierres de taille
. Parties communes de qualité
. Ascenseur
. Accès sécurisé par badge
. Fibre optique
1er étage :
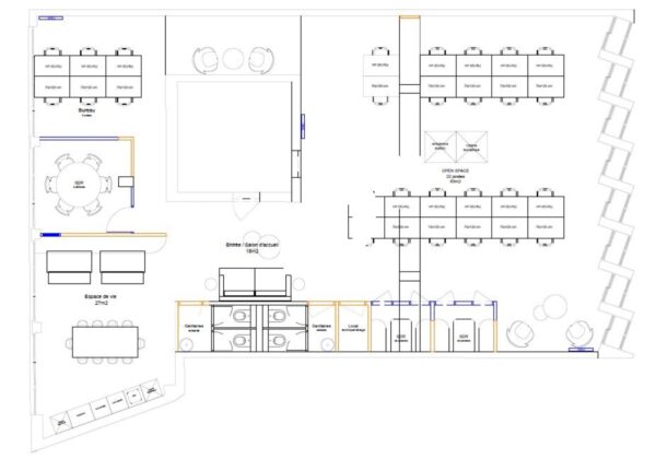
. Un très bel accueil spacieux
. 3 espaces de travail pour 4 personnes chacun
. 1 phone-box
. Une cuisine équipée
. 2 sanitaires
2ème étage :
. 2 espaces de travail dont un pour 6 personnes
. 2 salles de réunion, une pour 4 personnes et une autre pour 8 personnes
. Une cuisine équipée
. 4 sanitaires privatifs
. Belle hauteur sous plafond
. Locaux lumineux
. Climatisation
. Faux planchers techniques
. Fibre dédiée pour chaque étage
. Une baie de brassage à chaque étage
. Prises RJ45
. Entretien et maintenance des locaux
. Office manager dédié
Bureaux - 212m² à Louer
PARIS (75009)
DESCRIPTION
Situé au cœur du 9ème arrondissement de Paris, à deux pas de la place Clichy, au sein d’un immeuble récent, Immprove vous propose à la location en contrat de prestations de services, un très beau plateau de bureaux privatif entièrement rénové au 2ème de 28 postes. Plusieurs open-space, des bureaux fermés, des salles de réunion et des phonebox sont disponibles. Le loyer HT comprend toutes les prestations telles que le nettoyage, le wifi, l’électricité et le café.
En savoir plus
. Immeuble récent. Façade en pierres de taille
. Parties communes de qualité
. Ascenseur
. Accès sécurisé par badge
. Fibre optique
1er étage :
. Un très bel accueil spacieux
. 3 espaces de travail pour 4 personnes chacun
. 1 phone-box
. Une cuisine équipée
. 2 sanitaires
2ème étage :
. 2 espaces de travail dont un pour 6 personnes
. 2 salles de réunion, une pour 4 personnes et une autre pour 8 personnes
. Une cuisine équipée
. 4 sanitaires privatifs
. Belle hauteur sous plafond
. Locaux lumineux
. Climatisation
. Faux planchers techniques
. Fibre dédiée pour chaque étage
. Une baie de brassage à chaque étage
. Prises RJ45
. Entretien et maintenance des locaux
. Office manager dédié
Consommations énergétiques


Informations non contractuelles
Tableau des divisibilités
| Type | Étage | Surface | Loyer (€/m²/an HT HC) |
Charges (€/m²/an HT HC) |
|---|---|---|---|---|
| Bureaux | 2ème étage | 212 m² | 678.00 | Prix sur demande |
Caractéristiques
- Surface 212 m²
- Etat des locaux Rénové
- CoWorking postes 28
- Ascenseur oui
Adresses
approximatives
Adresses
précises
Nos nouveaux biens qui pourraient vous intéresser
Les entrepreneurs ayant consulté cette offre ont aussi consulté celles ci
Les services Immprove
Une gamme complète de services qui facilitent vos démarches et destinée à satisfaire vos attentes