Retour
Bureaux - 611m² à Louer
. Vaste jardin intérieur planté
. Gardien et télé-surveillance
. 2 ascenseurs
. Fibre optique . Bail dérogatoire jusqu'en décembre 2026
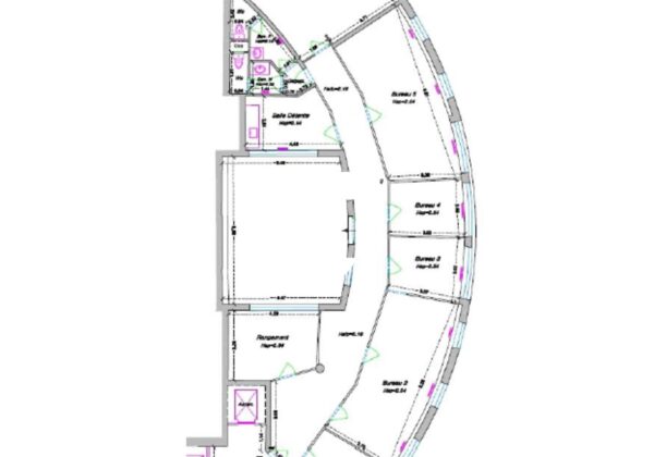
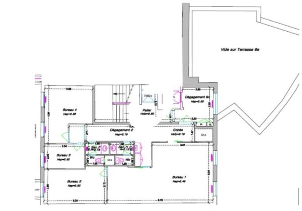
. R+1 : 2 espaces ouverts + 4 bureaux + cuisine et sanitaires
. R+2 : 1 open space + 2 salles de réunion + 1 bureau de direction et 1 bureau
. R+3 : 3 grands open space + 7/8 bureaux et sanitaires
. R+4 : 1 grand open space, cuisine et sanitaire et terrasse de 150m²
. Plateaux entièrement décloisonnable
. Place de parkings dans l'immeuble
. Câblage informatique existant
. Baie de brassage
. Chauffage électrique
. Double vitrage
. Taxe parkings : 6,70 €/m²/an
Bureaux - 611m² à Louer
6-6 BIS RUE LAFERRIERE PARIS (75009)
DESCRIPTION
Dans un bel immeuble situé à proximité de la Place Saint Georges, Immprove vous propose à la location des surfaces de bureaux fonctionnels en bail dérogatoire de 12 à 18 mois. L'immeuble dispose de parkings, d'un gardien et d'espaces verts.
En savoir plus
. Immeuble récent de grand standing. Vaste jardin intérieur planté
. Gardien et télé-surveillance
. 2 ascenseurs
. Fibre optique . Bail dérogatoire jusqu'en décembre 2026
. R+1 : 2 espaces ouverts + 4 bureaux + cuisine et sanitaires
. R+2 : 1 open space + 2 salles de réunion + 1 bureau de direction et 1 bureau
. R+3 : 3 grands open space + 7/8 bureaux et sanitaires
. R+4 : 1 grand open space, cuisine et sanitaire et terrasse de 150m²
. Plateaux entièrement décloisonnable
. Place de parkings dans l'immeuble
. Câblage informatique existant
. Baie de brassage
. Chauffage électrique
. Double vitrage
. Taxe parkings : 6,70 €/m²/an
Consommations énergétiques


Informations non contractuelles
Tableau des divisibilités
| Type | Étage | Surface | Loyer (€/m²/an HT HC) |
Charges (€/m²/an HT HC) |
|---|---|---|---|---|
| Bureaux | 2ème étage | 136 m² | 380.00 | 30.00 |
| Bureaux | 2ème étage | 203 m² | 380.00 | 30.00 |
| Bureaux | 3ème étage | 136 m² | 380.00 | 30.00 |
| Bureaux | 6ème étage | 136 m² | 380.00 | 30.00 |
Caractéristiques
- Surface 611 m²
- Etat des locaux Rénové
- Gardien oui
Adresses
approximatives
Adresses
précises
Nos nouveaux biens qui pourraient vous intéresser
Les entrepreneurs ayant consulté cette offre ont aussi consulté celles ci
Les services Immprove
Une gamme complète de services qui facilitent vos démarches et destinée à satisfaire vos attentes