Retour
Disponibilité Immédiate
Bureaux

À Louer Bureaux privatifs 2 222 m² | 381 postes divisibles à partir d'1 poste RUE DE LA VICTOIRE PARIS (75009)

Location : 1 009€ /Poste/mois (HT/CC)

Ajouter au comparateur
Référence : 1345842 Votre agence AGENCE - Paris
Une question sur ce bien ?
Contactez-nous !

Je suis intéressé.e par ce bien et souhaiterai obtenir plus d'information sur ce bien.

Sélectionnez une date et une heure
LUNMARMERJEUVENSAMDIM
Sélectionnez une heure

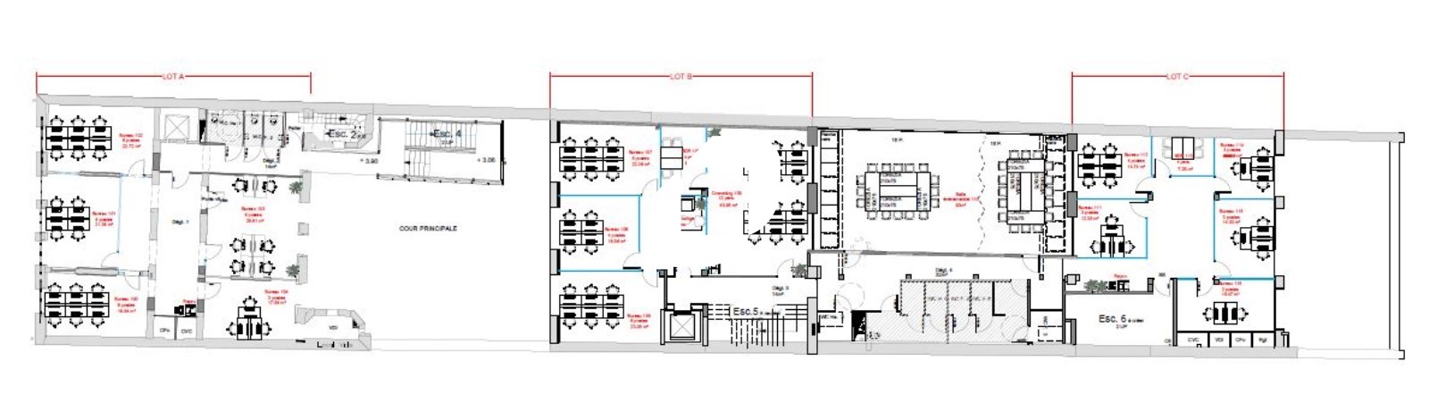
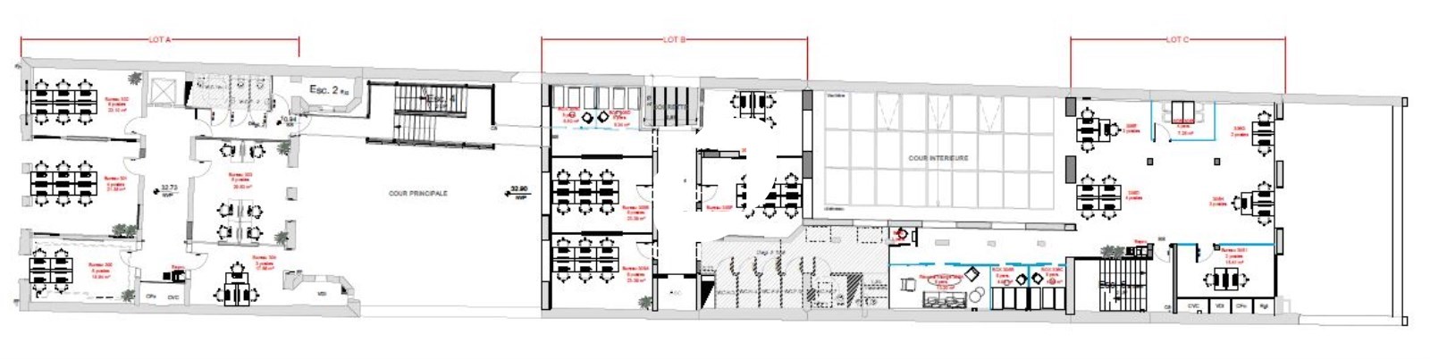
Présentation du bien

Dans un immeuble de bon standing avec une hôtesse, IMMPROVE vous propose différents plateaux privatifs de bureaux divisibles à partir de 17 postes à louer avec un étage dédié aux salles de réunion et à la détente sous une très belle verrière. Certains plateaux disposent de bureaux avec moulures, miroirs et une belle hauteur sous plafond. D’autres modernes et très beaux. Une très belle terrasse aménagée vous attend pour vos évènements.
Surface totale
Nature
Divisibilité
Nombre de postes
Etat des locaux
2 222 m²
Bureaux
Oui à partir de 65 m²
381
Rénové

Prix & Conditions

Coworking (381 postes) 1 009 € /Poste/mois (HT/CC)
Dépôt de garantie : 3 mois de loyer HT HC
Conditions location : 30 crédits/poste/mois offerts

Prestations & équipements du bien

Le bâtiment

Parties communes de bon standing

Les espaces de travail

Fibre optique

Une belle salle de réunion

Une cuisine équipée

Le confort au quotidien

Belle hauteur sous plafond

Climatisation

Accessibilité

Ascenseur

Prestations spécifiques

Le prix s’exprime HT et inclus le WIFI, le café, l’eau, le chauffage, le ménage, un office manager dédié et toutes les taxes. Bureaux clés en main.

Autres

Accès 24h/24 et 7j/7

Une entrée/réception

De beaux open-space

Des bureaux fermés

Lumineux

Double vitrage

30 crédits/poste/mois offerts

Répartition & surfaces des espaces

Type Étage Surface Nb postes Prix
(€/poste HT HC)
Bureaux 1er étage 113 m² 20 1 068.00
Bureaux 2ème étage 113 m² 20 1 068.00
Bureaux 3ème étage 124 m² 21 1 116.00
Bureaux 4ème étage 135 m² 23 1 109.00
Bureaux 5ème étage 95 m² 15 1 212.00
Bureaux 1er étage 65 m² 12 1 053.00
Bureaux 3ème étage 130 m² 22 1 009.00
Bureaux 4ème étage 145 m² 24 1 142.00
Bureaux 5ème étage 117 m² 20 1 105.00
Bureaux 2ème étage 98 m² 17 1 102.00
Bureaux 3ème étage 135 m² 23 1 068.00
Bureaux 4ème étage 130 m² 22 1 117.00
Bureaux 5ème étage 125 m² 21 1 237.00
Bureaux 2ème étage 190 m² 35 1 051.00
Bureaux 3ème étage 265 m² 45 1 110.00
Bureaux 4ème étage 242 m² 41 1 173.00

Localisation & accès

Transports en commun à proximité

Auber (Ligne RER A), Haussmann Saint-Lazare (Ligne RER E), Gare Saint-Lazare (Ligne J, Ligne L, Ligne SNCF)

Métro Métro
metro 12 metro 8 metro 3 metro 2
RER RER
Auber, Haussmann-Saint-Lazare

Adresses
approximatives

 

Adresses
précises

CoWorking
à Louer 13
Bureaux privatifs en centre de CoWorking - 16 postes
PARIS (75008)
68.75€/poste/mois HT HC
Disponibilité : 1er juillet 2026
Surface : 80 m²
CoWorking
à Louer 9
Bureaux privatifs en centre de CoWorking - 11 postes
PARIS (75002)
Prix sur demande
Disponibilité : Immédiate
Surface : 81 m²
CoWorking
à Louer 15
Bureaux privatifs en centre de CoWorking - 8 postes
PARIS (75009)
58.33€/poste/mois HT HC
Disponibilité : Après accord
Surface : 76 m²
CoWorking
à Louer 11
Bureaux privatifs en centre de CoWorking - 34 postes
Divisibles à partir de 12 postes
PARIS (75017)
89.60€/poste/mois HT HC
Disponibilité : Immédiate
Surface : divisibles à partir de 75 m²
Bureaux
à Louer 6
Bureaux - 190m²
SEVRAN (93270)
3 800.00€/mois HT HC
Disponibilité : Immédiate
Surface : 190 m²
Bureaux
à Acheter ou à Louer 13
Bureaux - 225m²
MAGNY LE HONGRE (77700)
Prix sur demande
Surface : 225 m²
Bureaux
à Louer 6
Bureaux - 83.60m²
BUSSY SAINT GEORGES (77600)
1 288.00€/mois HT HC
Disponibilité : Immédiate
Surface : 83.60 m²
Bureaux
à Acheter ou à Louer 17
Bureaux - 6 934m² Divisibles à partir de 173 m²
LYON (69009)
Prix sur demande
Disponibilité : Selon les lots – nous consulter
Surface : divisibles à partir de 173 m²