Retour
Bureaux - 50m² à Louer
. Façade en pierres de taille
. Digicode
. Fibre optique
. Cour . Espace ouvert
. Bureaux cloisonnés
. Parquet
. Poutres
. Chauffage électrique
. Cuisine
. Sanitaires privatifs
Bureaux - 50m² à Louer
PARIS (75009)
DESCRIPTION
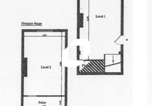
IMMPROVE vous propose à la location en bail dérogatoire ou en bail commercial, une surface de bureaux d'environ 50m² répartie au rez-de-chaussée et premier étage d'un immeuble ancien, au cœur du 9ème arrondissement. Cet espace se compose d'une entrée, d’un grand bureau, d’une cuisine et d’un WC en rez-de-chaussée et d’une grande surface ouverte au premier étage. Le tout sur cour dans un environnement paisible. Les bureaux sont disponibles immédiatement.
En savoir plus
. Immeuble ancien. Façade en pierres de taille
. Digicode
. Fibre optique
. Cour . Espace ouvert
. Bureaux cloisonnés
. Parquet
. Poutres
. Chauffage électrique
. Cuisine
. Sanitaires privatifs
Consommations énergétiques


Informations non contractuelles
Tableau des divisibilités
| Type | Étage | Surface | Loyer (€/m²/an HT HC) |
Charges (€/m²/an HT HC) |
|---|---|---|---|---|
| Bureaux | Rez-de-Chaussée | 26 m² | 580.00 | 33.60 |
| Bureaux | 1er étage | 24 m² | 580.00 | 33.60 |
Caractéristiques
- Surface 50 m²
- Etat des locaux Bon état
- Digicode oui
Adresses
approximatives
Adresses
précises
Nos nouveaux biens qui pourraient vous intéresser
Bureaux - 349m² Divisibles à partir de 53 m²
à Louer
PARIS (75008)
Voir le bien
18 322.50€/mois HT HC
Les entrepreneurs ayant consulté cette offre ont aussi consulté celles ci
Les services Immprove
Une gamme complète de services qui facilitent vos démarches et destinée à satisfaire vos attentes