Retour
Bureaux - 200m² à Louer
. Digicode
. Interphone
. Fibre optique . Rénové
. Accueil
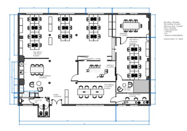
. 4 Open space
. 7 Salles de réunions
. 3 espace détente
. Local technique
. 1 bureau privatif
. Cuisines
. Sanitaires privatifs
. Câblage informatique et téléphonique
. Prises RJ45
• Climatisation réversible
Bureaux - 200m² à Louer
PARIS (75010)
DESCRIPTION
Immprove vous propose à la location une surface de 200 M2 dans style industriel par excellence, grande verrière, poutres en métal apparentes, grande hauteur sous plafond, style New-Yorkais offre un cadre à la fois moderne et atypique.. Loyer par mois 13 000 euros tout inclus
Contrats flexibles de 12/24/36 mois.
Lien visite virtuelle : https://my.matterport.com/show/?m=hW1ceJZoGQs
En savoir plus
. Immeuble ancien. Digicode
. Interphone
. Fibre optique . Rénové
. Accueil
. 4 Open space
. 7 Salles de réunions
. 3 espace détente
. Local technique
. 1 bureau privatif
. Cuisines
. Sanitaires privatifs
. Câblage informatique et téléphonique
. Prises RJ45
• Climatisation réversible
Consommations énergétiques


Informations non contractuelles
Tableau des divisibilités
| Type | Étage | Surface | Loyer (€/m²/an HT HC) |
Charges (€/m²/an HT HC) |
|---|---|---|---|---|
| Bureaux | 2ème étage | 200 m² | 780.00 | Prix sur demande |
Caractéristiques
Le loyer comprend charges, foncier, taxe, bureaux, mobilier, équipements, électricité, climatisation, chauffage, ménage et services.
- Surface 200 m²
- Etat des locaux Etat d’usage
- CoWorking postes 30
- Interphone oui
- Digicode oui
Adresses
approximatives
Adresses
précises
Nos nouveaux biens qui pourraient vous intéresser
Les entrepreneurs ayant consulté cette offre ont aussi consulté celles ci
Les services Immprove
Une gamme complète de services qui facilitent vos démarches et destinée à satisfaire vos attentes